Eladó Családi ház Alcsútdoboz - Remek mellékutcában!

88 m2Alapterület 3 Szoba
69 000 000 Ft Ár
394454Azonosító
További adatok

1000 m2 Telek

Kertre néző Kilátás

Felújított Állapot

Vegyes falazat Szerkezet

Gáz (cirkó) Fűtés

Dupla komfort Komfort

Saját garázs Parkolás

Tömegközlekedés

Amerikai konyhás

Van Kertkapcsolat

1969 Építés éve

Hitelkalkuláció – a részletekért kattintson valamelyik bank logójára!

Eladó egy REMEK családi ház Alcsútdobozon, CSENDES mellékutcában!

Jellemzők:
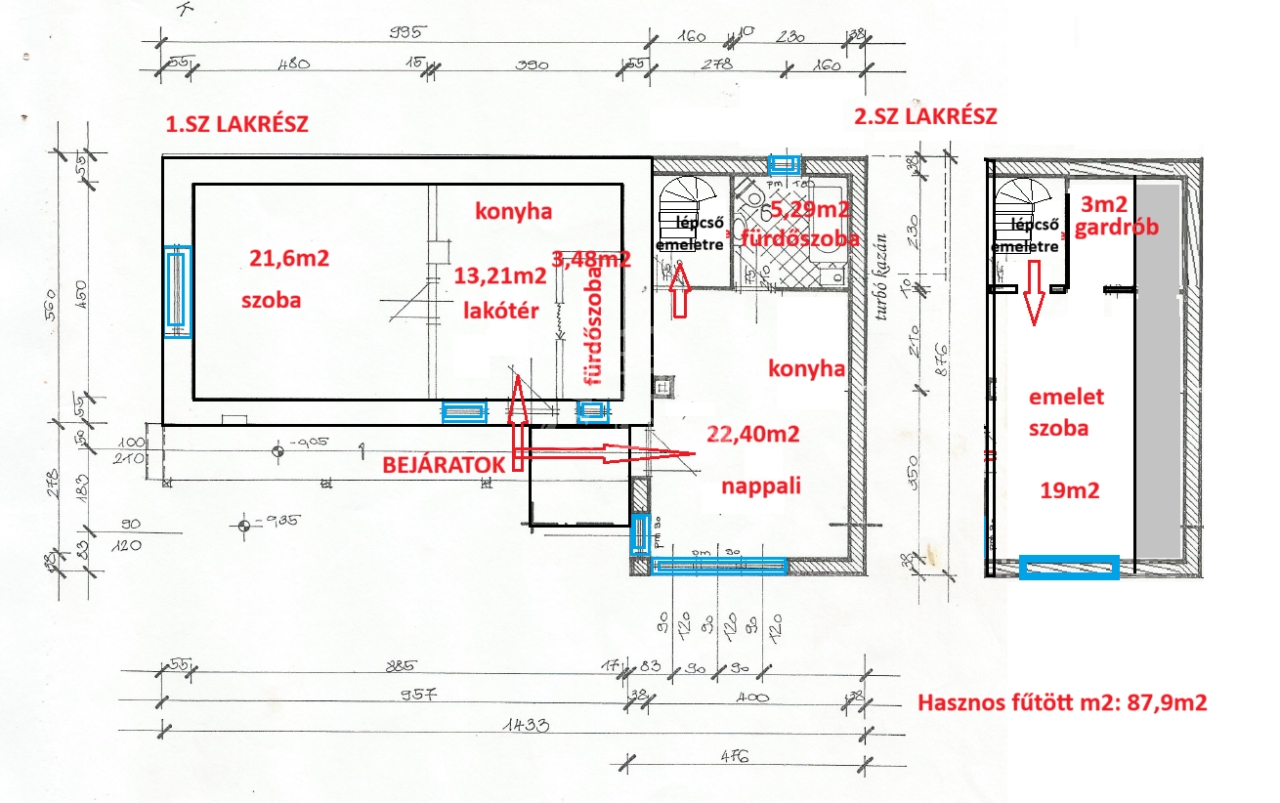
Jelenleg két külön lakrészre van bontva - kétgenerációs - igény szerint könnyedén össze is nyitható. Jól használható tároló és garázs is van

I. lakrész: szoba - étkezőkonyha - fürdőszoba
II. lakrész: amerikai konyhás nappali - fürdőszoba - tetőtéri hálószoba - gardrób

Valódi duplakomfort, hiszen 2 konyha és 2 fürdőszoba áll rendelkezésre.

A ház első része karbantartott vályog, a hátsó lakrész későbbi tégla hozzáépítés, 2009-ben kapott használatbavételi engedélyt.

Gépészet:
A fűtésről gázcirkó gondoskodik, a meleg vizet pedig két villanybojler szolgáltatja.

Telek:
1000 m2 teraszos kialakítású, bekerített, szép növényekkel
Kertvárosias környezetben található. Ideális választás azoknak, akik szeretik a nyugalmat és a kertészkedést. A telek felső részéről szép kilátás nyílik, amely tökéletes helyszínt biztosít a pihenéshez.
Különlegessége a két utcás kapcsolat, két utcára nyílik, így több irányból is megközelíthető.

Beépíthetőség:
A HÉSZ szerint 30% így további bővítésre is van lehetőség.

Hitelezhetőség:
Az ingatlan falusi CSOK igénybevételére alkalmas!

Az ingatlan teljesen kiürített, így nagyon gyorsan költözhető.

Hétvégén és ünnepnapokon is felveszem a telefont, ha nem érsz el visszahívlak.
Lukács Péter

Lukács Péter

Hívjon bizalommal

+36-30-694-Mutasd!

További hirdetéseim

Ingatlaniroda
GDN Ingatlanhálózat - Belváros
+36 1 783 2515

Küldjön üzenetet

Visszahívást kérek

Hasonló ingatlanok