Eladó Lakás (téglaépítésű) Balatonakarattya - Szép utca

100 m2Alapterület 3 Szoba
130 000 000 Ft Ár
392673Azonosító
További adatok

400 m2 Telek

Kertre néző Kilátás

Új Állapot

Tégla Szerkezet

36 m2 Erkély/terasz

Hőszivattyú Fűtés

Összkomfort Komfort

Saját beálló Parkolás

Emelet Földszint

Nincs Lift

Tömegközlekedés

Amerikai konyhás

Van Kertkapcsolat

2025 Építés éve

Hitelkalkuláció – a részletekért kattintson valamelyik bank logójára!

Balatonakarattya egyik csendes, kedvelt részén kínáljuk megvételre egy igényesen kialakított, kétlakásos, modern családi ház alsó lakását, a GDN Ingatlanhálózat kínálatából!

- Az ingatlan korszerű műszaki tartalommal készült: energiatakarékos hőszivattyús rendszer biztosítja a fűtést és a használati melegvizet.
- A 15 cm vastag külső hőszigetelés és a minőségi műanyag nyílászárók rejtett redőnyökkel, hozzájárulnak az alacsony fenntartási költségekhez és a komfortos lakóklímához.
- A tető cserépfedést kapott, az ingatlan minden közművel ellátott.

- A földszinti lakás teljes körű átalakítással nyerte el jelenlegi, modern formáját.
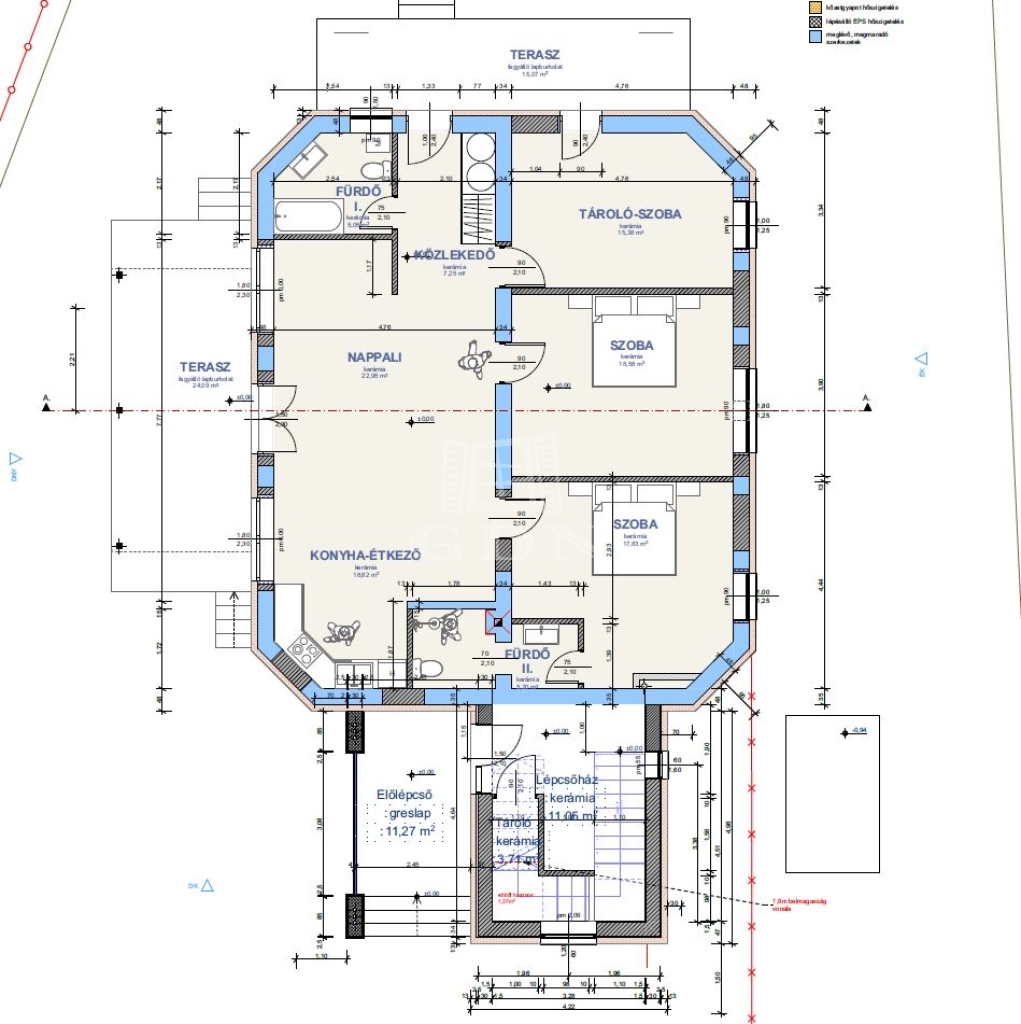
- A bruttó 110 m² alapterületen praktikus elrendezésű, világos, élhető terek kerültek kialakításra: 3 szobával, tágas amerikai konyhás nappalival, fürdőszobával, WC-vel, előtérrel.
- A lakáshoz két tágas terasz kapcsolódik, amelyek ideális helyszínei a pihenésnek vagy családi, baráti összejöveteleknek.

- A hozzá tartozó, körülbelül 400 m²-es saját kertrész intimitást és önálló életteret biztosít.
- A bejárat teljesen elkülönítetten került kialakításra, így a lakások zavartalanul használhatók.
- A telekhasználat megosztott, lakásonként rendezett formában biztosított.

- A kivitelezés jelenleg az utolsó simításoknál tart, így az új tulajdonos egy szinte teljesen kész, korszerű otthonba költözhet.

Ez az ingatlan ideális választás lehet otthonnak, nyaralónak vagy akár befektetésnek is, Balatonakarattya egyik csendesebb részén!

Ne hagyja ki ezt a remek lehetőséget!

Amennyiben a veszprémi GDN Ingatlaniroda által kínált új építésű, balatonakarattyai, kertkapcsolatos lakás vagy bármely, a kínálatunkban található ingatlan felkeltette érdeklődését, forduljon hozzám bizalommal!

Ingatlanirodánk díjmentes, banksemleges hitelügyintézéssel, illetve ügyvédi tanácsadással is áll Ügyfeleink rendelkezésére!
Lukács Péter

Lukács Péter

Hívjon bizalommal

+36-30-694-Mutasd!

További hirdetéseim

Ingatlaniroda
GDN Ingatlanhálózat - Belváros
+36 1 783 2515

Küldjön üzenetet

Visszahívást kérek

Hasonló ingatlanok