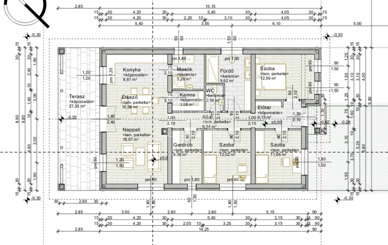
Berkenye csendes, PANORÁMÁS részén eladó 1651 nm-es telken, 2026-ban épült, nettó 114 nm-es (+28 nm-es fedett terasz) családi ház!
Műszaki jellemzői:
-szerkezete 30-as Porotherm tégla + 15 cm-es grafitos szigetelés
- tető Terrán beton cserép fedésű
- 3 rétegű üvegezéssel műanyag nyílászárók
- látszó fagerendás fafödém, rajta 30 cm-es kőzetgyapot
- a fűtés ECO PV hőszivattyúval (energiahatékony-környezettudatos) megoldott, padlófűtéssel
- a nappaliban épített kémény található, mely lehetőséget biztosít a későbbiekben cserépkályha vagy kandalló beüzemelésére,
- elektromos hálózat 3 x 25 Amperes, "okosórás"
- napelemes rendszer kiállása kiépítésre kerül
-épület szellőztetését egy hővisszanyerős szellőztetési rendszer
biztosítja igény esetén
- H tarifás klímának kiállás a nappaliban és a szobákban.
Ami még választható:
- hidegburkolatok 8500 ft/nm melegburkolatok 6500 ft/nm árig (efelett feláras)
-szaniterek, csaptelepek,
- igény szerint fürdőkádas vagy zuhanyzós fürdő is kialakítható
- beltéri ajtók tokkal, kilinccsel 50.000 ft-ig (efelett feláras)
- a kerítés, kapu, térkövezés, autónak fedett beálló kialakítása szintén feláras.
Az ingatlan jelenleg 60%-os készültségi fokban van, a teljes kivitelezésre további 3 hónap szükséges.
A kivitelező referencia munkákkal is rendelkezik a ház közelében, igény esetén megtekinthetőek.
Kinek ajánlom? Aki egy közkedvelt településen, jó laköközösségben élne, egy új, igényesen kivitelezett családi házban. Aki értékeli a hatalmas telket, és a ház természetközeli elhelyezkedését. A közelben túraútvonalak tömkelege, és számtalan látványosság várja az odaköltözőket. Pl. Hársas-tó, Nógrád vára, nógrádi vadaspark, nőtincsi Szent István tó, Gyadai tanösvény, Csóványosi-kilátó
Sétatávolságra található a 331-es busz (Vác és Rétság között közlekedik) megállója és az S750-es Vác és Diósjenő között közlekedő vonat állomása.
A vásárlást INGYENES hitel tanácsadással, előminősítéssel segítjük. CSOK Plusz- Otthon Start ügyintézés! 16 pénzintézet lehetőségeit vázolja ügyintézőnk, és versenyezteti is őket, hogy Ön a legkedvezőbb ajánlatot kapja.