Eladó Családi ház Biatorbágy - Új építés, központi helyen

206 m2Alapterület 5 Szoba
219 000 000 Ft Ár
392701Azonosító
További adatok

600 m2 Telek

Udvari Kilátás

Új Állapot

Tégla Szerkezet

24 m2 Erkély/terasz

Elektromos Fűtés

Dupla komfort Komfort

Saját garázs Parkolás

Kiváló Tömegközlekedés

Amerikai konyhás

Van Kertkapcsolat

2025 Építés éve

Délnyugati Tájolás

Hitelkalkuláció – a részletekért kattintson valamelyik bank logójára!

Azonnal költözhető, kulcsrakész otthon – kompromisszumok nélkül!

Modern, energiatakarékos és kényelmes családi otthon Biatorbágy egyik nyugodt, mégis kiváló adottságú részén.
Ilyen lehetőség Biatorbágyon kevésszer akad, ne maradjon le róla! Központban, csendes mellékutcában helyezkedik el a családi ház.
Ebben az ingatlanban megtalálja amit keres!

Főbb jellemzők

Építés éve: 2025
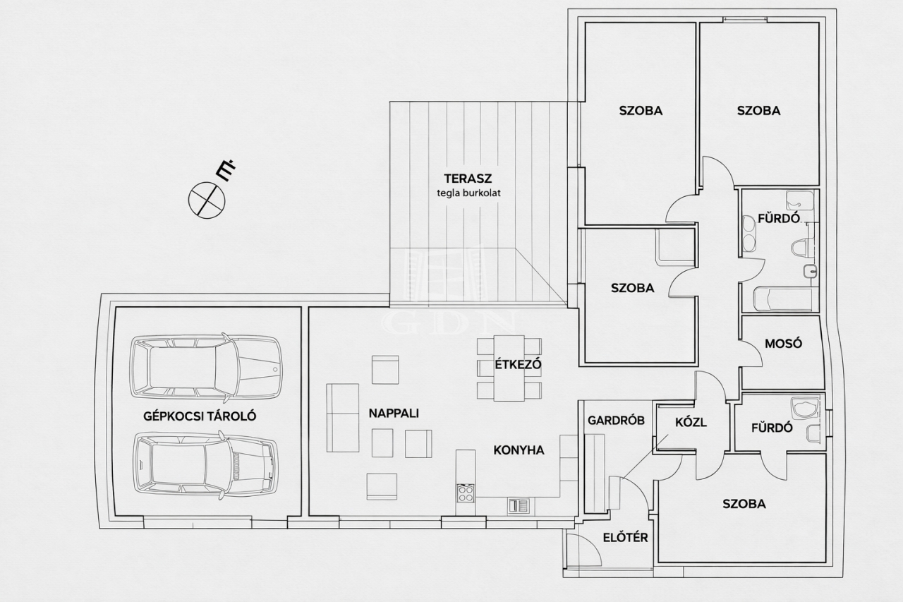
Lakótér: nappali + 4 hálószoba
Telek: kb. 600 nm
Terasz: 24 nm
Tájolás: Dél–nyugati
Dupla garázs, automatán nyíló kapuk
Napelem rendszer
Elektromos fűtés - hűtő/fűtő klíma szolgálja a meleget télen, nyáron pedig a hűvös levegőt

Tágas, világos terek – élhető elrendezés

A földszintes kialakítás maximális kényelmet biztosít.
A nappali–étkező egy légtérben, közvetlen teraszkijárattal és kertkapcsolattal rendelkezik – tökéletes családi összejövetelekhez vagy nyugodt estékhez.

A nagy méretű nyílászáróknak köszönhetően az otthon egész nap természetes fényben úszik, miközben a kialakítás megőrzi a kert intimitását.

A praktikus alaprajz, a megfelelő szobaszám és az élhető méretek valódi, hosszú távon is kényelmes családi otthont biztosítanak.
Ahogy belépünk az épületbe egy tágas előszoba fogad minket, majd a közlekedőn keresztül közelítjük meg a további helyiségeket.
Elől is kapott helyet EGY HÁLÓSZOBA külön zuhanyzós fürdőszobával wc-vel. A komfort érzetet erősíti, hogy külön mellékhelyiség is elhelyezésre került az ingatlanban.
Majd hátul további 3 hálószoba várja a lakóit, még egy fürdőszoba és egy háztartási helyiség.

Ajándék, gépesített konyha, ritkaság új építésű házaknál

Az ár tartalmazza a modern, beépített konyhabútort, gépesítve:
✔ mosogatógép
✔ sütő
✔ főzőlap
✔ páraelszívó

Önnek csak költöznie kell.

Modern technológia = alacsony rezsi

PASSZÍV ház technológiával épült!
A legkorszerűbb építési technológiának és a napelem rendszernek köszönhetően a fenntartási költségek kimondottan kedvezőek, így hosszú távon is értékálló befektetés.

Környezet:
Csendes, nyugodt mellékutca, de 2-3 perc sétával máris a központban találja magát, ahol boltok, üzletek, szolgáltatások, buszmegálló teszik kényelmessé a mindennapokat. Séta távolságra az Egészségügyi Központ, a Polgármesteri Hivatal.
Könnyen megközelíthető a vasútállomás is.
Biatorbágyon több bölcsőde, óvoda, iskola, gimnázium is található.
Tegyen többször sétát a csodás Viadukton, és élvezze a kilátást, melyet Biatorbágy nyújt.

A képek között belső látványképek nyújtanak ötletet a belső elrendezéshez.

Telefonáljon, és egyeztessünk időpontot megtekintésre!
Lukács Péter

Lukács Péter

Hívjon bizalommal

+36-30-694-Mutasd!

További hirdetéseim

Ingatlaniroda
GDN Ingatlanhálózat - Belváros
+36 1 783 2515

Küldjön üzenetet

Visszahívást kérek

Hasonló ingatlanok