Kiadó Üzlethelyiség Budapest III. kerület - Bécsi út

437 m2Alapterület 0 Szoba
1 200 000 Ft /Hó Ár
394261Azonosító
További adatok

Utcai Kilátás

Jó állapotú Állapot

Tégla Szerkezet

Egyéb Fűtés

Utcán, közterületen Parkolás

Kiváló Tömegközlekedés

2000 Építés éve

Délnyugati Tájolás

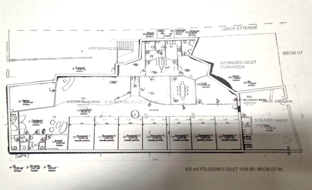
BÉCSI ÚT ÜZLETHELYISÉG!

FIGYELEM: a kínált üzlethelyiség egyik legnagyobb előnye, hogy a méretéből adódóan 2 külön vállalkozás, illetve tevékenység számára is megfelelő mérettel rendelkezik. A különböző tevékenységek egymástól hermetikusan elzártan működhetnek, ugyanis azok két külön utca felőli is megközelíthetőek (részben a Bécsi út, részben pedig a III. kerületi bíróság belső parkolója felől (ennek havi költsége 100eur/hó, amely 1db autó parkolására kínál lehetőséget).

Eddigi üzemeltetések:
könyvkiadó, műkörmös nagykereskedés, bútor bolt, Volt ételkihordó üzletlánc. Fontos megemlíteni, hogy vendéglátó egységként nem üzemeltethető.

2016.07.12-én készült Energetikai tanúsítvány alapján a helyiség DD besorolást kapott.

Elsődleges fűtés fain-coil, infra panel és inverteres hűtő-fűtő klíma.

Az üzlethelyiség egyben eladó is, melynek ára 75.000.000 Ft
Jelenlegi besorolás: üzlet és iroda, kereskedelmi egység.
Lukács Péter

Lukács Péter

Hívjon bizalommal

+36-30-694-Mutasd!

További hirdetéseim

Ingatlaniroda
GDN Ingatlanhálózat - Belváros
+36 1 783 2515

Küldjön üzenetet

Visszahívást kérek

Hasonló ingatlanok