Eladó Lakás (téglaépítésű) Budapest V. kerület - Stollár Béla utca

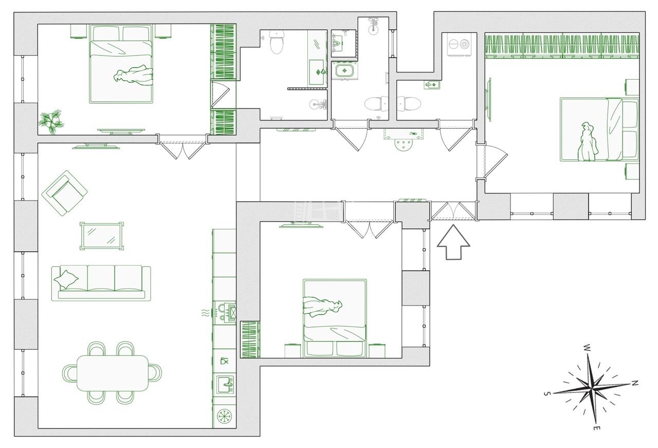
102 m2Alapterület 4 Szoba
259 000 000 Ft Ár
386414Azonosító
További adatok

Utcai Kilátás

Felújított Állapot

Tégla Szerkezet

Gáz (cirkó) Fűtés

Luxus Komfort

Utcán, közterületen Parkolás

Emelet 1

Van Lift

Kiváló Tömegközlekedés

Amerikai konyhás

Nincs Kertkapcsolat

1950 Építés éve

Déli Tájolás

Hitelkalkuláció – a részletekért kattintson valamelyik bank logójára!

Eladó luxuslakás a Parlament szomszédságában, Budapest belvárosában!

A Stollár Béla utcában, elegáns polgári ház 1. emeletén kínálunk megvételre egy 279 millió forintos, teljes körűen felújított, prémium minőségű lakást.

A 3,8 méteres belmagasság, a déli fekvés és a csendes utca kombinációja garantálja a világos, tágas tereket és a nyugodt otthoni hangulatot.

Kialakítás:
• impozáns nappali konyhával és étkezővel (37 m²)
• mester hálószoba saját fürdőszobával és gardróbbal
• további két hálószoba / iroda / gyerekszoba
• második fürdőszoba és külön vendégmosdó
• mosókonyha, tágas előszoba

A lakás minden részlete új: modern gépészet, energiahatékony fűtés és hűtés, tölgyfa parketta, designbútorok és minőségi háztartási gépek.

Elhelyezkedés:
A Parlament, a Bazilika, az Opera, a Margitsziget, bevásárló- és üzleti központok, valamint több neves iskola és egyetem mind sétatávolságban találhatók. A metró mindössze 3 perc alatt elérhető.

Ez az ingatlan ideális választás azok számára, akik a belváros szívében keresnek exkluzív, azonnal költözhető otthont – vagy akár értékálló befektetést.

Ár: 279 millió Ft
Lukács Péter

Lukács Péter

Hívjon bizalommal

+36-30-694-Mutasd!

További hirdetéseim

Ingatlaniroda
GDN Ingatlanhálózat - Belváros
+36 1 783 2515

Küldjön üzenetet

Visszahívást kérek

Hasonló ingatlanok