Eladó Lakás (téglaépítésű) Budapest VIII. kerület - páratlan panoráma

53 m2Alapterület 2 + 1 Szoba
83 900 000 Ft Ár
392530Azonosító
További adatok

Panoráma Kilátás

Felújított Állapot

Tégla Szerkezet

Házközponti Fűtés

Összkomfort Komfort

Utcán, közterületen Parkolás

Emelet 6

Van Lift

Kiváló Tömegközlekedés

Amerikai konyhás

Nincs Kertkapcsolat

1970 Építés éve

Közös költség 19 800 Ft

Hitelkalkuláció – a részletekért kattintson valamelyik bank logójára!

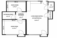
VIII. kerület illusztris részén, Corvin közből nyíló jó állapotú, liftes társasház 6. emeletén eladásra kínálok, egy teljes körűen felújított, impozáns állapotú, roppant világos, örök panorámás, ablakos konyhás, 2+1 fél különnyíló szobás, klimatizált téglalakást.

A felújítás során a víz, villany vezetékek, szerelvények, szaniterek, hideg, meleg burkolatok, nyílászárók cseréje megtörtént.

A környék ellátottsága hiánytalan, tömegközlekedési eszközök, szolgáltatások tucatja sétatávolságra.

Az ingatlan a hét bármely napján megtekinthető és azonnal birtokba is vehető!

Várom a hívását, akár hétvégén is!

B.Cs.
Lukács Péter

Lukács Péter

Hívjon bizalommal

+36-30-694-Mutasd!

További hirdetéseim

Ingatlaniroda
GDN Ingatlanhálózat - Belváros
+36 1 783 2515

Küldjön üzenetet

Visszahívást kérek

Hasonló ingatlanok