Eladó Lakás (téglaépítésű) Budapest XIII. kerület - Reitter Ferenc utca

42 m2Alapterület 2 Szoba
77 400 000 Ft Ár
391785Azonosító
További adatok

Utcai Kilátás

Új Állapot

Beton Szerkezet

5 m2 Erkély/terasz

Hőszivattyú Fűtés

Összkomfort Komfort

Garázs/beálló vásárolható Parkolás

Emelet 3

Van Lift

Kiváló Tömegközlekedés

Amerikai konyhás

Nincs Kertkapcsolat

2027 Építés éve

Délnyugati Tájolás

Hitelkalkuláció – a részletekért kattintson valamelyik bank logójára!

„ÁLMODJA MEG OTTHONÁT VELÜNK”
BUDAPEST XIII. kerületben a REITTER FERENC utcában, a Rákos patak közelében, MEGBÍZHATÓ kivitelezőtől, ÚJ ÉPÍTÉSŰ, 16 lakásos, 5 emeletes, liftes társasházban 2027. II. negyedévben átadásra kerülő 42 m2 és 85 m2 alapterület közötti, 2 és 3 szobás, erkélyes, kiváló minőségű, A+ energetikájú lakások ELADÓK.

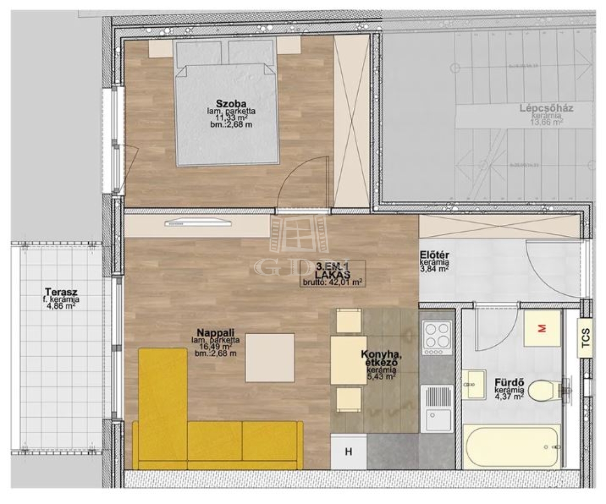
3. emelet – 42 m2 - 2 szoba – 5 m2 erkély – ELÉRHETŐ

A 25 ÉVES építési TAPASZTALATTAL rendelkező kivitelező olyan lakásokat épít, amelyek biztonságot, stabilitást nyújtanak, ezért is tartja kötelességének, hogy a LEGJOBB minőséget és a legkörültekintőbb kiszolgálást nyújtsa. Megbízható, igényes kivitelezőtől KIVÁLÓ ÁR-ÉRTÉK arányú ingatlant vásárolhat.

A kivitelezést modern, időtálló stílus és PRÉMIUM anyaghasználat jellemzi. A legmagasabb MŰSZAKI tartalommal épülő társasházban a HŐSZIVATTYÚS rendszer biztosítja a padló és mennyezet hűtés-fűtést és meleg víz ellátását. Az épület A+ ENERGETIKÁJÚ, 15 cm grafitos homlokzati szigeteléssel és 3 rétegű hőszigetelt külső nyílászárókkal.

Az 5 emeletes 16 lakásos társasház teremgarázsában AUTÓBEÁLLÓK és TÁROLÓK is épülnek, melyek külön is megvásárolhatók. Részletes műszaki tartalom a kivitelezővel történt egyeztetést követően. Alaprajz és fotók tájékoztató jellegűek.

Átadás: 2027. II. negyedév

A folyamatosan fejlődő városrészben a lokáció és a közlekedés kiváló. Ajánlom azoknak, akik OTTHONT keresnek jó közlekedéssel, BEFEKTETŐKNEK pedig a kiváló elhelyezkedés és értékállósága miatt.

Hívjon bizalommal, ha az ajánlat felkeltette érdeklődését.
Lukács Péter

Lukács Péter

Hívjon bizalommal

+36-30-694-Mutasd!

További hirdetéseim

Ingatlaniroda
GDN Ingatlanhálózat - Belváros
+36 1 783 2515

Küldjön üzenetet

Visszahívást kérek

Hasonló ingatlanok