Eladó Ikerház Budapest XV. kerület - Árvavár utca

141 m2Alapterület 5 Szoba
170 000 000 Ft Ár
389938Azonosító
További adatok

720 m2 Telek

Kertre néző Kilátás

Új Állapot

Tégla Szerkezet

Gáz (cirkó) Fűtés

Dupla komfort Komfort

Saját garázs Parkolás

Kiváló Tömegközlekedés

Amerikai konyhás

Van Kertkapcsolat

2025 Építés éve

Hitelkalkuláció – a részletekért kattintson valamelyik bank logójára!

KIVÉTELES ADOTTSÁGÚ IKERHÁZ REFERENCIÁVAL RENDELKEZŐ BERUHÁZÓTÓL A KIÍRT ÁRON KULCSRAKÉSZEN!

XV. kerület hangulatos kertvárosában, tömegközlekedési eszközök, közintézmények és számos szolgáltatás gyűrűjében kínálok eladásra, egy kitűnő adottságú, 350 m2 -es telken elhelyezkedő, 2025-ös építésű, két szintes, dupla komfortos, magas műszaki tartalommal rendelkező ikerházat.

Pillanatnyilag a ház mindkét lakása elérhető, amik az utcáról, egymástól elszeparáltan megközelíthetőek.

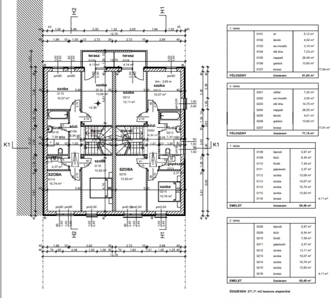
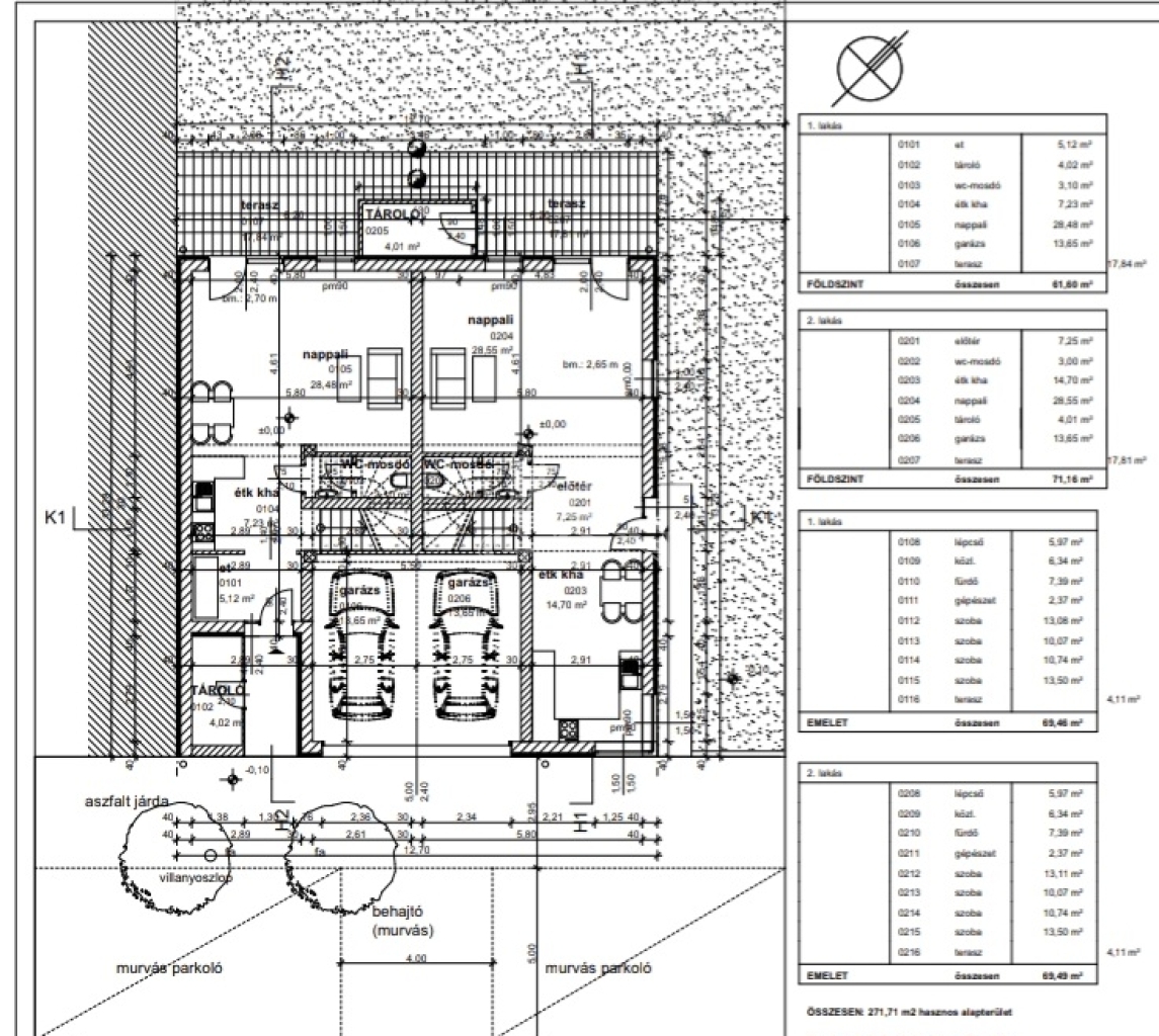
Az 1 lakás 130 m2 alapterülettel, a földszinten garázzsal,wc-vel ,amerikai konyhás-nappalival, az emeleten pedig 4 hálószobával + fürdőszobával került kialakításra.
Irányára: 130 Millió Ft


A 2 lakás nagyobb kertkapcsolattal, 141 m2 alapterülettel, földszinten garázzsal,wc-vel ,amerikai konyhás-nappalival, az emeleten pedig 4 hálószobával + fürdőszobával került kialakításra.
Irányára: 170 Millió Ft


A jelenlegi készültségi állapot lehető teszi, hogy a belső tartalom a vevő igényeihez legyen igazítva.
A tulajdonos a hideg és meleg burkolatokat 10 ezer, a szanitereket 400 ezer, a beltéri ajtókat 100 ezer forintos összeghatárig biztosítja, magasabb vevői igény a különbözet megfizetése után lehetséges.

Az ingatlan megtekinthető a hét bármely napján!
Várom a hívását, akár hétvégén is!

B.Cs.
Lukács Péter

Lukács Péter

Hívjon bizalommal

+36-30-694-Mutasd!

További hirdetéseim

Ingatlaniroda
GDN Ingatlanhálózat - Belváros
+36 1 783 2515

Küldjön üzenetet

Visszahívást kérek

Hasonló ingatlanok