Eladó Ikerház Budapest XVIII. kerület - Alacskai út

137 m2Alapterület 5 Szoba
149 900 000 Ft Ár
387740Azonosító
További adatok

375 m2 Telek

Kertre néző Kilátás

Új Állapot

Tégla Szerkezet

25 m2 Erkély/terasz

Hőszivattyú Fűtés

Összkomfort Komfort

Saját garázs Parkolás

Tömegközlekedés

Amerikai konyhás

Van Kertkapcsolat

2025 Építés éve

Hitelkalkuláció – a részletekért kattintson valamelyik bank logójára!

Eladó újépítésű ikerház a XVIII. kerület közkedvelt részén – Almáskertben!

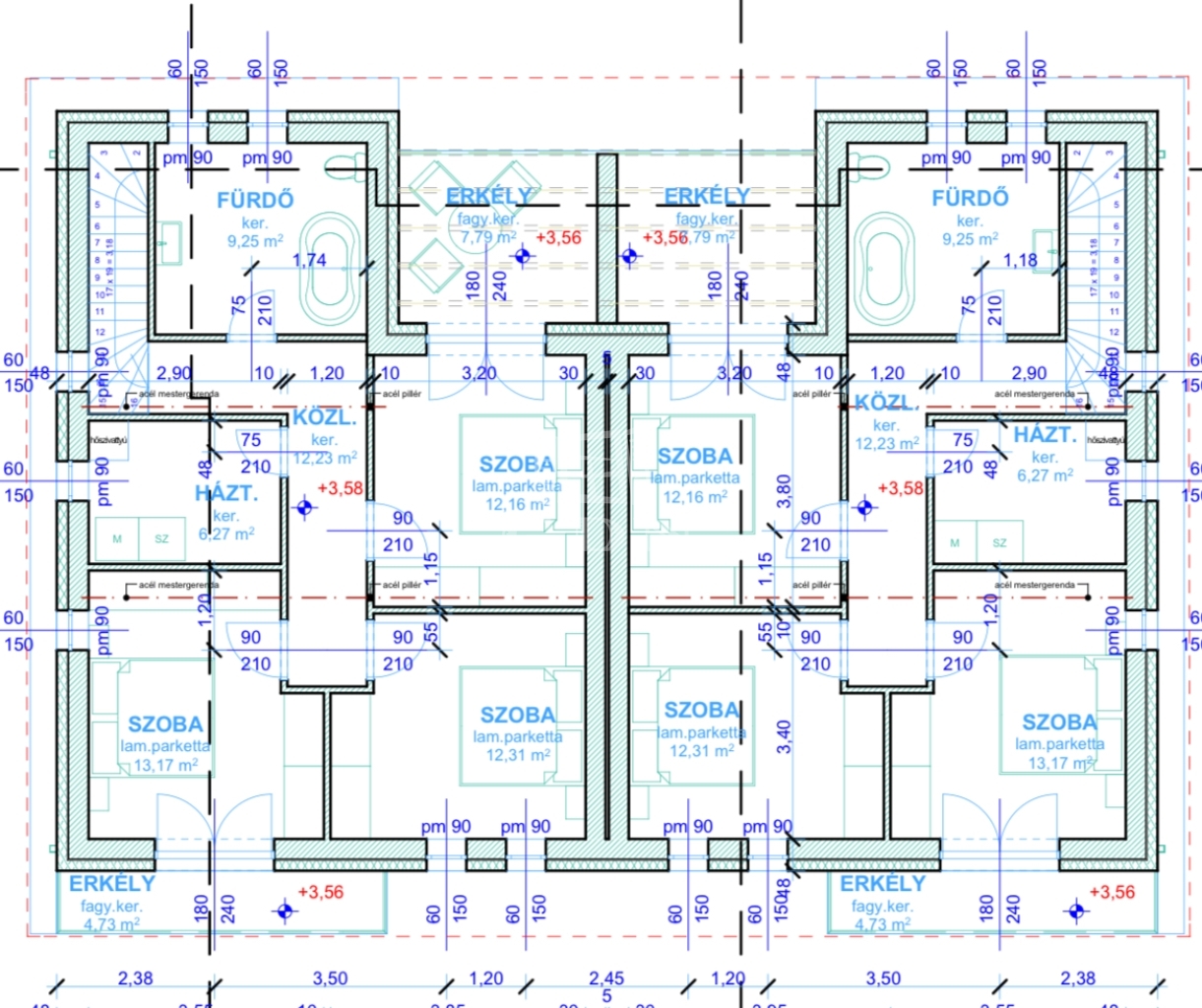
Budapest XVIII. kerületében, Almáskert csendes utcájában kínálunk eladásra egy modern, 137 m²-es, nappali + 4 hálószobás ikerházat, garázzsal, saját kerttel, terasszal és erkéllyel.

Az ingatlan elrendezése kényelmes és családbarát:
• amerikai konyhás, világos nappali
• 4 külön nyíló hálószoba
• 2 fürdőszoba WC-vel
• háztartási helyiség és kamra
• garázs, terasz (17 m²) és erkély (8 m²)

Műszaki tartalom és extrák:
• 30 cm Leier tégla falazat + 10 cm grafitos szigeteléssel
• 20 cm kőzetgyapot szigetelés a födémen
• 3 rétegű nyílászárók
• hőszivattyús fűtés padlófűtéssel az egész házban
• választható klíma kiépítés minden szobába, vagy 3,5 kW-os klíma a nappaliba
• elektromos tolókapu és garázskapu
• napelem előkészítés
• komplett riasztó + kamerarendszer

A kivitelezés részeként biztosított:
• melegburkolat 5.000 Ft/m² értékben (filc alátéttel, szegéllyel)
• hidegburkolat 5.000 Ft/m² értékben (fugával és váltókkal)
• szaniterek és beltéri nyílászárók választhatók a készültségi foknak megfelelően

További igények esetén extra kiállások és kiegészítők kérhetők.

Elhelyezkedés:

Az ingatlan Almáskert kertvárosi részén épül, nyugodt környezetben, ugyanakkor közel a központhoz és a mindennapi élethez szükséges szolgáltatásokhoz. Tömegközlekedése is kedvező.

A kivitelezőről:
Megbízható, tapasztalt cég, számos referenciamunkával a környéken, amelyek személyesen is megtekinthetők. A minőségi kivitelezés és a korrekt együttműködés garantált.

Fontos információk:
• várható átadás: 2025. IV. negyedév
• 30% önerővel lefoglalható
• minden jelenleg elérhető támogatás igénybe vehető

Ár: 145.000.000 Ft

A hét bármely napján elérhető vagyok , akár hétvégén is! Segítünk a finanszírozásban is független hitelszakértő közreműködésével!
Lukács Péter

Lukács Péter

Hívjon bizalommal

+36-30-694-Mutasd!

További hirdetéseim

Ingatlaniroda
GDN Ingatlanhálózat - Belváros
+36 1 783 2515

Küldjön üzenetet

Visszahívást kérek

Hasonló ingatlanok