Eladó Ikerház Budapest XVIII. kerület - Kerékvágás út

167 m2Alapterület 4 Szoba
159 900 000 Ft Ár
387747Azonosító
További adatok

612 m2 Telek

Kertre néző Kilátás

Új Állapot

Tégla Szerkezet

Hőszivattyú Fűtés

Összkomfort Komfort

Saját garázs Parkolás

Tömegközlekedés

Amerikai konyhás

Van Kertkapcsolat

2026 Építés éve

Hitelkalkuláció – a részletekért kattintson valamelyik bank logójára!

XVIII. kerület – Almáskert szívében ikerház középső lakása eladó!

Almáskert csendes mellékutcájában, a telek középső részén elhelyezkedő, modern, prémium minőségű ikerházfél várja új tulajdonosát.
A széles telek bal oldalán futó, leválasztott (szolgalmi) útról történik a megközelítés (4,5 m × 70 m). Erről az útról először az utcafronti ikerfél nyílik, mögötte található ez a középső lakás, az út végén pedig egy különálló, önálló családi ház kap helyet nagyobb kerttel – így a középső lakás nyugodt, intim elhelyezkedésű, átmenő forgalom nélkül.

(Még választhat: az első vagy a középső ikerfél, illetve a különálló ház is rendelkezésre áll!)

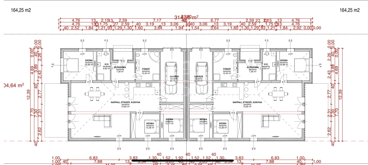
Alapterület: 167 m² (nettó), 210 m² (bruttó)
Szobák száma: 3
Telek mérete: 612 m²

Elrendezés
• Szoba: 15,98 m²
• Szoba: 12,28 m²
• Szoba: 13,77 m²
• Nappali–étkező–konyha: 73,82 m²
• Garázs: 20,76 m²
• Előszoba: 7,39 m²
• Fürdőszoba: 12,42 m²
• Háztartási helyiség: 6,83 m²

Műszaki jellemzők
• 30-as Leier falazat 10 cm grafitos szigeteléssel, lábazat 15 cm XPS
• Belső falak: 10 cm Leier tégla
• Födém: 20 cm kőzetgyapot szigetelés
• Hőszivattyú + padlófűtés az egész házban
• 3 rétegű, energiatakarékos külső nyílászárók
• Választható klíma: vagy 1 db a nappaliban, vagy komplett kiállás minden szobába
• Elektromos kapu, napelem-előkészítés
• Kamerarendszer és riasztó beépítve

A vételár tartalmazza
• Melegburkolat: 5.000 Ft/m² (filc alátéttel, szegéllyel)
• Hidegburkolat: 5.000 Ft/m² (fugával, burkolatváltókkal)
• Beltéri ajtó kilinccsel: 80.000 Ft/db
• Kád tartozékaival: 80.000 Ft/db
• Csaptelep: 20.000 Ft/db
• Mosdó: 20.000 Ft/db
• Plusz vízkiállás: 50.000 Ft/db
• Villanykiállás (fejegységenként): 30.000 Ft/db
• Kerti csap szerelve: 100.000 Ft/db

Szaniterek és belső ajtók készültségi foktól függően választhatók. Extra igények és változtatások egyeztetés alapján kérhetők.

Kivitelező

Megbízható, tapasztalt cég, sok, a környéken található referenciamunkával, melyek előre egyeztetve személyesen is megtekinthetők. Minőségi kivitelezés, korrekt együttműködés.

Pénzügyek, jog
• 30% önerővel lefoglalható
• Várható átadás: 2026. III. negyedév
• Jogosult minden aktuális támogatásra
• Finanszírozásban segítünk (független hitelszakértő), ügyvédi háttér garantált

Érdeklődjön még ma! Hívjon a hét bármely napján további információért és megtekintésért.
Lukács Péter

Lukács Péter

Hívjon bizalommal

+36-30-694-Mutasd!

További hirdetéseim

Ingatlaniroda
GDN Ingatlanhálózat - Belváros
+36 1 783 2515

Küldjön üzenetet

Visszahívást kérek

Hasonló ingatlanok