Eladó Ikerház Budapest XVIII. kerület - Kerékvágás út

167 m2Alapterület 4 Szoba
159 900 000 Ft Ár
387748Azonosító
További adatok

612 m2 Telek

Kertre néző Kilátás

Új Állapot

Tégla Szerkezet

Hőszivattyú Fűtés

Összkomfort Komfort

Saját garázs Parkolás

Tömegközlekedés

Amerikai konyhás

Van Kertkapcsolat

2026 Építés éve

Hitelkalkuláció – a részletekért kattintson valamelyik bank logójára!

XVIII. kerület – Almáskert szívében utcafronti ikerházfél eladó!

Almáskert csendes mellékutcájában, a telek utcafronti részén elhelyezkedő, modern, prémium minőségű ikerházfél várja új tulajdonosát.
A széles telket a bal oldalán leválasztott szolgalmi út szolgálja ki (4,5 m × 70 m), így az ingatlan közvetlenül az utcáról és a szolgalmi útról is megközelíthető. A telek belső részén helyezkedik el a középső ikerfél, a legvégén pedig egy különálló, önálló családi ház kap helyet – az elrendezés rendezett, átlátható, a forgalom szervezett.

(Még választhat: az első vagy a középső ikerfél, illetve a különálló ház is rendelkezésre áll!)

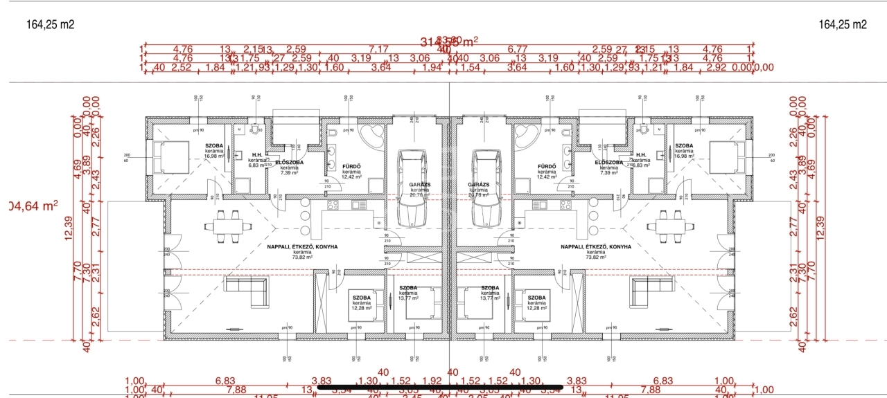
Alapterület: 167 m² (nettó), 210 m² (bruttó)
Szobák száma: 3
Telek mérete: 612 m²

Elrendezés
• Szoba: 15,98 m²
• Szoba: 12,28 m²
• Szoba: 13,77 m²
• Nappali–étkező–konyha: 73,82 m²
• Garázs: 20,76 m²
• Előszoba: 7,39 m²
• Fürdőszoba: 12,42 m²
• Háztartási helyiség: 6,83 m²

Műszaki jellemzők
• 30-as Leier falazat 10 cm grafitos szigeteléssel, lábazat 15 cm XPS
• Belső falak: 10 cm Leier tégla
• Födém: 20 cm kőzetgyapot szigetelés
• Hőszivattyú + padlófűtés az egész házban
• 3 rétegű, energiatakarékos külső nyílászárók
• Választható klíma: 1 db a nappaliba vagy komplett kiállás minden szobába
• Elektromos kapu, napelem-előkészítés
• Kamerarendszer és riasztó beépítve

A vételár tartalmazza
• Melegburkolat: 5.000 Ft/m² (filc alátéttel, szegéllyel)
• Hidegburkolat: 5.000 Ft/m² (fugával, burkolatváltókkal)
• Beltéri ajtó kilinccsel: 80.000 Ft/db
• Kád tartozékaival: 80.000 Ft/db
• Csaptelep: 20.000 Ft/db
• Mosdó: 20.000 Ft/db
• Plusz vízkiállás: 50.000 Ft/db
• Villanykiállás (fejegységenként): 30.000 Ft/db
• Kerti csap szerelve: 100.000 Ft/db

Szaniterek és belső ajtók készültségi foktól függően választhatók. Extra igények és változtatások egyeztetés alapján kérhetők.

Kivitelező

Megbízható, tapasztalt cég, számos, a környéken megtekinthető referenciamunkával. Időpont-egyeztetéssel személyes referencia-bejárás is lehetséges.

Pénzügyek, jog
• 30% önerővel lefoglalható
• Várható átadás: 2026. III. negyedév
• Jogosult minden aktuális támogatásra
• Finanszírozásban segítünk (független hitelszakértő), ügyvédi háttér garantált
• (Projektjog: osztatlan közös, ügyvédi megosztással)

Érdeklődjön még ma! Hívjon a hét bármely napján további információért és megtekintésért.
Lukács Péter

Lukács Péter

Hívjon bizalommal

+36-30-694-Mutasd!

További hirdetéseim

Ingatlaniroda
GDN Ingatlanhálózat - Belváros
+36 1 783 2515

Küldjön üzenetet

Visszahívást kérek

Hasonló ingatlanok