Eladó Ikerház Budapest XVIII. kerület - Nemes utca

190 m2Alapterület 5 Szoba
199 000 000 Ft Ár
391109Azonosító
További adatok

275 m2 Telek

Kertre néző Kilátás

Építés alatt Állapot

Tégla Szerkezet

10 m2 Erkély/terasz

Hőszivattyú Fűtés

Dupla komfort Komfort

Saját garázs Parkolás

Kiváló Tömegközlekedés

Amerikai konyhás

Van Kertkapcsolat

2026 Építés éve

Déli Tájolás

Hitelkalkuláció – a részletekért kattintson valamelyik bank logójára!

Új építésű ikerházak eladók a XVIII. kerületben, a Nemes utcában!

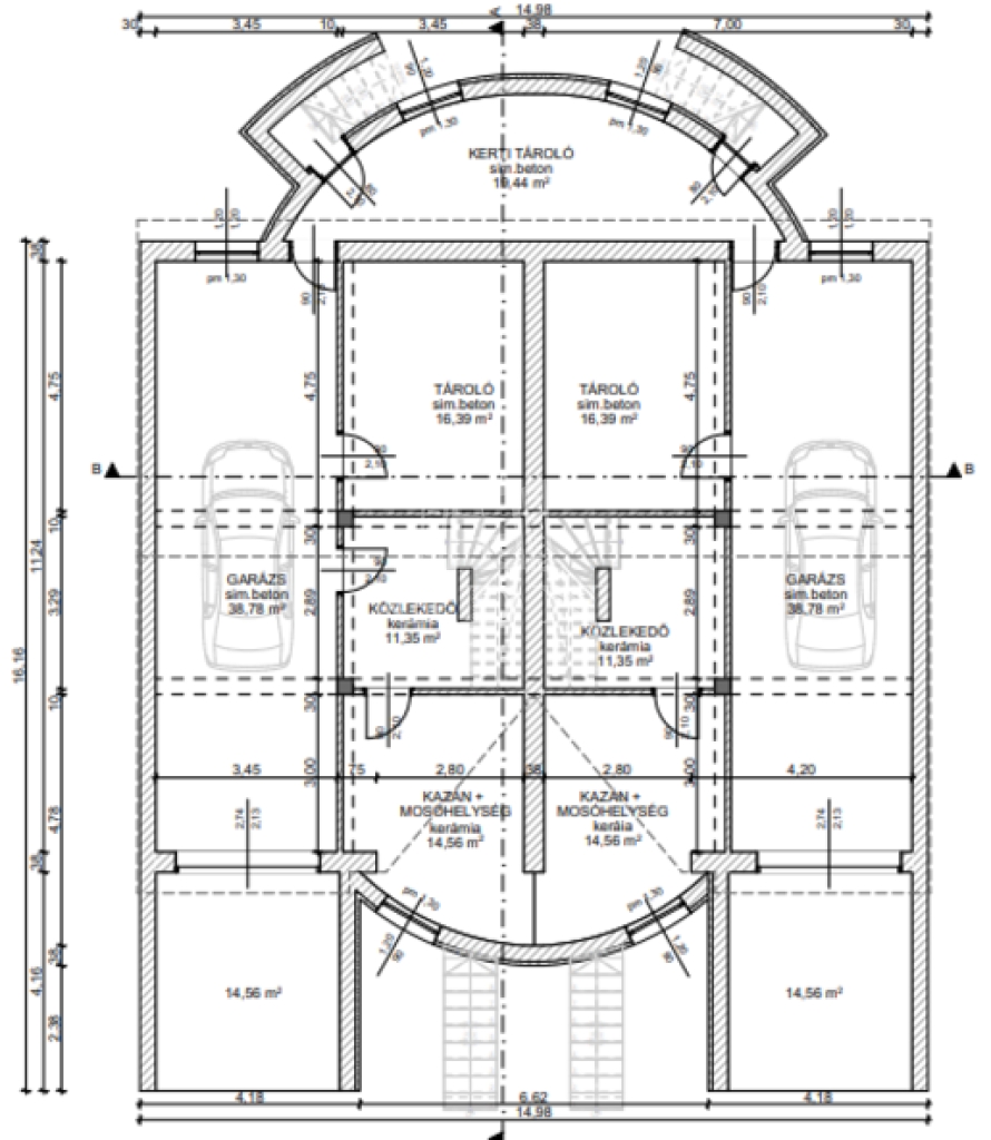
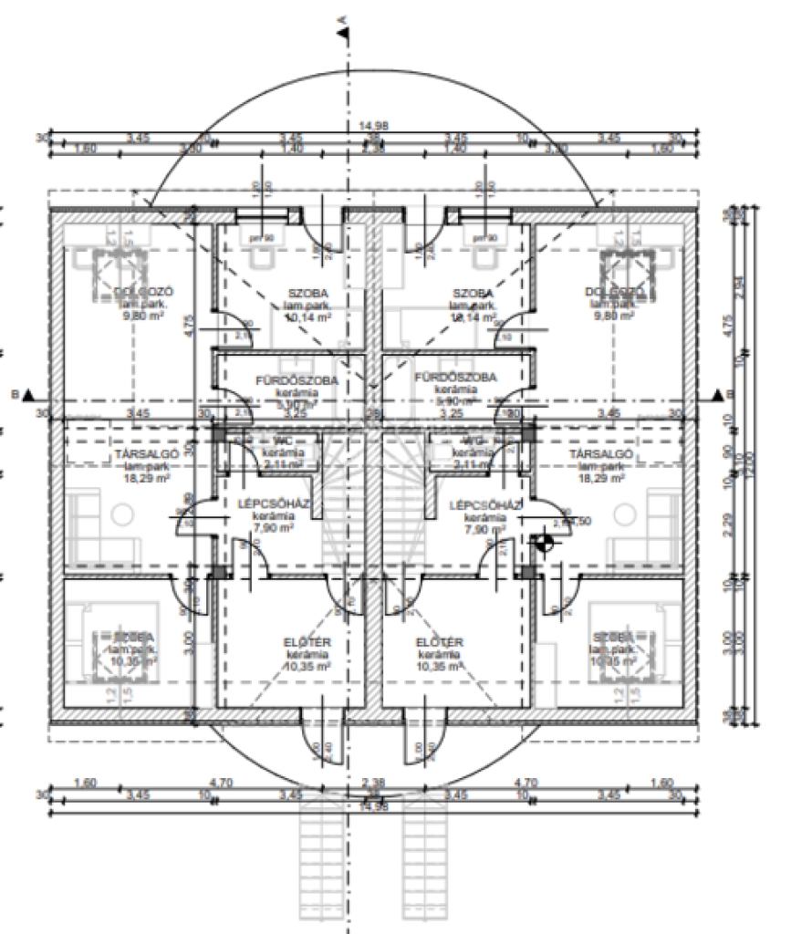
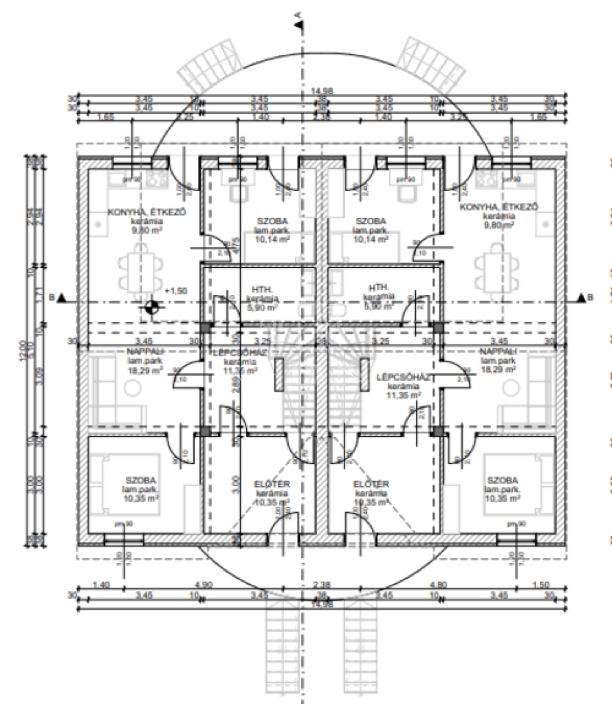
Budapest XVIII. kerületének csendes, kertvárosi részén, a Nemes utcában kínálunk megvételre modern, új építésű ikerházakat. Az ingatlanok három szintes kialakításúak, kiváló műszaki tartalommal és energiatakarékos megoldásokkal.

A földszint (80m2)és az emelet nettó (60m2)alapterülete összesen 140 m², amelyhez egy 90 m²-es pince szint is tartozik. A ház duplakomfortos, minden szinten padlófűtéssel felszerelt.

A homlokzaton 6 légkamrás, fehér műanyag nyílászárók kerülnek beépítésre 1,0-ás hőszigetelt üvegezéssel, külső-belső műanyag párkányokkal. Az ablakok elektromos redőnnyel felszereltek, kivéve a tetőtéri ablakokat, amelyek háromrétegű, 1,0-ás hőátbocsátású kivitelűek.

A belső ajtók dekorfóliás, MDF szerkezetű Stand-Door ajtók, választható színben, ajtóként 100.000 Ft értékhatárig. A gépkocsi elhelyezését elektromos garázskapu segíti.

Épületgépészet és fűtés

Az ingatlan hőszivattyús fűtési rendszerrel rendelkezik, H-tarifás villanyórával, víz- és csatornabekötéssel. A fűtés 5 rétegű csövezéssel, beszabályozva kerül átadásra. Szobánként fűtés szabályozással.
A készülék 2 M Ft értében tartalmazza az ár.

Burkolatok

Hidegburkolatok: a vevő szabadon választhatja a járólapokat és csempéket 10.000 Ft/m² árhatárig

Melegburkolatok: laminált parketta választható, 10.000 Ft/m² bruttó árig, habszivaccsal és szegélyléccel együtt

Külső kialakítás

A 275 m²-es, külön leválasztott telekhez viacolor burkolatú kocsibeálló és járda tartozik.
Az utcafronton elektromos, kétszárnyú nagykapu, míg az ikerházakat 3D táblás elválasztókerítés választja el egymástól.

A korszerű műszaki megoldásoknak köszönhetően az ingatlanok A+ energetikai besorolásúak, rendkívül alacsony fenntartási költséggel.
Engedélyezett üzlethelyiség kialakítása a pince részen!

Várható átadás: 2027. február 28.
Lukács Péter

Lukács Péter

Hívjon bizalommal

+36-30-694-Mutasd!

További hirdetéseim

Ingatlaniroda
GDN Ingatlanhálózat - Belváros
+36 1 783 2515

Küldjön üzenetet

Visszahívást kérek

Hasonló ingatlanok