Eladó Lakás (téglaépítésű) Budapest XX. kerület - Klasszikus hangulat Erzsébetfalván

142 m2Alapterület 2 + 2 Szoba
109 900 000 Ft Ár
392798Azonosító
További adatok

603 m2 Telek

Udvari Kilátás

Jó állapotú Állapot

Tégla Szerkezet

4 m2 Erkély/terasz

Gáz (cirkó) Fűtés

Összkomfort Komfort

Saját beálló Parkolás

Emelet 1

Legfelső emelet

Nincs Lift

Tömegközlekedés

Nem Amerikai konyhás

Nincs Kertkapcsolat

1904 Építés éve

Déli Tájolás

Hitelkalkuláció – a részletekért kattintson valamelyik bank logójára!

Klasszikus stílusú, elegáns családi fészek Pesterzsébet szívében

Ehhez a csodaszép ingatlanhoz akár CSERE útján is hozzájuthat!


Ha nagyobb térre vágyna, de maradna nyugodt, mégis jól megközelíthető környéken, ezt a lakást imádni fogja!
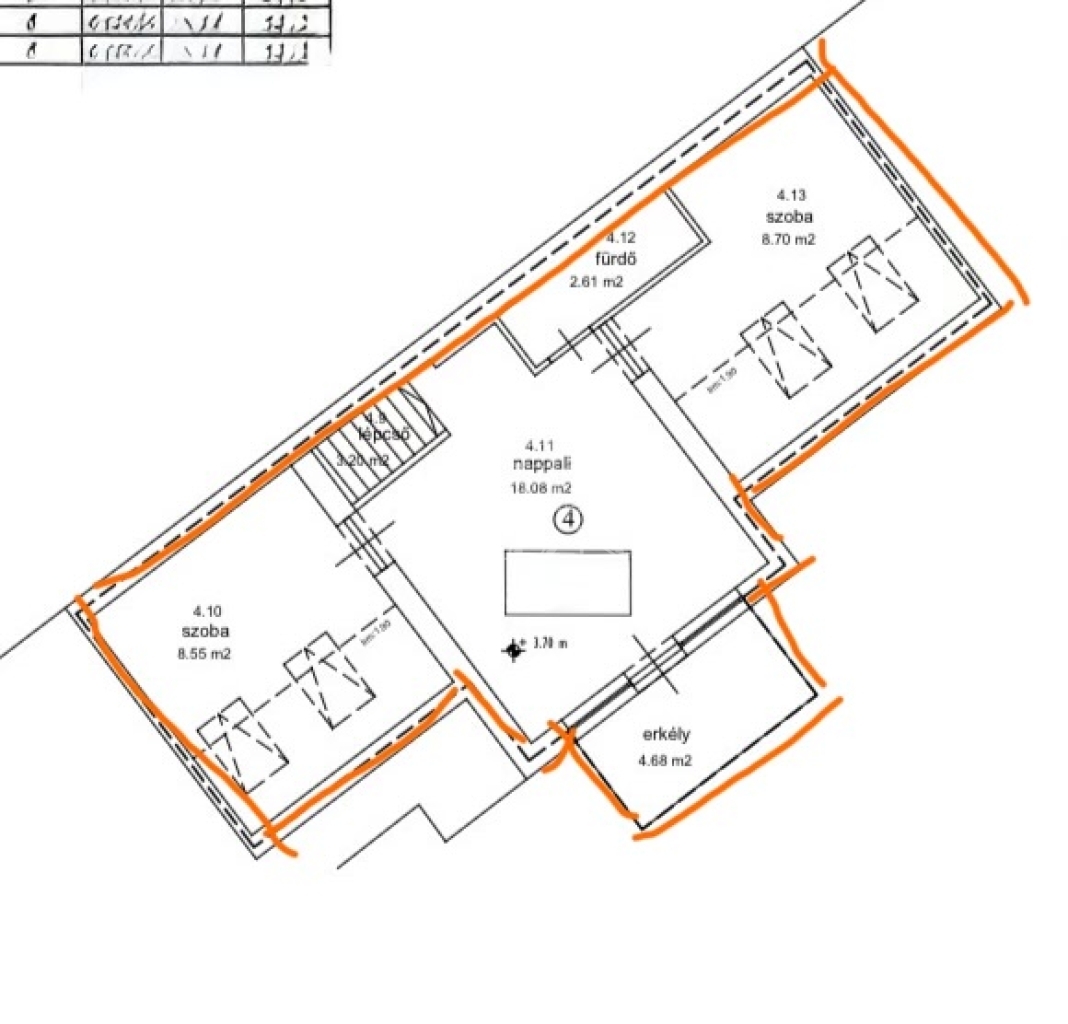
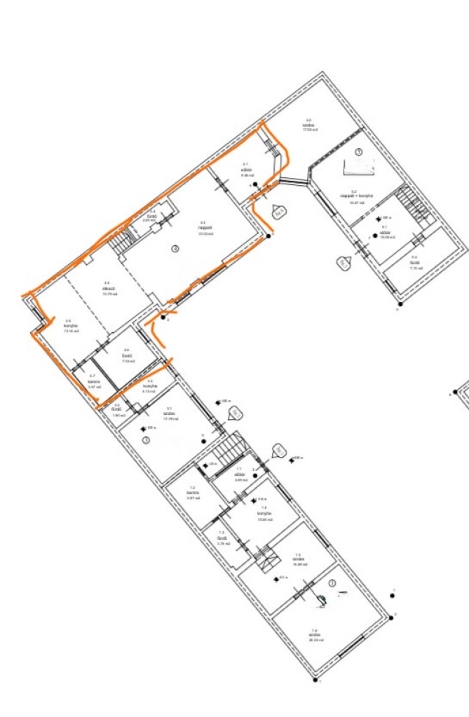
Eladó egy 142 nm-es, belső kétszintes, 3 szobás, 2 félszobás otthon Budapest XX. kerületében, családbarát környezetben.

Amit tudni érdemes:
✅ Jó állapot, egy új konyha beszerelése után azonnal költözhető
✅ Teljes tetőcsere már megtörtént
✅ Új villany- és gázvezetékek
✅ Szintenként külön biztosítéktábla
✅ Vadonatúj gázcirkó fűtés radiátorokkal
✅ 3 fürdőszoba – nincs több reggeli sorban állás!
✅ Udvari beálló + utcán ingyenes parkolás

Az alsó szinten tágas előtér gardróbbal, konyhakiállásokkal kamrával, valamint két fürdőszoba található.
A felső szint központja a világos nappali, ahonnan nyílik az erkély (4 nm) . Innen két külön nyíló szoba érhető el, valamint itt kapott helyet a harmadik fürdő is.
A lakás világos, száraz falakkal, jól szigetelő fa nyílászárókkal, fa lépcsőkorláttal. Riasztórendszer kiépítve (újraaktiválható).

Lenyűgöző hangulatú beltér,kis ráfordítással egy igazi nagyvonalú polgári otthon válhat belőle!

A környék:
Csendes, barátságos, minden a közelben – iskola, ovi, boltok, tömegközlekedés pár perc sétára.
Ideális nagycsaládosoknak vagy akár kétgenerációs együttélésre is, vagy befektetők számára egyránt.
Elsősorban készpénzes vevőket várunk!
Lukács Péter

Lukács Péter

Hívjon bizalommal

+36-30-694-Mutasd!

További hirdetéseim

Ingatlaniroda
GDN Ingatlanhálózat - Belváros
+36 1 783 2515

Küldjön üzenetet

Visszahívást kérek

Hasonló ingatlanok