Eladó Sorház Budapest XXII. kerület - Rózsavölgyi Kertkapcsolatos Sorház!

144 m2Alapterület 3 Szoba
165 900 000 Ft Ár
387114Azonosító
További adatok

232 m2 Telek

Kertre néző Kilátás

Újszerű Állapot

Tégla Szerkezet

17 m2 Erkély/terasz

Gáz (cirkó) Fűtés

Összkomfort Komfort

Garázs/beálló vásárolható Parkolás

Emelet Földszint

Nincs Lift

Tömegközlekedés

Amerikai konyhás

Van Kertkapcsolat

2010 Építés éve

Délnyugati Tájolás

Hitelkalkuláció – a részletekért kattintson valamelyik bank logójára!

Prémium sorházi lakás saját kerttel Rózsavölgy zöldövezetében!

ÁRCSÖKKENÉS!

Eladó egy kivételes szélső sorházi lakás Budapest XXII. kerületében, Rózsavölgy legszebb részén, ahol a természet közelsége és a városi kényelem tökéletes egyensúlyban van. Ideális választás családoknak, akik nyugalomra vágynak, de fontos számukra a gyors belvárosi elérhetőség (15–20 perc).

Főbb jellemzők:
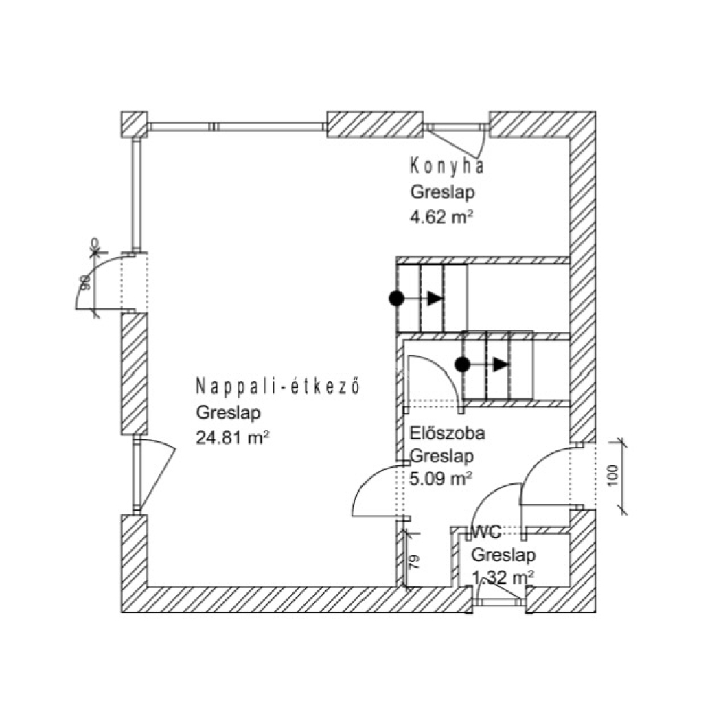
144 m² -en modern belső terek
Nappali + 2 hálószoba (akár 3 hálószobássá alakítható)
2 fürdőszoba + 3 WC
232 m² saját kert, több erkély és terasz
Teljesen gépesített, modern konyha.
Mindebből 38 m² tágas gardrób, mosókonyha, tároló, amely akár edzőtermi, wellness funkcióvá is alakítható , 16 m² fűtött garázs , vizes-kiállással, töltési lehetőséggel + udvari beálló.
Kettő Klímaberendezés.
Alacsony fenntartási költségek.

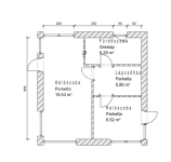
Három szint beosztása:
Pince (54 m²): garázs, gardrób, mosókonyha, tároló
Földszint (41,5 m² + 8 m² terasz): nappali, külön WC
Emelet (41 m² + 9 m² erkély): 2 szoba, fürdőszoba (3 szoba könnyen kialakítható)

Környék:
Csendes, zöldövezeti elhelyezkedés, panorámás utca
Játszóterek, óvodák pár perc sétára
Savoya Park bevásárlóközpont a közelben
Kiváló közlekedés: belváros 15–20 perc alatt elérhető.

Képzeld el, hogy egy olyan otthonra bukkansz, ahol a madárcsicsergés az ébresztő, a kerted pedig saját kis birodalom. Ez az ingatlan ritka lehetőség Rózsavölgyben: tágas, modern, gazdaságos és családbarát. Ne maradjon le róla!
A sorházi lakás irányára: 165,9 millió Ft
Garázs, amely a lakással együttesen megvásárolandó: 10 millió Ft.

A környék infrastruktúrája kiváló, buszmegálló(251, 251A, 251E busz 8 perc gyalogos távolságban elérhető).

Az ingatlan megtekintése előre egyeztetett időpontban lehetséges, akár hétvégén is.
Amennyiben felkeltette az érdeklődését, további kérdéseivel kapcsolatban várom jelentkezését!
(J.D.)
Lukács Péter

Lukács Péter

Hívjon bizalommal

+36-30-694-Mutasd!

További hirdetéseim

Ingatlaniroda
GDN Ingatlanhálózat - Belváros
+36 1 783 2515

Küldjön üzenetet

Visszahívást kérek

Hasonló ingatlanok