Eladó Lakás (téglaépítésű) Budapest XIV. kerület - Herminamezőn stílusos ingatlan!

85 m2Alapterület 2 Szoba
110 000 000 Ft Ár
393722Azonosító
További adatok

Kertre néző Kilátás

Felújított Állapot

Tégla Szerkezet

3 m2 Erkély/terasz

Gáz (cirkó) Fűtés

Összkomfort Komfort

Saját beálló Parkolás

Emelet Magasföldszint

Nincs Lift

Kiváló Tömegközlekedés

Amerikai konyhás

Nincs Kertkapcsolat

1918 Építés éve

Délkeleti Tájolás

Hitelkalkuláció – a részletekért kattintson valamelyik bank logójára!

Újdonság az ingatlanpiacon, Herminamezőn, közel az Amerikai úthoz tágas otthon eladó!
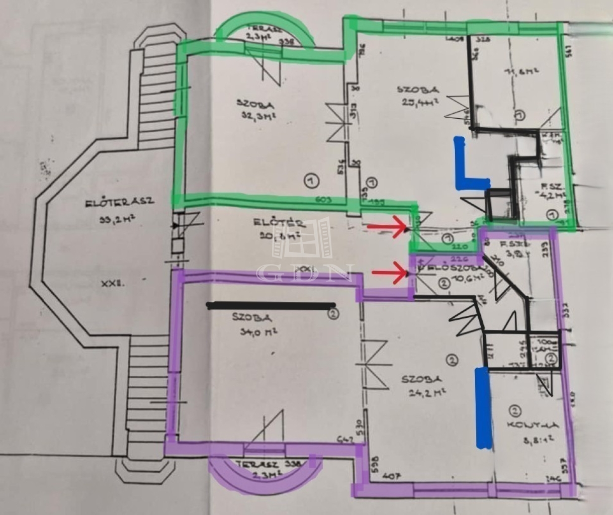
Az 1918- ban épült villa historizáló - eklektikus stílusban épült, az építész annak idején a házat saját magának tervezte, napjainkban folyamatosan karbantartott, állapot megőrzése, illetve javítása érdekében a társasház folyamatosan törődik vele, pályázatokon indul! Eladó ingatlanunk a magasföldszinti szinten helyezkedik el, (alaprajzon a lilával körbejelölt) egyik különlegessége, hogy a házba egy tekintélyes 33 nm-es külső teraszról jutunk be, majd a lakást egy zárt lépcsőházból közelíthetjük meg, ami a szomszéd ingatlannal kizárólagos használatban van.
Az ingatlan a közelmúltban folyamatosan megújult, kényelmes, tágas terek, sok ablak, kertre néző kilátás, romantikus félkör erkély, elegáns megjelenés jellemzi. Fűtése gáz kombi cirkó, az ablakok hőszigetelt thermo, a háló klímával felszerelt, rezsije alacsony a gáz és elektromos számlája:19.500 ft/hó.
Térkiosztása: bejáratnál klasszikus előszoba/közlekedő fogad minket, ahonnan megközelíthető a káddal és mellékhelyiséggel felszerelt fürdőszoba, továbbá egy vendég mellékhelyiség és az amerikai konyhás nappali ahol a konyha résznél egy kamra is helyet kapott. A nappaliból egy négyszárnyas ajtón bejutva közelíthetjük meg a hálószobát, ahol praktikusan - a tárolást segítő -  átjárható gardrób lett kialakítva. A társasház külső építészeti stílusjegyei szépen harmonizálnak a lakás belső kialakításával, a felújítások során megőrizték a belső ajtókat, a fotókon látható bútorok megállapodás alapján megvásárolhatóak. A kertben egy gépjárműnek felszíni bálló lehetősége állhat rendelkezésre, picében további tárolási lehetőség is megoldott. Mindazoknak ajánlom akik Zugló kiemelt negyedében, kiváló lokációnál keresnek egy stílusos, igényes, kényelmes otthont, valamint azoknal is akik több generációval költöznének, hiszen a szomszéd 86 nm-es ingatlan is eladó, amely szintén megtalálható kínálatunkban.
A közvetlen közelben minden megtalálható, bevásárlás, tömegközlekedés, iskola, óvoda, orvosi rendelők 6 perc távolságra elérhetőek.
Időpont egyeztetés alapján, rugalmasan megtekinthető! 
Lukács Péter

Lukács Péter

Hívjon bizalommal

+36-30-694-Mutasd!

További hirdetéseim

Ingatlaniroda
GDN Ingatlanhálózat - Belváros
+36 1 783 2515

Küldjön üzenetet

Visszahívást kérek

Hasonló ingatlanok