Eladó Telek Diósd - Építési engedéllyel!

1 750 m2Alapterület 0 Szoba
89 000 000 Ft Ár
389165Azonosító
További adatok

Kertre néző Kilátás

Tömegközlekedés

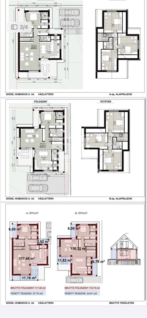
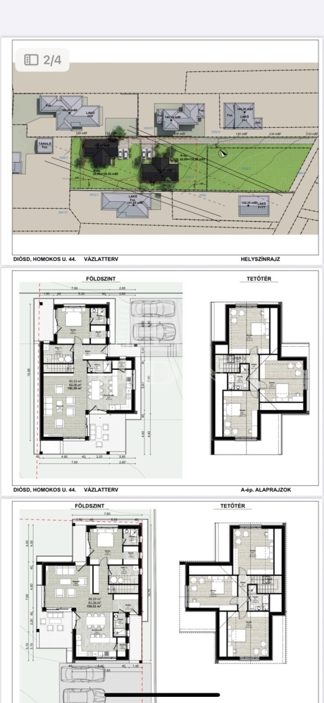
Eladó belterületi telek Diósdon – 2 ház építésére alkalmas!

Eladásra kínálok Diósd belterületén egy nagy méretű, összközműves telket, kiváló ár-érték aránnyal.
Az ingatlan építési engedéllyel és tervekkel rendelkezik 2 családi ház építésére, így azonnal kezdhető az építkezés!

Főbb adatok:

Helyszín: Diósd, belterület

Méret: 1750 m²

Összközműves (víz, villany, csatorna)

Építési engedély és tervdokumentáció rendelkezésre áll

Besorolás: Lke-11 (kertvárosias lakóövezet)
Beépíthetőség: 20%
Megengedett építménymagasság: 5,5 m
Építési mód: szabadon álló

Csendes, rendezett környék, mégis közel mindenhez

Kiváló befektetési lehetőség, akár két generáció részére is

Kitűnő ár-érték arány!
Jöjjön el, nézze meg, nem fog csalódni!
Lukács Péter

Lukács Péter

Hívjon bizalommal

+36-30-694-Mutasd!

További hirdetéseim

Ingatlaniroda
GDN Ingatlanhálózat - Belváros
+36 1 783 2515

Küldjön üzenetet

Visszahívást kérek

Hasonló ingatlanok