Eladó Családi ház Dömsöd - Pest Megye

108 m2Alapterület 3 + 2 Szoba
69 900 000 Ft Ár
387676Azonosító
További adatok

537 m2 Telek

Kertre néző Kilátás

Új Állapot

Tégla Szerkezet

31 m2 Erkély/terasz

Hőszivattyú Fűtés

Összkomfort Komfort

Saját beálló Parkolás

Közepes Tömegközlekedés

Amerikai konyhás

Van Kertkapcsolat

2025 Építés éve

Délnyugati Tájolás

Hitelkalkuláció – a részletekért kattintson valamelyik bank logójára!

DÖMSÖDÖN BUDAPESTTŐL 35 KM TÁVOLSÁGRA
KIVÁLÓ KIVITELEZŐ, VERSENYKÉPES ÁRON, KIVÁLÓ OTTHONT AJÁNL ÖNNEK! CSOK +, HŐSZIVATTYÚ!

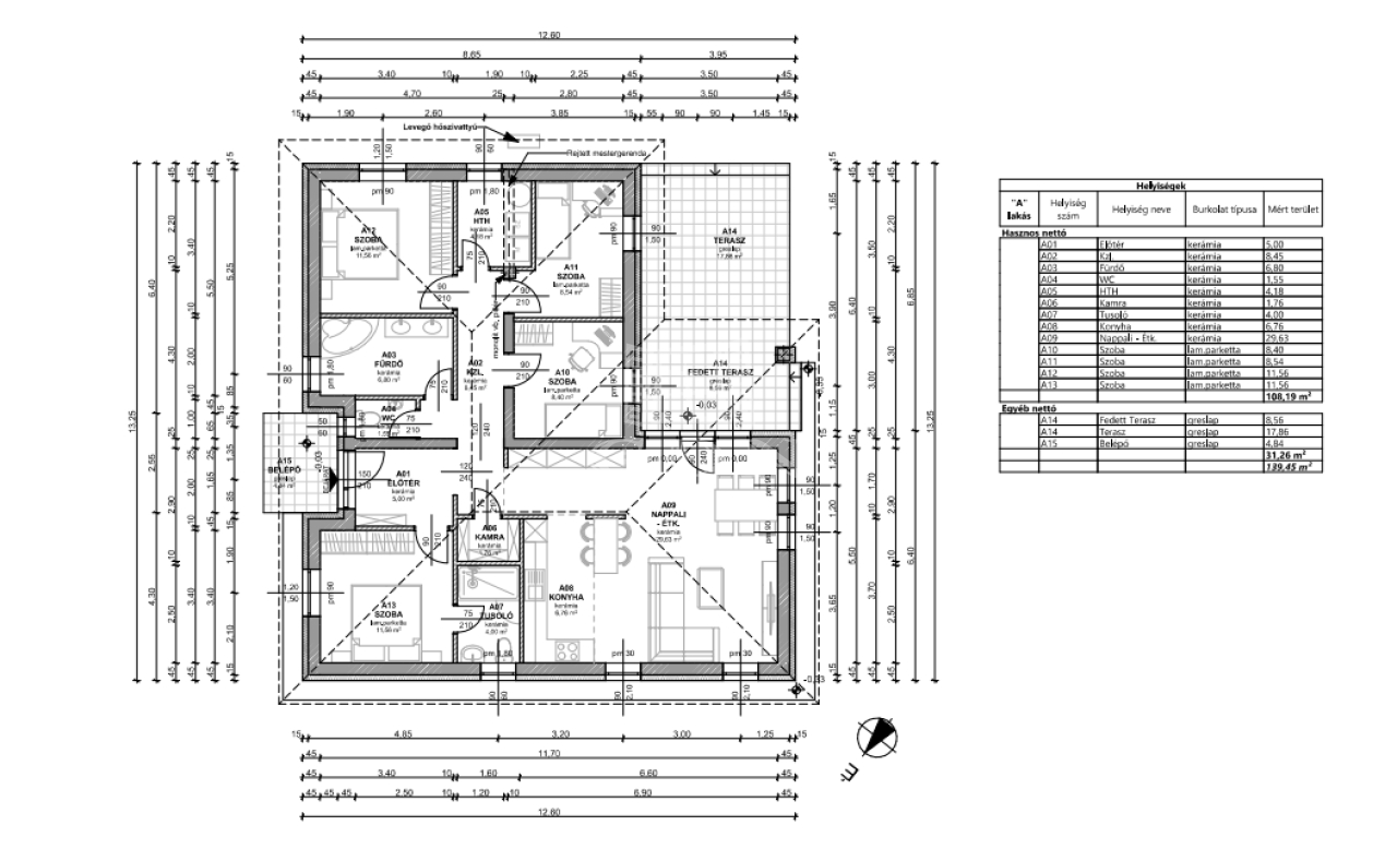
Dömsödön kínálom közös fal nélküli ikerház jellegű, "A" utcafronti 108 m2 lakását 537 m2 saját kerttel.

Az otthon nettó 108,19 m2 lakótérrel, 537 m2 körülkerített teleken épül.
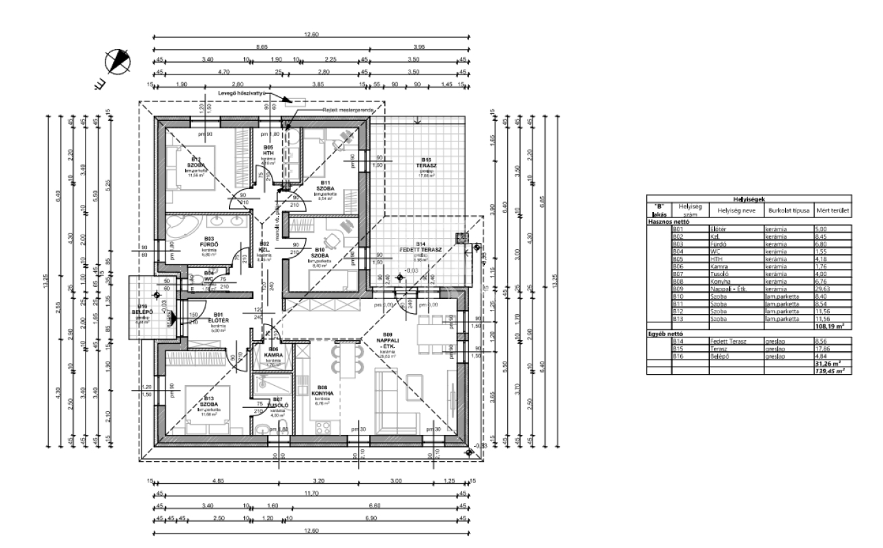
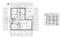
Helyiségei: előszoba 5,00 m2, közlekedő 8,45 m2, fürdőszoba 6,80 m2, wc 1,55 m2, háztartási helyiség 4,18 m2, kamra 1,78 m2, fürdő 4,00 m2, konyha 6,76 m2, nappali/étkező 29,63 m2, szoba 8,40 m2,
szoba 8,54 m2, szoba 11,56 m2, szoba 11,56 m2, terasz 26,42 m2.

A telek ideális 537 négyzetméteres, a szomszédot csak akkor látjuk és halljuk ha mi is szeretnénk, a teraszon zavartalanul pihenhetünk.

Az épület Leier 30 téglából épül, fafödémmel, cserépfedésű tetővel. A homlokzaton 10 cm-es grafitos Dryvit rendszerű hőszigeteléssel, 30 cm vastag szálas szerkezetű födémszigeteléssel az aljzatban pedig 10 cm lépésálló szigetelés kerül beépítésre.

Műszaki tartalom:
-Hideg burkolatok 4.500.- Ft/nm meleg burkolatok 3.500.- Ft/nm
-Fűtés hőszivattyú, hőleadás padlófűtés.
-Homlokzati nyílászárók, fehér színű műanyag nyílászárók három rétegű üvegezéssel.
-Belső falak 2x glettelve fehérre festve.
-A telek körülkerítve, utcafronton épített kerítés 4 m széles kapu és személy bejáró.
-Kaputól a bejáratig járda.
-A telek alap tereprendezéssel kerül átadásra.
-Szaniterek keretösszegig választhatók

Várható átadás 2025 május.

Első "A" lakás 537 m2 kert, 108 m2 lakótér ára:69.900.000 ft
Hátsó "B" lakás 683 m2 kert, 108 m2 lakótér ára: 73.900.000 ft

Várom megtisztelő hívását!

FINANSZÍROZÁS:
Nálunk mindent egy helyen intézhet:
- hivatalos ingatlanközvetítés;
- szakszerű jogi képviselet;
- profi CSOK-PLUSZ, és hitelügyintézés: 16 Bank, több mint 100 konstrukció;

A részletes adatvédelmi tájékoztató folyamatosan elérhető a GDN ingatlan adatvédelem oldalon.
Lukács Péter

Lukács Péter

Hívjon bizalommal

+36-30-694-Mutasd!

További hirdetéseim

Ingatlaniroda
GDN Ingatlanhálózat - Belváros
+36 1 783 2515

Küldjön üzenetet

Visszahívást kérek

Hasonló ingatlanok