Eladó Családi ház Eger - Ház panorámával, nagy telekkel!

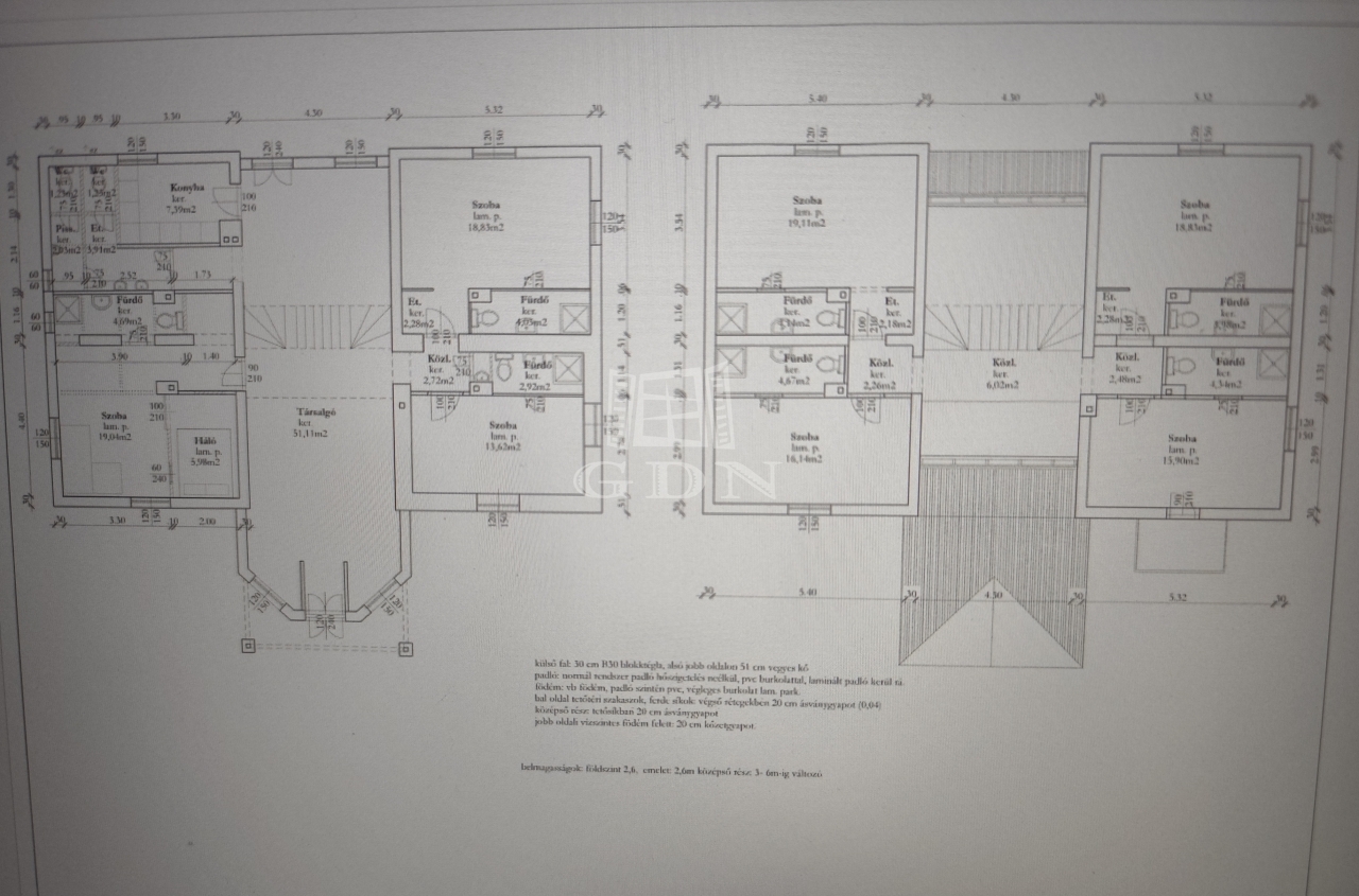
263 m2Alapterület 7 Szoba
199 000 000 Ft Ár
388804Azonosító
További adatok

5649 m2 Telek

Panoráma Kilátás

Jó állapotú Állapot

Tégla Szerkezet

3 m2 Erkély/terasz

Elektromos Fűtés

Összkomfort Komfort

Saját beálló Parkolás

Tömegközlekedés

Nem Amerikai konyhás

Van Kertkapcsolat

1969 Építés éve

Hitelkalkuláció – a részletekért kattintson valamelyik bank logójára!

Borvidéki luxus Eger szívében!

A Szépasszony-völgy szívében, egy csodálatos, 5649 nm-es, belterületi telekkel körülölelve áll ez az igényesen, teljeskörűen felújított, berendezett ház, ahol a tér, a privát szféra és az elegancia adnak egy új életstílust!

Tapasztalja meg a borvidék nyugalmát és a prémium életérzést!

Az impozáns ingatlan tágas fogadótérrel rendelkezik, jelenleg nappali-étkezőként funkcionál ez a hatalmas tér, mely az otthon lelke is egyben. Emellett egy jól felszerelt konyha segíti a mindennapokat.
A házban 7 külön nyíló szoba található, mindegyik saját fürdőszobával, mely ritka, nagy érték.
A főépület mellett egy hangulatos terasszal rendelkező faház is rendelkezésre áll a tulajdonosok számára, mely a pihenés, a kerti sütögetés megfelelő színtere is egyben.

A birtok ideális családnak, többgenerációs együttéléshez, vagy prémium vendégváró életformához.

Főbb előnyök:
-Teljes felújítás 2018-ban (közműcsere, fűtéskorszerűsítés, napelemrendszer kiépítése, burkolatcsere, fürdőszobák felújítása, ablakok cseréje)
-Azonnal birtokba vehető, berendezéssel együtt, melyet az ár tartalmaz
-Elektromos kapu, kamerarendszer, riasztóberendezés
-Új tető, födémszigetelés
-Napelemes rendszer, elektromos fűtés
-Tégla épület
-Gondozott, bekerített telek parkosított udvarral
-Kocsi beálló, hatalmas, füvesített privát tér

Ez a 263 nm-es ingatlan egyszerre elegáns otthon és értékálló befektetés Eger egyik legikonikusabb városrészében!

Ár: 199 000 000 Ft.

Budapesti vagy veszprémi igényes lakás értékegyeztetéssel beszámítható.
Lukács Péter

Lukács Péter

Hívjon bizalommal

+36-30-694-Mutasd!

További hirdetéseim

Ingatlaniroda
GDN Ingatlanhálózat - Belváros
+36 1 783 2515

Küldjön üzenetet

Visszahívást kérek

Hasonló ingatlanok