Eladó Családi ház Érd - ÉRD - DOMBOSVÁROS

125 m2Alapterület 4 + 1 Szoba
129 900 000 Ft Ár
385273Azonosító
További adatok

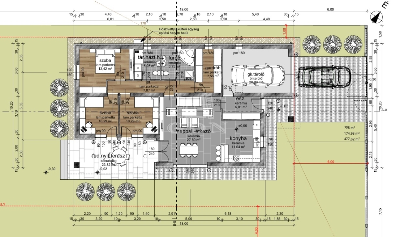
708 m2 Telek

Kertre néző Kilátás

Új Állapot

Tégla Szerkezet

24 m2 Erkély/terasz

Hőszivattyú Fűtés

Dupla komfort Komfort

Saját garázs Parkolás

Tömegközlekedés

Amerikai konyhás

Van Kertkapcsolat

2025 Építés éve

Déli Tájolás

Hitelkalkuláció – a részletekért kattintson valamelyik bank logójára!

-- ÉRD DOMBOSVÁROSBAN, REMEK HELYEN, ÚJÉPITÉSŰ HÁZAK KÖZT, ÖNÁLLÓ CSALÁDI HÁZ, HŐSZÍVATTYÚ FŰTÉSSEL---

! ! ! CSOK PLUSZ, ILLETÉK KEDVEZMÉNY, OTTHON START HITEL IGÉNYBE VEHETŐ! ! !


A HÁZ MÉRETE ÉS ELRENDEZÉSE CSALÁDOKRA LETT SZABVA.
A ház nettó 125 nm, plusz a 24 nm terasz. Mindez 708 nm telken.
Fekvése délkeleti, így egész nap világos lehet az otthona, élvezheti a napfényt.

A KÖRNYÉK csendes, igényes lakóközösség lakja. A szomszédos házak rendezettek, újszerűek, szépen karbantartott kertekkel. Az a környék, ahova jó haza menni.

AZ ÉPÜLET beton sávalapra épül. Főfalak 30 cm porotherm téglából készülnek +15 cm dryvit szigeteléssel. Válaszfalak 10 cm téglából. A külső nyílászárók műanyag szerkezetűek, 3 rétegű üvegezéssel ellátva, rejtett redőnytok előkészítéssel. A födém fa szerkezetű, közetgyapot szigeteléssel. A tető cserép fedéssel készül.

A KERT hatalmas, jut hely gyerek játszótérnek, felnőttek pihenésének.
A kert sík, a telek hátsó része intim.
Az utca csendes mellékutca, átmenő forgalomtól mentes.

KÖZLEKEDÉSE jó. Autóval pár perc az M7 és M0 autópálya.
Pár perc sétával elérhető a tömegközlekedés is, mely Bem térig ill. Bp. Kelenföldi pályaudvarig közlekedik.

A LAKÁS HELYISÉGEI:
- amerikai konyhás nappali (40nm)
- 3 db hálószoba
- 1 db félszoba (gardrób vagy dolgozó)
- 2 db fürdőszoba
- előszoba
- közlekedő
- garázs

MOST KEZDŐDIK AZ ÉPÍTKEZÉS, ÍGY MÉG SOK MINDEN EGYEDI ELKÉPZELÉSEK ALAPJÁN MÓDOSÍTHATÓ.
A kivitelező ebben nagyon rugalmas. Több referencia ingatlant tudunk mutatni. Az előző projekt a befejezéshez közeledik. A fotók közt erről láthatnák néhány fotót.


MŰSZAKI TARTALOM
ENERGETIKAI BESOROLÁSA: A
- hőszivattyús fűtés rendszer
- padlófűtés
- elektromos kapu
- nyílászárók 3 rétegű, 5 légkamrás,
- a garázshoz vezető út és a gyalogos bejáró térkövezet,
- kert 10 cm termőréteggel, füvesítés nélkül kerül átadásra


A HÁZ BELSŐ KIALAKÍTÁSA A VEVŐKKEL EGYEZTETVE, EGYEDI IGÉNYEKALAPJÁN KÉSZÜL EL. ÖN VÁLASZTHATJA KI A BURKOLATOKAT, SZANITEREKET, BELTÉRI AJTÓKAT, STB.



ÁTADÁS: 2026. nyár vége


EZ A HÁZ ALKALMI VÉTEL. NE HAGYJA KI!
HÍVJON ÉS MONDOM A RÉSZLETEKET!




AMENNYIBEN NEM RENDELKEZIK A TELJES VÉTELÁRRAL, segítünk Önnek megtalálni a legjobb megoldást!
BANKFÜGGETLEN hitelcentrumunk minden elérhető bank és hitelintézet ajánlatát versenyezteti az Ön kedvéért, ráadásul díjmentesen. Önnek nincs más dolga, mint elbeszélgetni munkatársunkkal, aki a hallott információk alapján versenyre hívja a bankokat, hogy Ön hosszú távon is a legjobb konstrukciót kaphassa. A legjobb ajánlatokból végül Ön választhatja ki a nyertest. Munkatársaink sokéves szakmai tapasztalattal várják Önt, előre egyeztetve akár a normál munkaidő után is.
Lukács Péter

Lukács Péter

Hívjon bizalommal

+36-30-694-Mutasd!

További hirdetéseim

Ingatlaniroda
GDN Ingatlanhálózat - Belváros
+36 1 783 2515

Küldjön üzenetet

Visszahívást kérek

Hasonló ingatlanok