Eladó Nyaraló Felsőörs - Alsóörsi út

72 m2Alapterület 3 Szoba
49 900 000 Ft Ár
394721Azonosító
További adatok

682 m2 Telek

Panoráma Kilátás

Felújítandó Állapot

Tégla Szerkezet

Egyéb Fűtés

Komfort Komfort

Saját beálló Parkolás

Tömegközlekedés

Nem Amerikai konyhás

Van Kertkapcsolat

2010 Építés éve

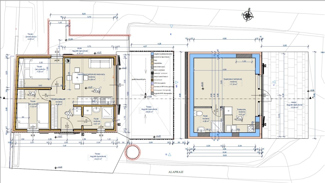
Felsőörsön gyönyörű panorámával, eladásra kínálunk egy zártkerti művelési ág alól kivett területet gazdasági épülettel, a GDN Ingatlanhálózat kínálatából!

- Besorolása: kivett zártkerti művelés alól kivett terület és gazdasági épület Mk-1
- Az övezetre vonatkozó jogszabályi előírások szerint csak 2000m2 feletti telekméret és szőlő vagy gyümölcs művelés esetén jogosult a tulajdonos -kizárólag-gazdasági épületet létesíteni.

- A megvételre kínált telek ezeknek nem felel meg, viszont a korábbi előírások szerint épített gazdasági épületek az ingatlannyilvántartásban szerepelnek, a földhivatali térképen fel vannak tüntetve.

- Mindezek okán az épületeket bővíteni nem lehet, de a teljes körű felújítás megvalósítható. Ezt a lehetséges felújítást tartalmazzák a mellékelt látványképek, amelyek egyeztetve lettek a helyi főépítésszel és a füredi Építésügyi és Örökségvédelmi Főosztállyal, ahol támogatták az elképzeléseket! A tervet az eladó térítésmentesen bocsátja az új tulajdonos rendelkezésére.

- Az épületek leromlott állagúak, de értékük ebben a felújíthatóságban rejlik.

- A közművek közül az elektromos és vezetékes ivóvíz bekötés van kiépítve. Szennyvizet terepszint alatti zárt tárolóba lehet gyűjteni.

- A két épület alkalmas lehet két családnak is akár gazdasági tevékenységre, akár pihenés céljából is!

- A telek lejtős-meredek, így jó kilátást biztosít az előtte lévő füves-erdős völgyre. Ezt a völgyet egy kis forgalmú közút választja el a tárgyi telektől, amelyen keresztül autóval perceken belül megközelíthető Felsőörs központja, Balatonalmádi, Alsóörs és Lovas is.

- Lovason átvezető út csatlakozik a 71-es főúthoz. A kereszteződéstől 500m-re már Csopak település terül el.

- Az ingatlan azoknak ajánlott, akiknek nem létfontosságú a közvetlen Balaton part és értékelik, hogy több közeli település strandja is elérhető.

Ne hagyja ki ezt a remek lehetőséget!

Amennyiben a veszprémi GDN Ingatlaniroda által kínált ingatlan vagy bármely, a kínálatunkban található felkeltette érdeklődését, forduljon hozzám bizalommal!

Ingatlanirodánk díjmentes, banksemleges hitelügyintézéssel, illetve ügyvédi tanácsadással is áll Ügyfeleink rendelkezésére!
Lukács Péter

Lukács Péter

Hívjon bizalommal

+36-30-694-Mutasd!

További hirdetéseim

Ingatlaniroda
GDN Ingatlanhálózat - Belváros
+36 1 783 2515

Küldjön üzenetet

Visszahívást kérek

Hasonló ingatlanok