Eladó Nyaraló Gárdony - Gesztenye sor

243 m2Alapterület 10 Szoba
180 000 000 Ft Ár
391253Azonosító
További adatok

1300 m2 Telek

Kertre néző Kilátás

Közepes Állapot

Tégla Szerkezet

280 m2 Erkély/terasz

Egyéb Fűtés

Saját beálló Parkolás

Tömegközlekedés

Nem Amerikai konyhás

Van Kertkapcsolat

1970 Építés éve

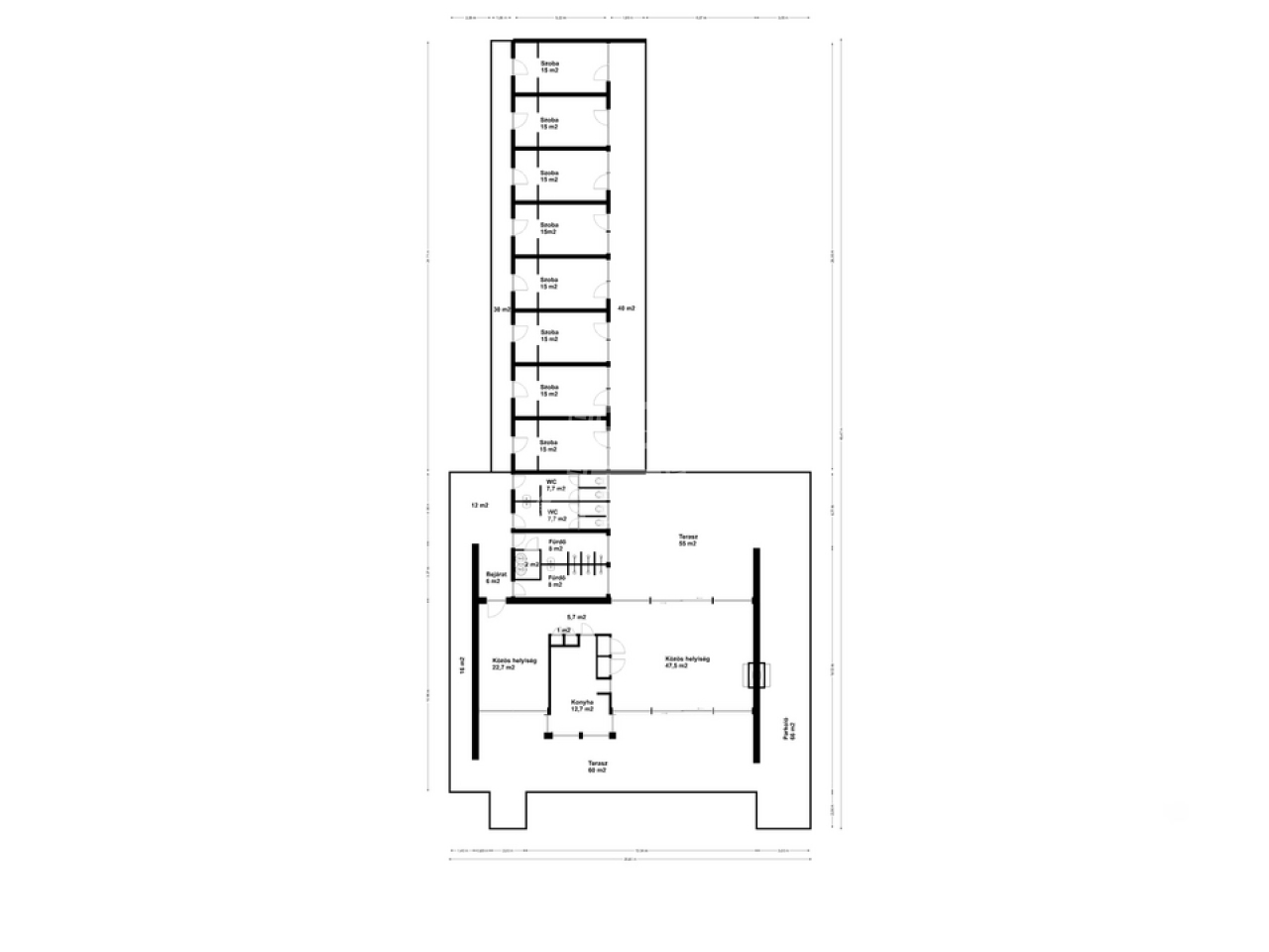
4800. Agárd legszebb, ősfákkal övezett csendes utcájában a Gesztenye soron, 400 m-re a központtól, 1300 m2-es dupla telken, 70-es években épült, masszív vasbeton szerkezetű, statikus által ellenőrzött, a szerkezeti állapotot tekintve kiváló állapotú, 243 m2 nettó alapterületű üdülőépület 8 szobával, felújított vizes blokkokkal és konyhával, új bojlerekkel, új 25*A ipari árammal, nagy közösségi terekkel és teraszokkal, új tetőszigeteléssel eladó.

Az épület kis felújítással jelenleg is alkalmas táborok vagy csoportok szezonális fogadására, a szálláshely 8 szobával üzemeltethető. A szobák előterében megtalálható a víz és vízelvezetés, nagyobb ráfordítással 8 stúdió apartman alakítható ki benne saját wc-vel ,saját fürdővel, saját minikonyhával.

A lokációnak, kialakításnak és stabil épület szerkezetnek köszönhetően egy modern luxus lakóépületté is átépíthető.

Méretek:
Közösségi tér (nappali, étkező, konyha) 90 m2
Vizesblokk ( 2 zuhanyzó, 2 WC, bojler helyiség) 33 m2
Szobák (8 *15 m2) 120 m2

Teraszok:
Nappali utca felől: 60 m2
Nappali kert felől: 55 m2
Bejárat: 20,6 m2
Térkövezett parkoló: 60 m2
Térkövezett bejáró: 16 m2
Szobák mögött: 30,5 m2
Szobák előtt kert felől: 44 m2

Ár: 180 Mft
Lukács Péter

Lukács Péter

Hívjon bizalommal

+36-30-694-Mutasd!

További hirdetéseim

Ingatlaniroda
GDN Ingatlanhálózat - Belváros
+36 1 783 2515

Küldjön üzenetet

Visszahívást kérek

Hasonló ingatlanok