Eladó Nyaraló Gárdony - Téliesített ikernyaraló

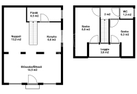
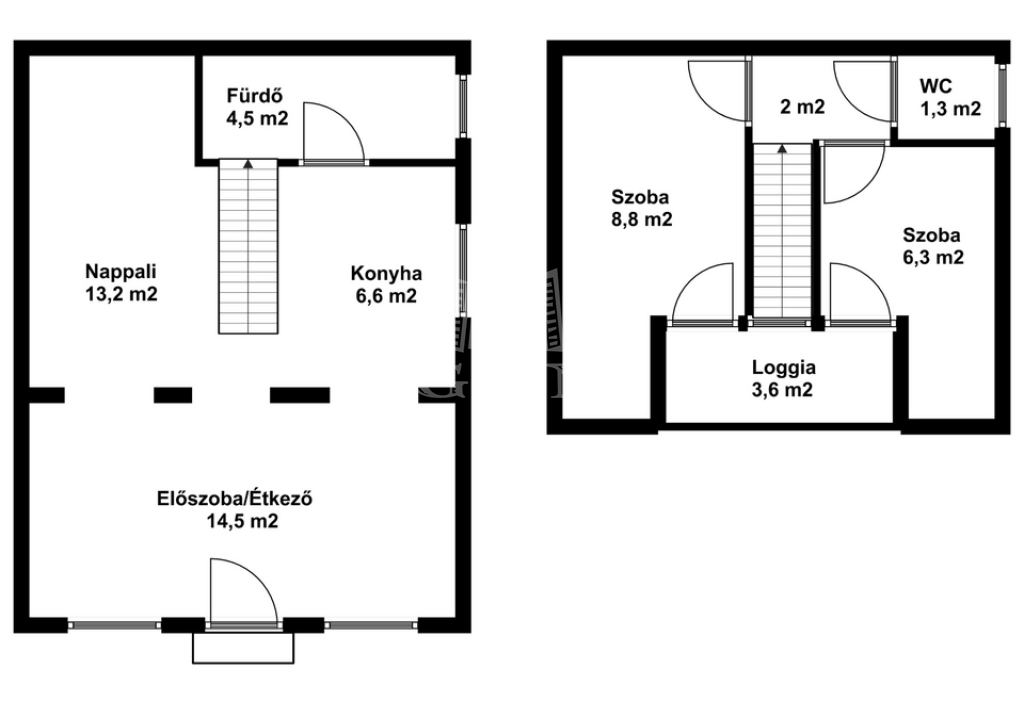
59 m2Alapterület 1 + 2 Szoba
49 900 000 Ft Ár
391490Azonosító
További adatok

185 m2 Telek

Kertre néző Kilátás

Jó állapotú Állapot

Tégla Szerkezet

Gáz (cirkó) Fűtés

Összkomfort Komfort

Saját beálló Parkolás

Tömegközlekedés

Nem Amerikai konyhás

Van Kertkapcsolat

1980 Építés éve

Déli Tájolás

4681. Agárdon, pár perc sétára a tóparttól, csendes utcában található, 80-as években épült, 2018-ban felújított, egész évben lakható, gázcirkó fűtéses, hőszigetelt, műanyag nyílászárókkal rendelkező, tetőtér beépítéses, 59 m2 lakóterületű, nappali + 2 hálószobás ikernyaraló, inverteres klímával, gondozott 185 m2-es kertrésszel eladó. Ár: 49,9 Mft
Lukács Péter

Lukács Péter

Hívjon bizalommal

+36-30-694-Mutasd!

További hirdetéseim

Ingatlaniroda
GDN Ingatlanhálózat - Belváros
+36 1 783 2515

Küldjön üzenetet

Visszahívást kérek

Hasonló ingatlanok