Eladó Családi ház Győr - Gangl András

163 m2Alapterület 5 Szoba
279 000 000 Ft Ár
393926Azonosító
További adatok

600 m2 Telek

Kertre néző Kilátás

Új Állapot

Tégla Szerkezet

Hőszivattyú Fűtés

Dupla komfort Komfort

Saját garázs Parkolás

Közepes Tömegközlekedés

Amerikai konyhás

Van Kertkapcsolat

2025 Építés éve

Nyugati Tájolás

Hitelkalkuláció – a részletekért kattintson valamelyik bank logójára!

Győr-Ménfőcsanak – ahol minden adott egy minőségi otthonhoz!

Ha olyan helyet keres, ahol a nyugodt kertvárosi élet és a városi infrastruktúra tökéletes egyensúlyban van, akkor ezt a lehetőséget érdemes közelebbről is megnéznie.

Győr-Ménfőcsanak egyik legnyugodtabb, forgalomtól mentes új zsákutcájában, 600 m²-es telken kínáljuk ezt a kompromisszummentes, minden igényt kielégítő luxus okosházat.
Egy otthont, ahol a technológia, a design és a maximális kényelem találkozik – és mindez egyetlen applikációból irányítható.

Részletek:

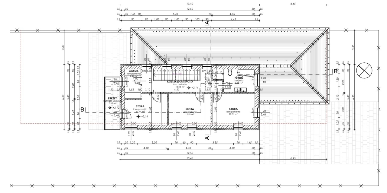
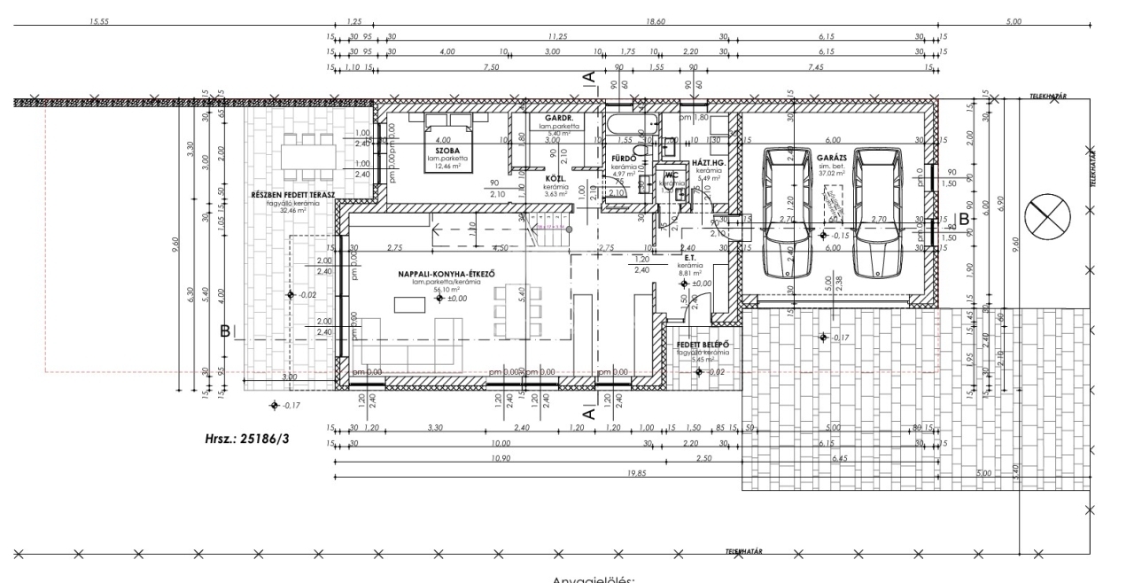
Földszint nettó alapterület: 98,16 m².+32 nm terasz.
Emelet nettó alapterület: 65,24 m²+8 nm terasz.
Lakótér összes nettó alapterület: 163,4 m².
Garázs: 37,02 m².

Főbb extrák és felszereltség:

Rendkívül alacsony fenntartási költség.
Internetes kamerarendszer.
Schneider Merten és MDT villanyszerelvények, KNX alapú intelligens otthonrendszer.
Prémium alumínium okos ajtó.
Távolról irányítható hűtés–fűtés, szintenként vagy helyiségenként.
Mobilról kezelhető kaputelefon, többszintű biztonsági rendszer.
Napjárást követő vagy telefonról vezérelhető redőnyök.
Számtalan belső–külső hangulatvilágítás.
3 körös automata öntözőrendszer.
Midea prémium hőszivattyús hűtés-fűtés, napelem előkészítés.
Extra 15 cm grafitos homlokzati szigetelés, a födémen 30 cm üveggyapot.
Bosch 8-as szériás gépekkel felszerelt prémium konyha.
Gelean Linear ablakok, Smoovio szállodai tolóajtók.
Hörmann szekcionált garázskapu, Fühvald térkövek, alumínium kerti szerszámtároló, Deante Luxury szerelvények.

Ajándék extra az árban:
Az alábbiak közül 1 választható:
Husqvarna robotfűnyíró, kerti szauna, Wellis jakuzzi, BWT vízlágyító rendszer.

Ez a különleges ingatlan nem csupán egy ház, hanem egy sokfunkciós élettér, mely tökéletes választás nagycsaládosoknak, két generáció összeköltözésére, vállalkozás székhelyének, vagy akár befektetésnek is de legfőképp akik csendes környezetben, mégis kiváló infrastruktúrával rendelkező városrészben keresnek igényes, azonnal élhető otthont.

A ház megtekintésével kapcsolatban és további információkért keressen a megadott mobil számon.
Lukács Péter

Lukács Péter

Hívjon bizalommal

+36-30-694-Mutasd!

További hirdetéseim

Ingatlaniroda
GDN Ingatlanhálózat - Belváros
+36 1 783 2515

Küldjön üzenetet

Visszahívást kérek

Hasonló ingatlanok