Eladó Lakás (téglaépítésű) Kaposvár - Új építésű lakás a belvárosban!

80 m2Alapterület 3 Szoba
79 990 000 Ft Ár
387805Azonosító
További adatok

Kertre néző Kilátás

Új Állapot

Tégla Szerkezet

21 m2 Erkély/terasz

Gáz (cirkó) Fűtés

Összkomfort Komfort

Garázs/beálló vásárolható Parkolás

Emelet 1

Nincs Lift

Kiváló Tömegközlekedés

Amerikai konyhás

Nincs Kertkapcsolat

2027 Építés éve

Hitelkalkuláció – a részletekért kattintson valamelyik bank logójára!

Befektetők, otthonkeresők figyelem, hiányt pótló építkezés Kaposvár belvárosában!

Kaposváron megújuló környezetben, a Fő utca 91. szám alatt megvalósuló 15 lakásos társasház a mai kor igényeire és elvárásaira szabva a legkorszerűbb energetikával, kizárólag minőségi anyagok felhasználásával épül -megújuló energiaforrást is alkalmazva- egy hangulatos, fákkal borított telekterületen, kiváló elhelyezkedés mellett.

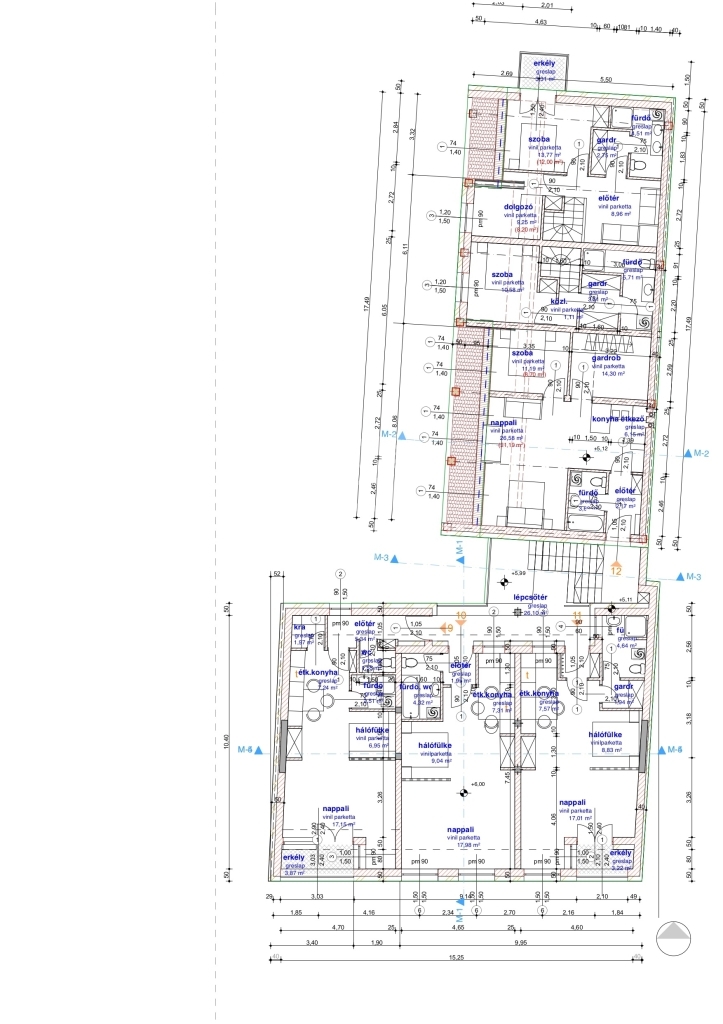
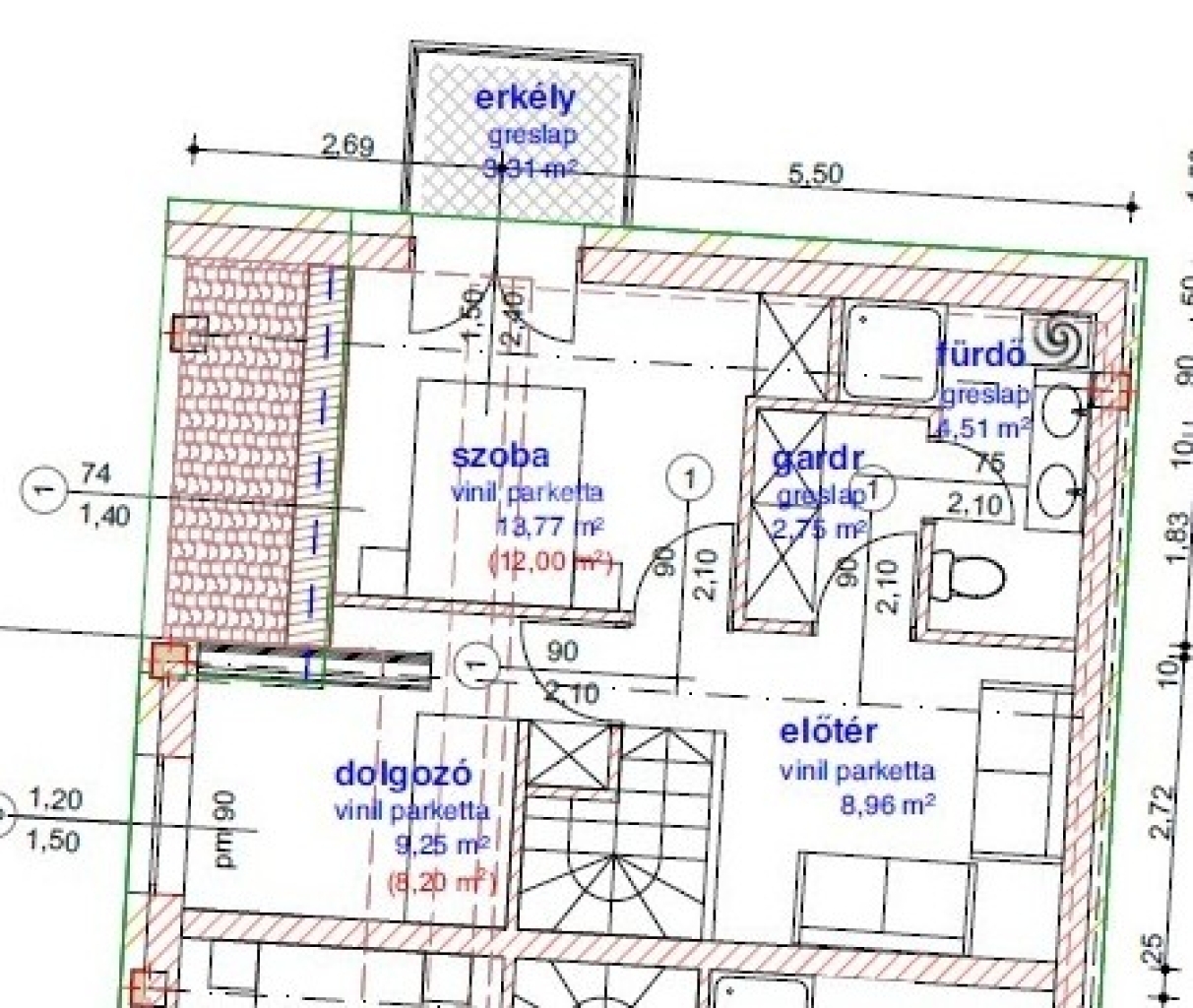
A projekt 5.-ös számú, első emeleti lakása 79,86 m2 lakóterületű, belső kétszintes kialakítású.
A jól átgondolt terveknek köszönhetően a lakás elosztása kiváló, az életterek kialakításánál a funkcionalitás dominált, kényelmes teret biztosítva leendő lakóinak.

A lakásban az alsó szinten egy tágas közösségi tér (nappali-konyha-étkező), előtér és mellékhelyiség kerül kialakításra, míg a felső szinten két szoba, gardróbszoba és fürdőszoba kap teret. Igény esetén a lakásban egy további szoba is kialakítható. A lakás nappalijából egy méretes 17 m2-es erkély, míg a felső szinten az egyik szobából 3 m2-es erkély nyílik a zölddel borított udvarra.

A lakások -a burkolatok és beltéri nyílászárók szabad választása mellett- kulcsrakész állapotban kerülnek átadásra.

A társasház zárt, elektromos kapubeállóval ellátott udvarán kialakított felszíni beállóhely 2.500.000. Ft-ért, míg "garázs" és hozzá tartozó dupla méretű tároló helyiség 8.000.000.-Ft-ért vásárolható a lakásokhoz.

A társasház méretes zöld udvarán lehetőség nyílik egy fantasztikus közösségi tér kialakítására is, úgy mint játszótér, kondipark, sütögető, pihenő liget.

Az ingatlan beruházója és kivitelezője kimondottan megbízható, több évtizede az építőipari piacon tevékenykedő, kiváló referenciákkal bíró cég (nem pedig egy adott projekt kedvéért létrehozott gazdasági társaság), aki így az esetleges garanciális javításokért is jótáll.

A lakások várható átadása kulcsrakész állapotban 2027. április 30.

Az ingatlantól pár perces sétával érhetőek el boltok, közoktatási és köznevelési intézmények, a magával ragadó Vaszary (Okos) park, a kórház stb...

Egyedülálló lehetőség Kaposvár belvárosában, remek elhelyezkedéssel, kiváló infrastruktúrával, mely befektetésként, és otthonteremtési célzattal is kitűnő választás!

További információért kérem forduljon hozzám bizalommal!
Lukács Péter

Lukács Péter

Hívjon bizalommal

+36-30-694-Mutasd!

További hirdetéseim

Ingatlaniroda
GDN Ingatlanhálózat - Belváros
+36 1 783 2515

Küldjön üzenetet

Visszahívást kérek

Hasonló ingatlanok