Eladó Lakás (téglaépítésű) Kaposvár - Hiánypótló új építés a belvárosban

36 m2Alapterület 1 Szoba
32 487 000 Ft Ár
387860Azonosító
További adatok

Utcai Kilátás

Új Állapot

Tégla Szerkezet

Gáz (cirkó) Fűtés

Összkomfort Komfort

Garázs/beálló vásárolható Parkolás

Emelet 3

Legfelső emelet

Nincs Lift

Kiváló Tömegközlekedés

Amerikai konyhás

Nincs Kertkapcsolat

Tetőtéri ingatlan

2027 Építés éve

Hitelkalkuláció – a részletekért kattintson valamelyik bank logójára!

Befektetők, otthonkeresők figyelem, hiányt pótló építkezés Kaposvár belvárosában!

Kaposváron megújuló környezetben, a Fő utca 91. szám alatt megvalósuló 15 lakásos társasház a mai kor igényeire és elvárásaira szabva a legkorszerűbb energetikával, kizárólag minőségi anyagok felhasználásával épül -megújuló energiaforrást is alkalmazva- egy hangulatos, fákkal borított telekterületen, kiváló elhelyezkedés mellett.

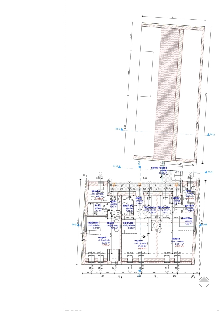
A projekt 14-es számú, harmadik emeleti lakása 36 m2 alapterületű. A jól átgondolt terveknek köszönhetően a lakás elosztása kiváló, az életterek kialakításánál a funkcionalitás dominált, kényelmes életteret biztosítva leendő lakóinak.

A lakás a tervek alapján amerikai konyhás nappali, hálófülke, fürdőszoba, és előtér térfelosztású.

A lakások a burkolatok és beltéri nyílászárók szabad választása mellett kulcsrakész állapotban kerülnek átadásra.

A társasház zárt, elektromos kapubeállóval ellátott udvarán kialakított felszíni beállóhely 2.500.000. Ft-ért, míg "garázs" és hozzá tartozó dupla méretű tároló helyiség 8.000.000.-Ft-ért vásárolható a lakásokhoz.

A társasház méretes zöld udvarán lehetőség nyílik egy fantasztikus közösségi tér kialakítására is, úgy mint játszótér, kondipark, sütögető, pihenő liget.

Az ingatlan beruházója és kivitelezője kimondottan megbízható, több évtizede az építőipari piacon tevékenykedő, kiváló referenciákkal bíró cég (nem pedig egy adott projekt kedvéért létrehozott gazdasági társaság), aki így az esetleges garanciális javításokért is jótáll.

A lakások várható átadása kulcsrakész állapotban 2027. április 30.

Az ingatlantól pár perces sétával érhetőek el boltok, közoktatási és köznevelési intézmények, a magával ragadó Vaszary (Okos) park, a kórház stb...

Egyedülálló lehetőség Kaposvár belvárosában, remek elhelyezkedéssel, kiváló infrastruktúrával, mely befektetésként, és otthonteremtési célzattal is kitűnő választás!

További információért kérem forduljon hozzám bizalommal!
Lukács Péter

Lukács Péter

Hívjon bizalommal

+36-30-694-Mutasd!

További hirdetéseim

Ingatlaniroda
GDN Ingatlanhálózat - Belváros
+36 1 783 2515

Küldjön üzenetet

Visszahívást kérek

Hasonló ingatlanok