Eladó Lakás (téglaépítésű) Keszthely - Keszthely, Modern lakás

61 m2Alapterület 2 Szoba
98 000 000 Ft Ár
393238Azonosító
További adatok

Utcai Kilátás

Jó állapotú Állapot

Tégla Szerkezet

20 m2 Erkély/terasz

Gáz (cirkó) Fűtés

Összkomfort Komfort

Saját beálló Parkolás

Emelet 1

Legfelső emelet

Nincs Lift

Kiváló Tömegközlekedés

Amerikai konyhás

Nincs Kertkapcsolat

2001 Építés éve

Délkeleti Tájolás

Hitelkalkuláció – a részletekért kattintson valamelyik bank logójára!

Keszthely belvárosának közvetlen közelében kínálunk megvételre egy kifinomult stílusú, prémium minőséget képviselő lakást, ahol az elegancia és a funkcionalitás harmonikus egységet alkot.

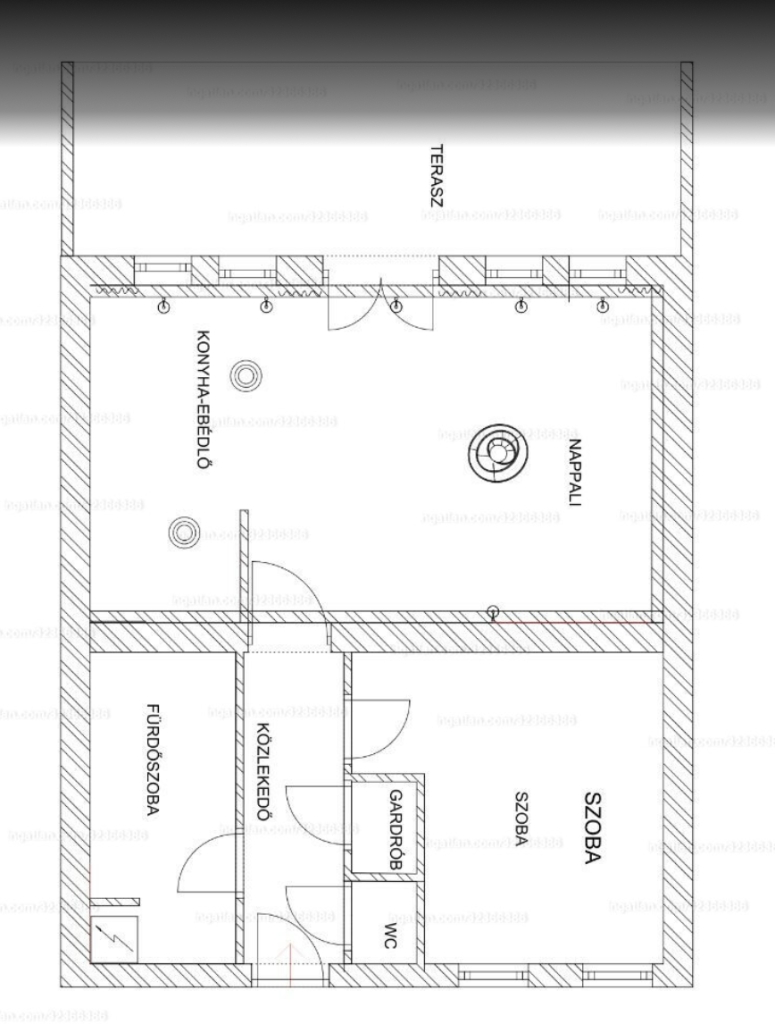
A 61 m²-es, átgondolt kialakítású élettérhez egy 20 m²-es, fedett terasz kapcsolódik, amely igazi különlegesség a városi környezetben. Ideális helyszín reggeli kávézáshoz, esti kikapcsolódáshoz vagy baráti összejövetelekhez.

Az ingatlan belső elrendezése tudatos tervezés eredménye. Az előtérből külön WC, egy kis gardrób nyílik, valamint egy igényesen kialakított fürdőszoba. A hálószobában egyedi, beépített gardrób gondoskodik a praktikus és esztétikus tárolásról. A lakás központi tere a tágas, nagy belmagasságú amerikai konyhás nappali–étkező, amely világos, jól bútorozható.

A modern műszaki tartalom a komfortérzetet szolgálja: gázkazán biztosítja a fűtést és a melegvíz-ellátást, míg a hűtő-fűtő klíma egész évben kellemes hőmérsékletről gondoskodik. A magas minőségű, teljesen gépesített, beépített konyhabútor a vételár részét képezi.

Az ingatlanhoz saját parkolóhely és közös tároló is tartozik, tovább növelve az értékét és a mindennapi kényelmet.

További lehetőség, hogy a lakás mellett található, ennek tükrözött elrendezésű párja szintén megvásárolható. A két ingatlan egybenyitásával egy impozáns, 121 m²-es otthon alakítható ki, összesen 40 m²-es terasszal. Ebben az esetben a vételár egyéni megállapodás tárgyát képezi.

Ez az ingatlan ideális választás mindazok számára, akik a minőséget, az elegáns megjelenést és a kiváló lokációt alapvető elvárásként kezelik.

Amennyiben egy különleges otthont keres Keszthely egyik legkedveltebb környezetében, várom megtisztelő megkeresését személyes bemutatás egyeztetése céljából.
Lukács Péter

Lukács Péter

Hívjon bizalommal

+36-30-694-Mutasd!

További hirdetéseim

Ingatlaniroda
GDN Ingatlanhálózat - Belváros
+36 1 783 2515

Küldjön üzenetet

Visszahívást kérek

Hasonló ingatlanok