Eladó Lakás (téglaépítésű) Kiskunlacháza - Dunapart

77 m2Alapterület 2 Szoba
72 040 000 Ft Ár
391715Azonosító
További adatok

5820 m2 Telek

Panoráma Kilátás

Új Állapot

Tégla Szerkezet

24 m2 Erkély/terasz

Megújuló energia Fűtés

Összkomfort Komfort

Saját beálló Parkolás

Emelet Földszint

Van Lift

Gyenge Tömegközlekedés

Amerikai konyhás

Van Kertkapcsolat

2025 Építés éve

Hitelkalkuláció – a részletekért kattintson valamelyik bank logójára!

Csodálatos panoráma!

Kiskunlacháza Duna-partján épülő 19 lakásos társasházban kínálunk megvételre 7 db földszinti, nagy (19 nm- 36 nm) teraszos, örökpanorámás lakást.
Az ingatlanban 19 db lakás épül.

A 100.000.000 Ft-ot meg nem haladó lakások 3%-os Otthon Start hitellel is megvásárolható!

-Minden lakáshoz 1 db autóbeálló tartozik,
-Elektromos autótöltési lehetőség,
-A házban lift működik,
-Közösségi stég, parkosított udvar, játszótér, közös grillezőhely épül,
-Saját mérőórák hideg víz, melegvíz, elektromos áramra,
-Hőmennyiség mérő hűtés-fűtésre,

Műszaki adatok.

-Az épület 1974-ben épült, vasbeton alapú, tégla főfallal, ennek
továbbépítése 2024- ben indult, a 2. emelet teljesen új,
-16 cm külső szigetelés,
-Geotermikus, talajszondás fűtés-hűtés (mennyezet és aljzat),
-Hővisszanyerős légtechnika- alacsony rezsi,
-Vasbeton alap, kisméretű tégla tartófalak,
-Beltéri falak: Silka, lakáson belül Ytong,
-3 rétegű szinezett műanyag nyílászárók elektromos redőnnyel,

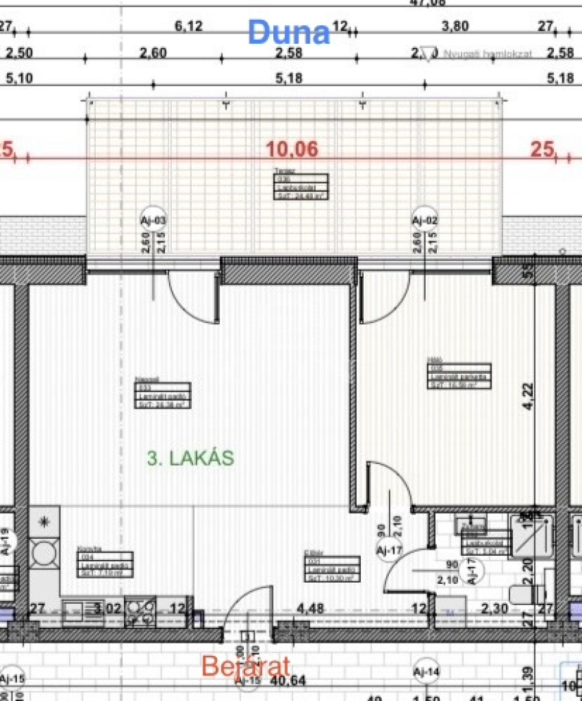
FÖLDSZINT

1.LAKÁS: 64,56 m² lakótér + 24,48 m² terasz — 71.016.000 Ft

2.LAKÁS: 65,08 m² lakótér + 24,48 m² terasz — 71.590.000 Ft

3.LAKÁS: 65,49 m² lakótér + 24,48 m² terasz — 72.040.000 Ft

4.LAKÁS: 94,73 m² lakótér + 36,08 m² terasz — 104.203.000 Ft

5.LAKÁS: 48,09 m² lakótér + 19,28 m² terasz — 49.540.000 Ft

6.LAKÁS: 51,01 m² lakótér + 19,28 m² terasz — 53.600.000 Ft

7.LAKÁS: 51,17 m² lakótér + 19,28 m² terasz — 53.600.000 Ft


Az ingatlan további lakásai további hirdetéseinkben megtalálhatóak.

A lakások átadása: 2026. I. negyedév végéig a használatbavételi engedélyt megkéri a kivitelező.

Amivel segítjük az Ön ingatlanvásárlását:
- ingyenes hitelügyintézés,
- jogi háttér,
- földhivatali ügyintézés,
- energetikai tanúsítvány,
- a vevő számára az ingatlanközvetítés ingyenes.

Irodánk 30 éves szakmai tapasztalattal áll ügyfelei rendelkezésére!

Várom szíves megkeresését!
Lukács Péter

Lukács Péter

Hívjon bizalommal

+36-30-694-Mutasd!

További hirdetéseim

Ingatlaniroda
GDN Ingatlanhálózat - Belváros
+36 1 783 2515

Küldjön üzenetet

Visszahívást kérek

Hasonló ingatlanok