Eladó Családi ház Kistelek - PANEL ÁRÁBÓL CSODÁS OTTHON

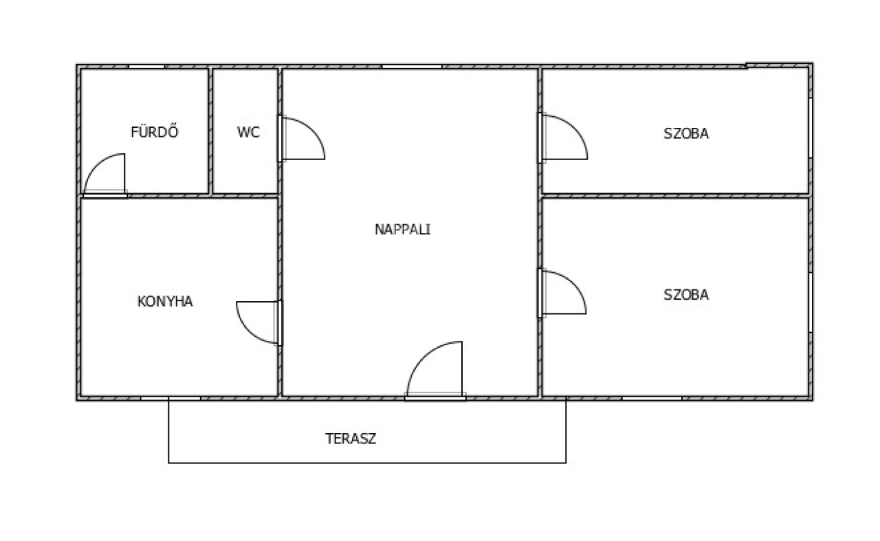
75 m2Alapterület 3 Szoba
42 500 000 Ft Ár
391247Azonosító
További adatok

660 m2 Telek

Utcai Kilátás

Közepes Állapot

Tégla Szerkezet

18 m2 Erkély/terasz

Gáz (konvektor) Fűtés

Összkomfort Komfort

Saját beálló Parkolás

Tömegközlekedés

Nem Amerikai konyhás

Van Kertkapcsolat

1965 Építés éve

Délnyugati Tájolás

Hitelkalkuláció – a részletekért kattintson valamelyik bank logójára!

Nem kompromisszum. Lehetőség.

Mi lenne, ha egy szegedi panellakás árából
nem egy előre „rád erőltetett” lakást vennél,
hanem egy saját igényeid szerint alakítható, saját otthonod?

Kisteleken, csendes utcában eladó egy 75 m²-es, tégla szerkezetű családi ház, 660 m²-es telken, amely lakható állapotú, ugyanakkor tökéletes alap egy modern, amerikai konyhás nappalis + 3 hálószobás otthon kialakításához.

Az ingatlan lakható állapotú, ugyanakkor felújítást igényel, ami lehetőséget ad arra, hogy az új tulajdonos saját ízlésére és igényeire szabja.
Az ár ennek megfelelően került kialakításra, így nem egy kész, kompromisszumos megoldást vásárol, hanem egy jó adottságú házat, amelyből pontosan olyan otthont alakíthat ki, amilyet elképzelt.

NÉZZE MEG AJÁNLATUNKAT SZEMÉLYESEN!!!
Lukács Péter

Lukács Péter

Hívjon bizalommal

+36-30-694-Mutasd!

További hirdetéseim

Ingatlaniroda
GDN Ingatlanhálózat - Belváros
+36 1 783 2515

Küldjön üzenetet

Visszahívást kérek

Hasonló ingatlanok