Eladó Ikerház Mogyoród - Mogyoród frekventált részén

110 m2Alapterület 5 Szoba
109 900 000 Ft Ár
386694Azonosító
További adatok

300 m2 Telek

Utcai Kilátás

Új Állapot

Tégla Szerkezet

30 m2 Erkély/terasz

Hőszivattyú Fűtés

Összkomfort Komfort

Saját beálló Parkolás

Kiváló Tömegközlekedés

Nem Amerikai konyhás

Van Kertkapcsolat

2024 Építés éve

Hitelkalkuláció – a részletekért kattintson valamelyik bank logójára!

Újépítésű ikerház ELADÓ !



Mogyoród kertvárosi, mégis kiváló közlekedési lehetőségekkel rendelkező részén.
Az ingatlantól pár perc alatt elérhető az M3 autópálya, azonban attól egy domb választja el, így a zajterhelés a területen nem jelentkezik. A Mogyoród HÉV állomás 600 méterre található, így tömegközlekedéssel a belváros akár 33 perc alatt elérhető.

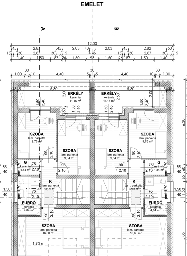
Két szintes ikerházi lakás kerül kialakításra, tágas nappalival, konyhával, fürdöszobával, 4 hálószobával és gépészeti helyiséggel. Ehhez tartozik egy 13.95nm-es terasz és egy 11.16nm-es erkély.

A fűtés és melegvízellátás korszerű hőszivattyús rendszerrel kerül kiépítésre.

Opcionális klímaberendezés és napelemrendszer választható. A házban kialakításra kerül az ezekhez szükséges védőcsövezés és előkészítés.

Szaniterek és burkolatok külső beszállító kínálatából választhatóak.

Többszáz referenciával rendelkező beruházó. A Vevők egyéni igényeinek kiszolgálására kialakított üzleti struktúra.

CSOK + Igénybe vehető!

Amennyiben felkeltette az érdeklődését keressen Bizalommal a hét bármely napján!
Lukács Péter

Lukács Péter

Hívjon bizalommal

+36-30-694-Mutasd!

További hirdetéseim

Ingatlaniroda
GDN Ingatlanhálózat - Belváros
+36 1 783 2515

Küldjön üzenetet

Visszahívást kérek

Hasonló ingatlanok