Eladó Lakás (panel) Budapest XIV. kerület - Ond vezér útja

49 m2Alapterület 1 + 1 Szoba
62 900 000 Ft Ár
393367Azonosító
További adatok

Udvari Kilátás

Jó állapotú Állapot

Panel Szerkezet

3 m2 Erkély/terasz

Távfűtés egyedi mérővel Fűtés

Összkomfort Komfort

Utcán, közterületen Parkolás

Emelet Magasföldszint

Van Lift

Tömegközlekedés

Nem Amerikai konyhás

Nincs Kertkapcsolat

1977 Építés éve

Közös költség 12 800 Ft

Délnyugati Tájolás

Hitelkalkuláció – a részletekért kattintson valamelyik bank logójára!

ÁRCSÖKKENÉS! KIVÁLÓ ÁR_ÉRTÉK ARÁNY!

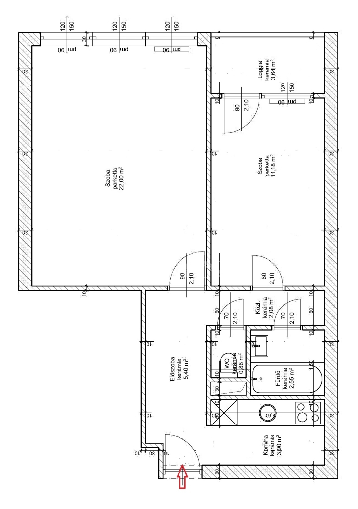
Világos, erkélyes 49nm -es lakás eladó a XIV. kerület egyik legkedveltebb részén – a Füredi lakótelepen!

Nyugati fekvésének köszönhetően világos, a 3 m²-es loggia pedig kellemes plusz tér egy kávéhoz vagy esti pihenéshez.

Ha egy jó elosztású, akár azonnal kiadható lakást keresel zöld környezetben, kiváló közlekedéssel, ezt érdemes megnézni.
________________________________________

Lakás jellemzői
• 49 m² alapterület
• 2 külön és egyben nyíló szoba
• 3 m²-es loggia
• Nyugati fekvés – világos lakás
• 2,7 m belmagasság
• Jó állapot
• Szabályozható távfűtés → kedvező rezsi
• Per- és tehermentes

A lakás praktikus elosztású:
egy L alakú előtérből minden helyiség külön nyílik.
Konyha, külön WC, fürdőszoba, valamint két szoba, melyek közül a kisebbhez loggia kapcsolódik.
________________________________________
Társasház
• 10 emeletes, panelprogramos épület
• Lift
• Rendezett lépcsőház
• Szintenként közös tároló
• Számkódos beléptetés
________________________________________
Környék
Zöld környezettel, parkokkal és játszóterekkel.

A közelben:
Spar, ALDI
Sugár, Árkád
IKEA
☕ éttermek, pékségek
iskola, óvoda, posta, gyógyszertár
________________________________________
Közlekedés
Nagyon jó:
80-as troli
M2 metró pár perc
több buszjárat
Rákosfalva HÉV könnyen elérhető
________________________________________
Parkolás: a ház körül ingyenesen.
________________________________________
Ideális választás:
• első lakásnak
• egyedülállóknak
• pároknak
• vagy akár kiadásra is

Ha kiadásban gondolkodik az ingatlan jelenleg is bérbe van adva, így akár azonnali hozamot biztosít!

Kérdés, illetve megtekintés esetén forduljon hozzám bizalommal!
Lukács Péter

Lukács Péter

Hívjon bizalommal

+36-30-694-Mutasd!

További hirdetéseim

Ingatlaniroda
GDN Ingatlanhálózat - Belváros
+36 1 783 2515

Küldjön üzenetet

Visszahívást kérek

Hasonló ingatlanok