Eladó Ikerház Nagykovácsi - Kossuth utca

170 m2Alapterület 5 + 1 Szoba
255 000 000 Ft Ár
371202Azonosító
További adatok

2051 m2 Telek

Kertre néző Kilátás

Új Állapot

Tégla Szerkezet

25 m2 Erkély/terasz

Hőszivattyú Fűtés

Dupla komfort Komfort

Saját garázs Parkolás

Kiváló Tömegközlekedés

Amerikai konyhás

Van Kertkapcsolat

2024 Építés éve

Hitelkalkuláció – a részletekért kattintson valamelyik bank logójára!

Nagykovácsiban 170nm-es, 5+1 szobás, garázsos, duplakomfortos, energiatudatos ikerház eladó

Nagykovácsi a budai agglomeráció kedvelt, hegyekkel körülvett hangulatos zsákfaluja.

Az eladó ikerház 2024 III.-IV. negyedévében kerül átadásra.

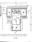
Elrendezés :
Földszinten Nappali-konyha-étkező (44,7 nm), szoba (14,8 nm), fürdőszoba, gardrób, előszoba + terasz (25 nm);
Emelet: 4 szoba (br. 18,9, 14,8,16,7 és 9,4 nm) 2 fürdőszoba (5,0 és 3,7 nm) + lépcsőház.

A 2051 nm-es telken két ikerház kerül kialakításra, az egyes lakásokhoz ~ 400 nm-es saját kertrész tartozik.

Fűtés és meleg víz: hőszivattyú padló és mennyezet felületi fűtéssel.
Külső nyílászárók pácoét fa szerkezetűek, ablakok háromrétegűek hőszigetelt üvegezéssel, külső zsaluziáva. Belső ajtók: pácolt fa szerkezetűek.

Hőszigetelés: padlóban 15 cm; tetőfödémben 30 cm; garázsban 10 cm.

Hangszigetelés padlóban, födémben 4 cm.

Pergola a D-i fronton.
Esővíztárolás: 5 m3.

Fiztési ütemezés a készenléti állapotnak megfelelően.


Amennyiben az ingatlanvásárlásához banki finanszírozást is igénybe kíván venni, úgy BANKFÜGGETLEN hitelügyintéző kollégáink szívesen nyújtanak felvilágosítást az aktuális hitelekkel, egyénre szabott kedvezményekkel, CSOK-kal kapcsolatban.
Lukács Péter

Lukács Péter

Hívjon bizalommal

+36-30-694-Mutasd!

További hirdetéseim

Ingatlaniroda
GDN Ingatlanhálózat - Belváros
+36 1 783 2515

Küldjön üzenetet

Visszahívást kérek

Hasonló ingatlanok