Eladó Családi ház Kóka - Erdősor utca

93 m2Alapterület 4 Szoba
69 900 000 Ft Ár
392822Azonosító
További adatok

680 m2 Telek

Kertre néző Kilátás

Új Állapot

Tégla Szerkezet

15 m2 Erkély/terasz

Hőszivattyú Fűtés

Összkomfort Komfort

Saját beálló Parkolás

Tömegközlekedés

Amerikai konyhás

Van Kertkapcsolat

2026 Építés éve

Délnyugati Tájolás

Hitelkalkuláció – a részletekért kattintson valamelyik bank logójára!

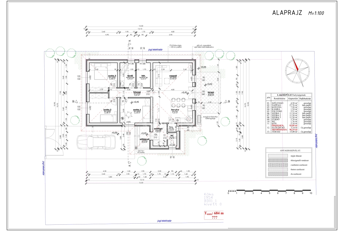
Kókán az Erdősor utca 16- szám alatt , 680 m2-es telken nettó 93,05 m2-es három szoba + amerikai konyhás nappalival rendelkező, energiahatékony önálló családi ház eladó, számos referenciával rendelkező kivitelezőtől!

A tartószerkezeti falak Porotherm P30N+F téglából, betonkoszorúval, fa födémes tetőszerkezettel készülnek. A lábazat 10 cm polisztirol lépésálló, a homlokzatok 15cm-es EPS, a vízszintes födém 30 cm ásványgyapot szigeteléssel lesz ellátva.

Három rétegű üvegekkel szerelt, hat légkamrás műanyag thermo nyílászárók kerülnek beépítésre.

A minimális energiaigényt a megfelelő szigetelésen kívül a megújuló energiát használó gépészet is biztosítja. A fűtést levegő-víz hőszivattyús rendszer fogja végezni.


Burkolatok , szaniterek, belső ajtók, csaptelepek választhatóak a következő értékhatárig:

-Hidegburkolat: 3000 Ft.-/m2
-Melegburkolat: 3000 Ft.-/m2
-Beltéri ajtók: 30.000.Ft.-/db
-Fürdőkád: 40.000.- Ft.-
-Csaptelepek: 15000.- Ft.-/db

Magasabb árú választás is lehetséges, a különbség finanszírozásával.

A kivitelező korábban Sülysápon épített, már birtokbaadott ingatlanjait komoly érdeklődés esetén szívesen megmutatjuk referenciaként.


Csok plusz és Otthon Start igényelhető!

Tervezett átadás 2026 harmadik negyedév vége


INGYENES hitel tanácsadás, CSOK Plusz ügyintézés!
BANKFÜGGETLEN hitelcentrumunk az összes elérhető bank és hitelintézet ajánlatát versenyezteti az Ön kedvéért, ráadásul DÍJMENTESEN.

- Egyedi, bankfiókban nem elérhető kamat- és díjkedvezmények
- Hitelképesség vizsgálat
- Idő, energia és pénz megtakarítás
- Teljes hivatali ügyintézés

Amennyiben hirdetésem felkeltette az érdeklődését vagy egyéb információra van szüksége hívjon bizalommal!
Lukács Péter

Lukács Péter

Hívjon bizalommal

+36-30-694-Mutasd!

További hirdetéseim

Ingatlaniroda
GDN Ingatlanhálózat - Belváros
+36 1 783 2515

Küldjön üzenetet

Visszahívást kérek

Hasonló ingatlanok