Eladó Lakás (téglaépítésű) Pécs - Kodály Központ közeli

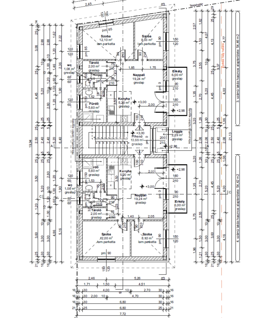
54 m2Alapterület 3 Szoba
54 000 000 Ft Ár
388103Azonosító
További adatok

1000 m2 Telek

Kertre néző Kilátás

Építés alatt Állapot

Tégla Szerkezet

6 m2 Erkély/terasz

Elektromos Fűtés

Összkomfort Komfort

Saját beálló Parkolás

Emelet 1

Legfelső emelet

Nincs Lift

Tömegközlekedés

Amerikai konyhás

Nincs Kertkapcsolat

2026 Építés éve

Délkeleti Tájolás

Hitelkalkuláció – a részletekért kattintson valamelyik bank logójára!

Csendes, kertvárosias részen új építésű, 4 lakásos társasházban, első emeleti, 3 szobás, erkélyes, hőszigetelt téglalakás leköthető.
helyiséglista:
nappali-erkély-konyha - fürdő - wc - tároló - szoba - szoba
A tereprendezés, felvonulás megtörtént, az alapozás most kezdődik, az átadási időpont 2026 december.
A falazat Leier NF30 csiszolttégla, 15 cm grafitos hőszigeteléssel.
Műanyag nyílászárók, Jola ajtókkal, redőnyelőkészítéssel kerülnek beépítésre.
A tetőszerkezet szeglemezes tető, betocserép héjazattal.
A fűtés hűtő-fűtő klimával történik.
Szaniterek, burkoló anyagok igény szerint választhatóak.
Az udvarban 1 db autóbeálló benne van az árban.
A kivitelező több épületet épített már Pécsett, jó referenciákkal.
További részletekért, műszaki információért hívjon, írjon, keressen T:30-947-8323
Lukács Péter

Lukács Péter

Hívjon bizalommal

+36-30-694-Mutasd!

További hirdetéseim

Ingatlaniroda
GDN Ingatlanhálózat - Belváros
+36 1 783 2515

Küldjön üzenetet

Visszahívást kérek

Hasonló ingatlanok