Siófokon a Bajcsy-Zsilinszki utca és a Rét utca közötti újonnan kialakuló lakóparkban, 900 méterre a Balaton partjától, 900m2-es telken nettó 63,07m2-es kulcsrakész ház eladó, 300m2-es kizárólagos használatú telekrésszel!
A közművek kialakítása folyamatban van.
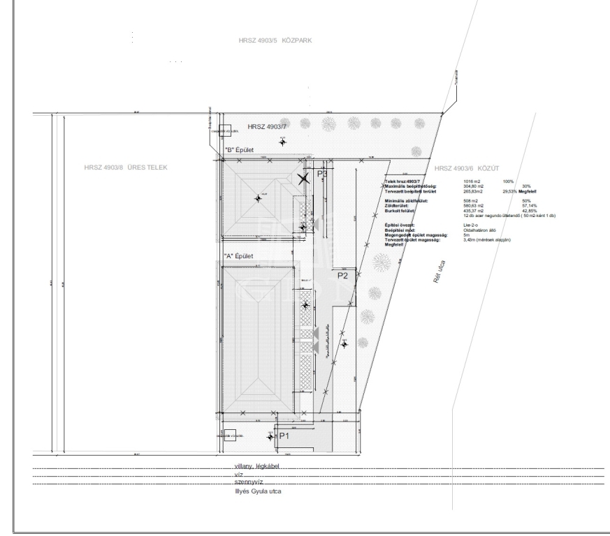
Az ingatlant kivitelező cég építi, várható átadás 2025 harmadik negyedév.
14 lakás alapja elkészült, a tartószerkezeti falak kialakítása folyamatban van. Az ingatlanokhoz szükséges tégla, cserép, fa anyag, nyílászárók beszerzése megtörtént.
A tartószerkezeti falak 30-as porotherm téglából készültek, a padlón 10cm lépésálló szigeteléssel, a homlokzatokon 15cm-es EPS szigeteléssel, a vízszintes födémen 25 cm ásvénygyapot szigeteléssel. A külső nyílászárók korszerű 6 légkamrás, 3 rétegű üvegekkel szereltek.
Fűtéséről és a használati melegvízről monoblockos levegő-víz hőszivattyú gondoskodik, padlón történő hőleadással.
Burkolatok, szaniterek, beltéri ajtók választhatóak.
Érdeklődő ügyfeleinknek a tervdokumetációt és a műszaki tartalmat készséggel rendelkezésre bocsájtjuk.
INGYENES hitel tanácsadás, CSOK Plusz ügyintézés!
BANKFÜGGETLEN hitelcentrumunk az összes elérhető bank és hitelintézet ajánlatát versenyezteti az Ön kedvéért, ráadásul DÍJMENTESEN.
- Egyedi, bankfiókban nem elérhető kamat- és díjkedvezmények
- Hitelképesség vizsgálat
- Idő, energia és pénz megtakarítás
- Teljes hivatali ügyintézés
Amennyiben hirdetésem felkeltette az érdeklődését vagy egyéb információra van szüksége hívjon bizalommal!