Eladó Lakás (téglaépítésű) Siófok - Sóstó

115 m2Alapterület 5 Szoba
185 000 000 Ft Ár
394213Azonosító
További adatok

436 m2 Telek

Kertre néző Kilátás

Új Állapot

Tégla Szerkezet

43 m2 Erkély/terasz

Hőszivattyú Fűtés

Összkomfort Komfort

Saját beálló Parkolás

Emelet Földszint

Nincs Lift

Tömegközlekedés

Amerikai konyhás

Van Kertkapcsolat

2026 Építés éve

Hitelkalkuláció – a részletekért kattintson valamelyik bank logójára!

Új építésű lakások Siófok, Sóstón!

Sóstó nyugodt, csendes részén, a Balatontól, strandtól sétatávolságra kínálunk megvételre egy most épülő, kétlakásos lakóingatlant.

Az építkezést most kezdték meg, így önnek még van lehetősége a belső tereket a saját izlése szerint kialakíttatni, kiválasztani a burkolatokat, beltéri ajtókat, falszíneket.

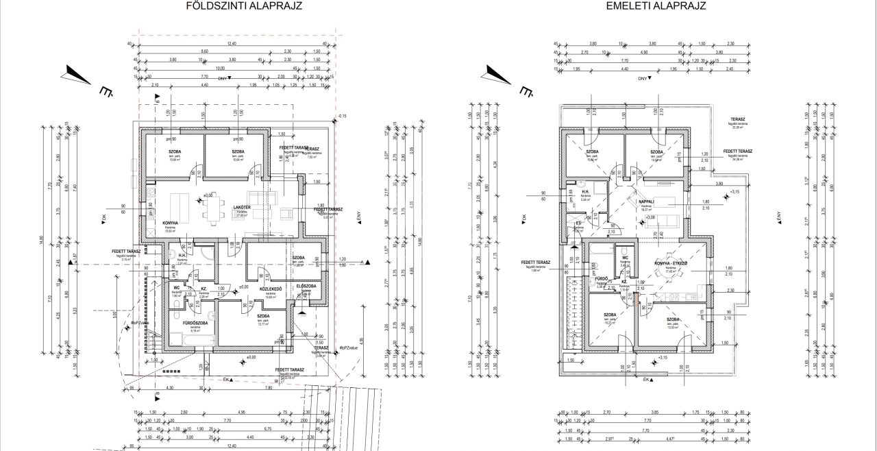
Ebben a hírdetésben az ingatlan földszinti lakását ajánljuk.
Alapterülete: nettó 115 nm + teraszok 43 nm + saját kertrész 436 nm.

Beosztása:
-előtér 2,26 nm,
- közlekedő 10,83 nm,
- közlekedő 2,28 nm,
- szoba 12,17 nm,
- szoba 11,68 nm,
- szoba 10,64 nm,
- szoba 10,64 nm,
- konyha 10,50 nm,
- nappali + étkező 27 nm,
- fürdőszoba + WC 8,19 nm,
- háztartási h. zuhanyzóval+ kézmosóval 7,01 nm,
- WC 1,8 nm,

- Teraszok:
- fedett terasz 13,09 nm,
- fedett terasz 26,82 nm,
- fedett terasz 3,15 nm.


Műszaki paraméterek:
- falazat Porotherm N+F 30 tégla,
- vasbeton födém + 25 cm szigetelés,
- 3 rétegű műanyag nyílászárók,
- elektromos alumínium redőny + szúnyogháló,
- külső szigetelés 15 cm polisztirol,
- a tetőterasz hangszigetelt,
- hőszivattyús fűtésrendszer, padlófűtés,
- 5 db hűtő-fűtő klíma,
- hideg burkolatok 9.000.-Ft/nm,
- meleg burkolatok 7.000.-Ft/nm,
- beltéri ajtók 100.000.- Ft/db,
- szaniterek 800.000.-Ft-ig.
- udvarban térkövezett autóbeálló.

Az emeleti panorámás lakás is még elérhető: nettó alapterülete 98 nm + 57 nm + 120 nm privát tetőterasz + 200 nm saját kertrész.
Ára: 225.000.000.-Ft.

Tervezett átadás: 2027. első negyedév.

Az ingatlant, a Nagy Házépítő Kft. kivitelezi, akik Siófokon számos referencia munkával rendelkeznek!

Közlekedés kiváló: Budapesttől alig 1 óra alatt elérhető.

Amivel segítjük az Ön ingatlan vásárlását:
- ingyenes hitelügyintézés (CSOK és Babaváró és egyéb hitel
ügyintézése is)
- jogi háttér,
- földhivatali ügyintézés,
- energetikai tanúsítvány ügyintézése,
- a vevő számára ingyenes az ingatlanközvetítés.
Irodánk 30 éves tapasztalattal áll ügyfelei rendelkezésére!

Várom szíves megkeresését!
Lukács Péter

Lukács Péter

Hívjon bizalommal

+36-30-694-Mutasd!

További hirdetéseim

Ingatlaniroda
GDN Ingatlanhálózat - Belváros
+36 1 783 2515

Küldjön üzenetet

Visszahívást kérek

Hasonló ingatlanok