Eladó Lakás (téglaépítésű) Budapest VI. kerület - Paulay Ede utca

96 m2Alapterület 3 Szoba
330 000 000 Ft Ár
387267Azonosító
További adatok

559 m2 Telek

Panoráma Kilátás

Új Állapot

Tégla Szerkezet

40 m2 Erkély/terasz

Hőszivattyú Fűtés

Dupla komfort Komfort

Utcán, közterületen Parkolás

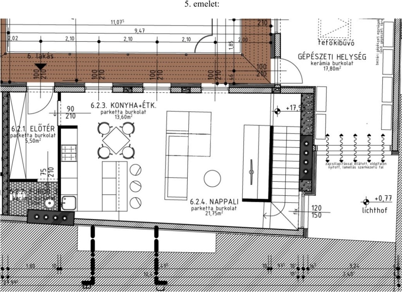
Emelet 5

Legfelső emelet

Van Lift

Kiváló Tömegközlekedés

Amerikai konyhás

Nincs Kertkapcsolat

Tetőtéri ingatlan

2023 Építés éve

Délnyugati Tájolás

Hitelkalkuláció – a részletekért kattintson valamelyik bank logójára!

EGYEDI, Exkluzív AJÁNLAT Budapest belvárosában a Paulay Ede utcában, közel az Operához.

ELADÓ egy 4 – 5.em-i 96nm-s duplex, új építésű lakás, 40,47nm-es kizárólagos használatú tetőterasszal
Irányár: 330.000.000.-ft


A lakás 5.em-i része: 44.13nm
-nappali 21.75nm
-konyha-étkező 13.6nm
-előtér 5.5nm
-fürdőszoba3-- 1.9nm

közlekedő+lépcső: 7.75nm

4.em-i része: 52.05nm
-Szoba1---15.7nm
-gardrób1–8.15nm
-fürdőszoba1 –6,4nm

-szoba2 –9nm
-gardrób2–6.55nm
-fürdőszoba2–5.05nm

--------------------------------
Redukált alapterület: 101,35nm
Tulajdoni lapon szereplő terület: 96nm

A lakásnak mindkét szinten van bejárata.
Fűtési mód: hőszivattyú, fan-coil, mennyezet és padlófűtés/hűtés
Melegvíz-ellátás: hőszivattyú
Nyílászárók: fém szerkezetű, hőszigetelt, 3 rétegű bejárati ajtók, ablakok

FONTOS INFORMÁCIÓK:

A lakás készültségi foka: 85%-os.
2017-2023 között lett kialakítva.
A jelenlegi tulajdonos, kivitelező cég, vevői megrendelésre, igény szinttől és kialakítástól függően be tudja fejezni a lakást.

-Minden helyiség lebetonozott, végső festésre vár, szerelvényezés nélkül.
-Belső lépcső kialakításra vár.
-Tetőteraszra kijutás vagy lépcsővel vagy home-lifttel
-Választható burkolatok és szerelvények

Elhelyezkedés: kiváló. 200-400m belül elérhetőek a metrovonalak, villamos-, busz,-trolibusz megállók, az Andrássy út, Deák Ferenc tér, Bajcsy-Zsilinszky út, a Király utca stb., éttermek,kávézók, színház, Opera stb

Várom hívását!
Lukács Péter

Lukács Péter

Hívjon bizalommal

+36-30-694-Mutasd!

További hirdetéseim

Ingatlaniroda
GDN Ingatlanhálózat - Belváros
+36 1 783 2515

Küldjön üzenetet

Visszahívást kérek

Hasonló ingatlanok