Eladó Lakás (panel) Budapest XXII. kerület - XXII. kerület Terv utca

50 m2Alapterület 2 Szoba
71 900 000 Ft Ár
393091Azonosító
További adatok

Kertre néző Kilátás

Felújított Állapot

Panel Szerkezet

3 m2 Erkély/terasz

Távfűtés Fűtés

Összkomfort Komfort

Utcán, közterületen Parkolás

Emelet 1

Nincs Lift

Tömegközlekedés

Nem Amerikai konyhás

Nincs Kertkapcsolat

1981 Építés éve

Közös költség 16 500 Ft

Hitelkalkuláció – a részletekért kattintson valamelyik bank logójára!

Van egy hely Budafokon, ahol a reggeli kávé az erkélyen kezdődik… és a nyugalom nem luxus, hanem alapérzés.

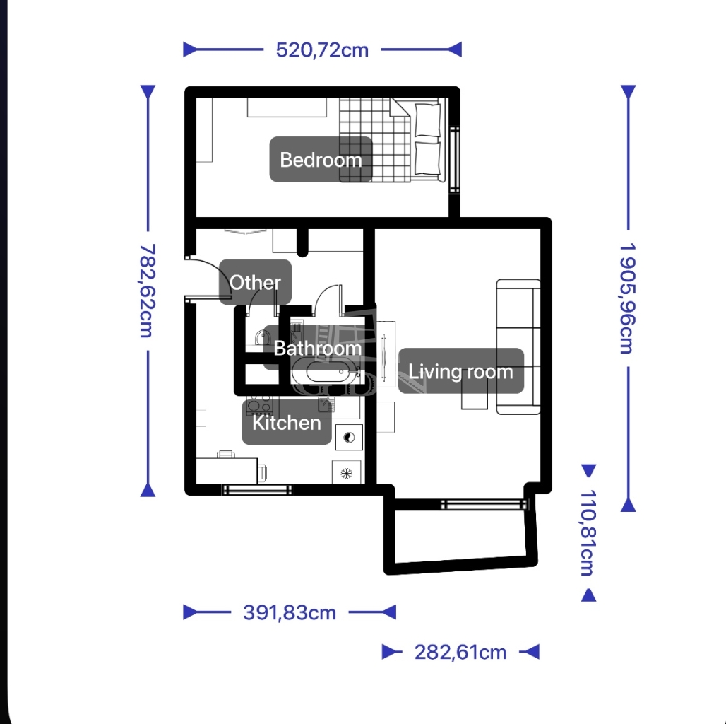
Budapest XXII. kerületének közkedvelt részén, a Rózsakerti lakótelepen kínálok megvételre egy 50 m²-es, első emeleti, igényesen felújított, 2 szobás lakást – egy olyan otthont, ahová valóban csak költözni kell.

A tér itt nemcsak négyzetméter, hanem élmény. A közel 18 m²-es nappali világos és élhető, a külön nyíló hálószoba meghitt pihenőzóna, a 3 m²-es erkély pedig a saját kis szabadtéri menedéked, egy pohár borral, egy jó könyvvel vagy csak egy csendes pillanattal.

Az ingatlan műszaki tartalma kiváló: felújított víz- és elektromos hálózat, új burkolatok, cserélt beltéri ajtók, biztonsági bejárati ajtó, valamint split klíma gondoskodik a modern komfortérzetről. A beépített előszobabútor praktikus és esztétikus megoldás, a lakás mellett található saját, zárható tároló pedig további kényelmet jelent.

A környezet itt valódi egyensúlyt teremt: madárcsicsergős nyugalom és városi kényelem kéz a kézben. Pár perc sétával elérhetők iskolák, óvodák, bevásárlási lehetőségek, egészségügyi szolgáltatások, a Campona pedig néhány perc autóval. Parkosított terek, játszóterek, nyugodt lakóközösség és ingyenes utcai parkolás teszik teljessé az összképet.

Ez a lakás ideális első otthonnak, fiatal pároknak, tudatos befektetőknek vagy mindazoknak, akik nem kompromisszumot, hanem jó döntést szeretnének hozni.
Ha olyan otthont keres, amely egyszerre fiatalos, felújított és értékálló, örömmel mutatom meg személyesen is.
Lukács Péter

Lukács Péter

Hívjon bizalommal

+36-30-694-Mutasd!

További hirdetéseim

Ingatlaniroda
GDN Ingatlanhálózat - Belváros
+36 1 783 2515

Küldjön üzenetet

Visszahívást kérek

Hasonló ingatlanok