Eladó Lakás (panel) Budapest XI. kerület - Gazdagrét

74 m2Alapterület 2 + 1 Szoba
99 900 000 Ft Ár
394821Azonosító
További adatok

Utcai Kilátás

Jó állapotú Állapot

Panel Szerkezet

Házközponti Fűtés

Összkomfort Komfort

Utcán, közterületen Parkolás

Emelet 4

Van Lift

Kiváló Tömegközlekedés

Nem Amerikai konyhás

Nincs Kertkapcsolat

1986 Építés éve

Közös költség 20 000 Ft

Nyugati Tájolás

Hitelkalkuláció – a részletekért kattintson valamelyik bank logójára!

--- GAZDAGRÉTI LAKÓTELEPEN, BUDAPEST LEGKEDVELTEBB LAKÓTELEPÉN, 74 nm-es LAKÁS ---

A KÖRNYÉK
Gazdagrét a XI.kerület méltán kedvelt városrésze. Minden ami fontos, sétatávolságon belül megtalálható.
Bevásárló központ, éttermek, kávézók, játszóterek, kutyafuttatók, szépségszalonok, orvos rendelő, bankok, iskola, óvoda, bölcsőde stb. Tényleg minden.
Tömegközlekedése kiváló. Közvetlen buszjárat a 4-es Metróhoz, Kelenföldi pályaudvarhoz, Blaha Lujza térre, busz a Ferenciek terére és a Déli pályaudvarra.
Autóval pár perc az M1-M7 autópálya, a budaörsi bevásárló centrum.

A HÁZ
A ház a nyolcvanas évek közepén épült, 9 emeletes lakótömb. Igényes lakóközösség lakja, a lépcsőház tiszta, rendezett, gondnok és közös képviselő kiváló munkát végeznek.
A házak nem épültek közel egymáshoz, köztük hatalmas gondozott parkok találhatók.
Autóval parkolni a ház előtt díjmentesen lehet.

A LAKÁS
A lakás a 4.emeleten található. A sok ablaknak és a K-Ny-i tájolásnak köszönhetően világos. Remek elosztású, tágas lakás, mely még egy további szobával is bővíthető szükség esetén.

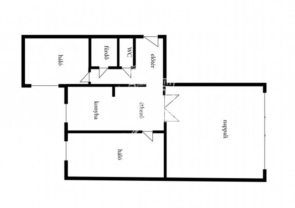
Elrendezése az alaprajz szerinti:
- Előszoba
- Hall/étkező
- Konyha
- Nappali
- Szoba
- Szoba
- Fürdőszoba
- WC (külön helységben)

A nagy méretű nappali könnyedén egy térré alakítható a hall és a konyha közti fal elbontásával, tovább növelve a teret.
A lakásban található bútorok megállapodás szerint maradhatnak.

AZ INGATLAN JÓ HELYEN TALÁLHATÓ, ELOSZTÁSA MIATT IGAZÁN ÉLHETŐ.
A KÖRNYÉK ADOTTSÁGAI MIATT TÖKÉLETES VÁLASZTÁS MINDEN KOROSZTÁLY SZÁMÁRA.

Amennyiben az ingatlan felkeltette érdeklődését keressen bizalommal!


AMENNYIBEN NEM RENDELKEZIK A TELJES VÉTELÁRRAL, segítünk Önnek megtalálni a legjobb megoldást!
BANKFÜGGETLEN hitelcentrumunk minden elérhető bank és hitelintézet ajánlatát versenyezteti az Ön kedvéért, ráadásul díjmentesen. Önnek nincs más dolga, mint elbeszélgetni munkatársunkkal, aki a hallott információk alapján versenyre hívja a bankokat, hogy Ön hosszú távon is a legjobb konstrukciót kaphassa. A legjobb ajánlatokból végül Ön választhatja ki a nyertest. Munkatársaink sokéves szakmai tapasztalattal várják Önt, előre egyeztetve akár a normál munkaidő után is.
Térkép
Lukács Péter

Lukács Péter

Hívjon bizalommal

+36-30-694-Mutasd!

További hirdetéseim

Ingatlaniroda
GDN Ingatlanhálózat - Belváros
+36 1 783 2515

Küldjön üzenetet

Visszahívást kérek

Hasonló ingatlanok