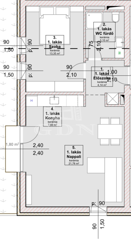
| 52 m2Alapterület | 2 Szoba |
| 51 400 000 Ft Ár | |
| 386761Azonosító | |
| További adatok | |
50 m2 Telek
Kertre néző Kilátás
Építés alatt Állapot
Tégla Szerkezet
2 m2 Erkély/terasz
Hőszivattyú Fűtés
Összkomfort Komfort
Garázs/beálló vásárolható Parkolás
Emelet Földszint
Nincs Lift
Kiváló Tömegközlekedés
Amerikai konyhás
Van Kertkapcsolat
2027 Építés éve