Eladó Családi ház Ráckeve - Sólyomsziget

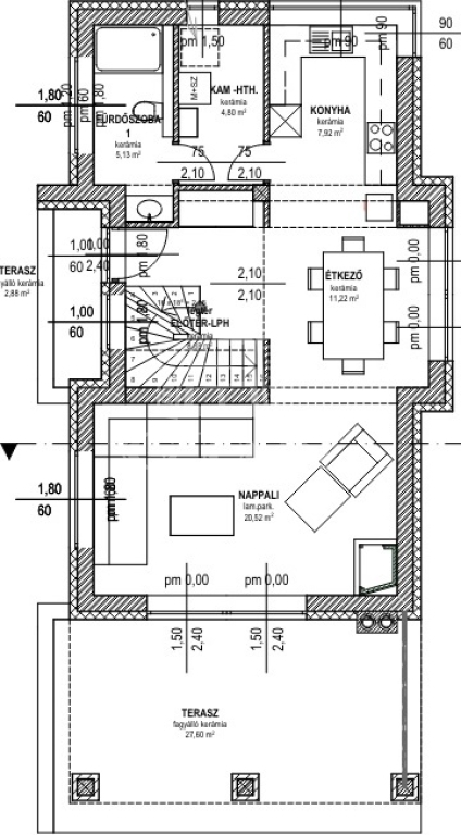
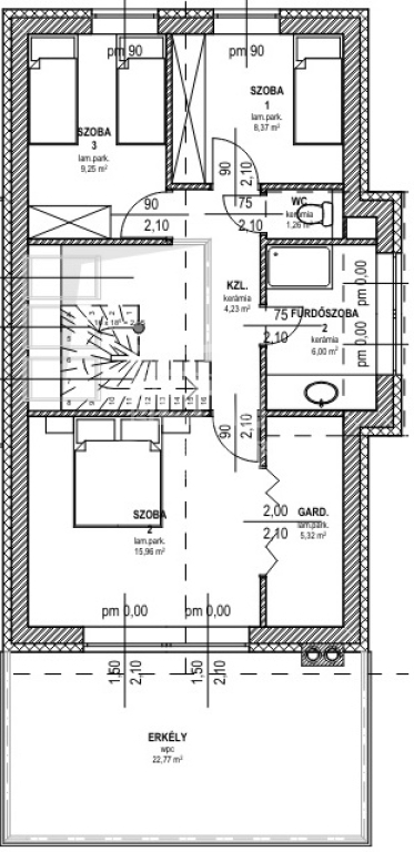
135 m2Alapterület 4 Szoba
109 900 000 Ft Ár
369341Azonosító
További adatok

430 m2 Telek

Panoráma Kilátás

Építés alatt Állapot

Tégla Szerkezet

49 m2 Erkély/terasz

Hőszivattyú Fűtés

Dupla komfort Komfort

Saját beálló Parkolás

Tömegközlekedés

Amerikai konyhás

Van Kertkapcsolat

2024 Építés éve

Déli Tájolás

Hitelkalkuláció – a részletekért kattintson valamelyik bank logójára!

Eladó ingatlan a Duna partján, lenyűgöző erkélyes panorámával és magas műszaki tartalommal!

Ez a különleges ingatlan a vízpart mellett 50 méterre helyezkedik el, így részben közvetlen kilátást nyújt a Ráckevei Dunaágra. Az épület kiemelkedően magas műszaki tartalommal rendelkezik, amely garantálja a hosszú távú kényelmet és biztonságot. A fejlesztés során a legmodernebb technológiákat és prémium minőségű anyagokat használták fel, amelyet a referencia munkák is alátámasztanak. Csak néhány technológia a sok közül: hőszivattyú, padlófűtés, hűtő-fűtő klímák, 6 légkamrás színes műanyag nyílászárók 1.0-ás hőszigetelt üvegezéssel, vakolható-tokos elektromos redőnnyel...

Az ingatlan dupla komfortos kialakítású, így két teljesen felszerelt fürdőszobával rendelkezik, ami növeli a kényelmet és a praktikumot, különösen nagyobb családok vagy vendégek esetén. Az épület tervezése és kivitelezése során nagy figyelmet fordítottak a funkcionalitásra és az esztétikára egyaránt.

Az ingatlanhoz ajándékként egy saját stég is tartozik, ami 200 méterre található az épülettől. Ideális a vízi sportok szerelmeseinek vagy azoknak, akik szeretnének közvetlenül a víz mellől horgászni vagy csak élvezni a nyugalmat a Ráckevei Dunaág partján.

Az ingatlan egy üdülőövezetben található, így garantált a pihenés és a kikapcsolódás minden évszakban. Ha szeretné megtekinteni a részletes műszaki leírást, kérem vegye fel velem a kapcsolatot, és elküldöm Önnek.

Ez a különleges ajánlat ideális választás mindazoknak, akik egy exkluzív és nyugodt vízparti ingatlanra vágynak, amely minden igényt kielégít a luxus és a kényelem terén.
Hitelképes, vegye igénybe INGYENES szolgáltatásainkat!
Amennyiben felkeltettem érdeklődését, keressen bizalommal.
Ha nem veszem fel, visszahívom!
ID: 369341
Lukács Péter

Lukács Péter

Hívjon bizalommal

+36-30-694-Mutasd!

További hirdetéseim

Ingatlaniroda
GDN Ingatlanhálózat - Belváros
+36 1 783 2515

Küldjön üzenetet

Visszahívást kérek

Hasonló ingatlanok