Eladó Lakás (téglaépítésű) Budapest VIII. kerület - Harminckettesek tere

52 m2Alapterület 2 Szoba
62 900 000 Ft Ár
394513Azonosító
További adatok

Utcai Kilátás

Felújítandó Állapot

Tégla Szerkezet

Egyéb Fűtés

Komfort Komfort

Utcán, közterületen Parkolás

Emelet 4

Legfelső emelet

Van Lift

Kiváló Tömegközlekedés

Nem Amerikai konyhás

Nincs Kertkapcsolat

1902 Építés éve

Közös költség 17 000 Ft

Északi Tájolás

Hitelkalkuláció – a részletekért kattintson valamelyik bank logójára!

Befektetők figyelem! Két garzon lehetőség a belváros szívében, a Harminckettesek tere közelében!

Budapesten, a **Harminckettesek tere közelében**, **liftes, akadálymentesített, jó állapotú társasházban** eladó egy **teljesen felújítandó**, 4. emeleti, utcai, világos lakás, amely ideális befektetésre vagy átalakításra. **Idén megtörténik a belső függőfolyósok és a homlokzat felújítása**, így hosszú távon is kényelmes, értékálló befektetést jelent.

** Lakás paraméterei:**
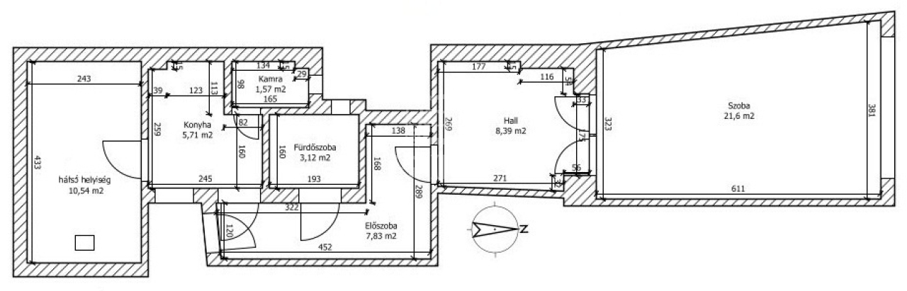
✅ Valós alapterület: 59 m² (tulajdoni lapon 52 m²)
✅ Szobák: 2 (átalakítható akár 3 szobássá, vagy két külön lakássá)
✅ Konyha és fürdő ablakos
✅ Közös költség: 17.000 Ft
✅ Liftes, akadálymentesített, rendezett társasház

** Környék és közlekedés:**
✅ Közvetlenül a **Körúthoz közel**, pezsgő belvárosi élet
✅ Sok **üzlet, kávézó, bár, étterem, szolgáltatás** a környéken
✅ Gyors közlekedés: busz és trolibusz a ház előtt, villamos mindössze 50 méterre

** Ajánlott:**
✅ Befektetőknek, akik gyorsan alakítható, két garzonként is működő lakást keresnek
✅ Felújítóknak és saját igényre alakítóknak

-- English --

**Attention Investors! Opportunity for Two Studios Near Harminckettesek Square!**

In Budapest, **near Harminckettesek Square**, an **elevator-equipped, accessible, well-maintained building** offers a **fully renovatable**, 4th-floor, street-facing, bright apartment—perfect for investment or conversion. **Interior corridors and facade renovations are scheduled for this year**, ensuring a long-term, valuable investment.

** Apartment Details:**
✅ Actual area: 59 m² (52 m² on the title deed)
✅ Rooms: 2 (can be converted into 3 rooms or split into two separate apartments)
✅ Kitchen and bathroom with windows
✅ Monthly maintenance fee: 17,000 HUF
✅ Elevator, accessible, well-maintained building

** Neighborhood and Transport:**
✅ Very close to the **Grand Boulevard**, vibrant downtown life
✅ Plenty of **shops, cafés, bars, restaurants, and services** nearby
✅ Excellent public transport: bus and trolleybus stops in front of the building, tram just 50 meters away

** Recommended For:**
✅ Investors looking for a quickly convertible apartment, suitable as two studios
✅ Renovators and buyers who want to customize to their own taste

B.Zs.
Lukács Péter

Lukács Péter

Hívjon bizalommal

+36-30-694-Mutasd!

További hirdetéseim

Ingatlaniroda
GDN Ingatlanhálózat - Belváros
+36 1 783 2515

Küldjön üzenetet

Visszahívást kérek

Hasonló ingatlanok