Eladó Lakás (téglaépítésű) Budapest XII. kerület - Moha utca

204 m2Alapterület 4 Szoba
760 000 €(~ 275 538 000 Ft)
375716Azonosító
További adatok

1603 m2 Telek

Panoráma Kilátás

Új Állapot

Tégla Szerkezet

34 m2 Erkély/terasz

Hőszivattyú Fűtés

Összkomfort Komfort

Saját garázs Parkolás

Emelet Földszint

Nincs Lift

Közepes Tömegközlekedés

Amerikai konyhás

Van Kertkapcsolat

2023 Építés éve

Délnyugati Tájolás

Hitelkalkuláció – a részletekért kattintson valamelyik bank logójára!

ÁLOM LAKÓKÖRNYEZET, PANORÁMA ÉS LUXUS A VÁROS FELETT!

A lenyűgöző panorámával rendelkező luxus élettér a Budai oldal kiemelt részén a Farkasvölgy-Csillebérc városrészek ölelésében, közvetlenül tájvédelmi terület közelében, mégis ritka csendes hegyvidéki környezetben helyezkedik el!

A hirdetésben szereplő ár az alábbi egységeket foglalja magában:
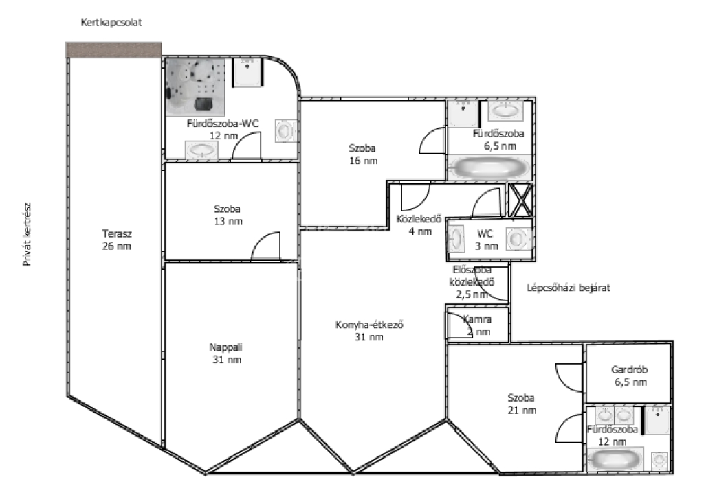
- lakás nettó alapterület: 153 m2,
- kertkapcsolatos nagyméretű terasz: 35 m2,
- kert használat, társasházi alapító szerinti megosztással,
- garázs: 16nm,
- közös használatú társasházi egységek (pl. lépcsőház, felszíni beálló)
- wellness részleg (úszómedence, Finn szauna, masszázs kád) használat.

A szűk lokáció pont attól egyedi, hogy 10 PERCEN BELÜL EGYARÁNT ELÉRHETŐ A XII. ÉS A XI. KERÜLET FREKVENTÁLT RÉSZEI, vagy akár Budaörs, valamint az M7-es, illetve M1-es autópálya kivezető szakasza (elkerülve a városi forgalmat)!

Az épülettel és a lakással kapcsolatos fotók, alaprajzok, kivitelezési tervdokumentációk igény szerint rendelkezésre állnak!

Rövid szerkezeti, műszaki tartalom:
- tetőfedés: antracit színű betoncserép + PREFA rendszerű alumínium lemez bádogozás,
- födém: vasbeton monolit födémszerkezet, előre gyártott és monolit kiváltók,
- vázszerkezet: 30 cm égetett vázkerámia, (Porotherm klíma),
- szigetelés: 15 cm vastag dryvit,
- belső válaszfal: 10 cm vastag válaszfaltégla, lakásokat elválasztó fal: 30 cm vastag hang-gátló téglával,
- 3 rétegű üveg, 5 légkamrás nyílászárók,
- hőszivattyús rendszer, padló és mennyezetfűtés.

FIGYELEM, az épületben további 2 lakás lett kialakítva, melyek külön emeleten helyezkednek el.
Fontos megemlíteni, hogy a kertkapcsolatos ingatlan hálószobai gardrób válaszfalának átalakításával akár közvetlen, privát kapcsolatot lehet biztosítani a wellness részhez!

Extrák:
- belső medence és kiépített wellness részleg,
- minőségi burkolatok, szaniterek és egyedi, átgondolt tervezés,
- távirányítós, motoros úszó kapu,
- önállóan használt garázs felhajtó,
- fűtött garázs (közvetlen lépcsőházi átjárással),
- Hitachi típusú hőszivattyús fűtésrendszer, padlófűtéssel!
Lukács Péter

Lukács Péter

Hívjon bizalommal

+36-30-694-Mutasd!

További hirdetéseim

Ingatlaniroda
GDN Ingatlanhálózat - Belváros
+36 1 783 2515

Küldjön üzenetet

Visszahívást kérek

Hasonló ingatlanok