Eladó Családi ház Dunakeszi - Duna sor

138 m2Alapterület 5 Szoba
130 000 000 Ft Ár
379591Azonosító
További adatok

200 m2 Telek

Panoráma Kilátás

Jó állapotú Állapot

Tégla Szerkezet

22 m2 Erkély/terasz

Elektromos Fűtés

Dupla komfort Komfort

Saját beálló Parkolás

Kiváló Tömegközlekedés

Amerikai konyhás

Van Kertkapcsolat

2006 Építés éve

Hitelkalkuláció – a részletekért kattintson valamelyik bank logójára!

DUNAKESZI DUNA SOR!

PANORÁMÁS KILÁTÁSSAL A DUNÁRA!

Az épület bejáratánál közvetlenül a régi szabadstrand lejárói nyílnak direkt hozzáféréssel a Duna egyik rejtettebb strand szigetére.

A NÉPSZERŰ CSURGÓ BÜFÉ 3 PERCRE!

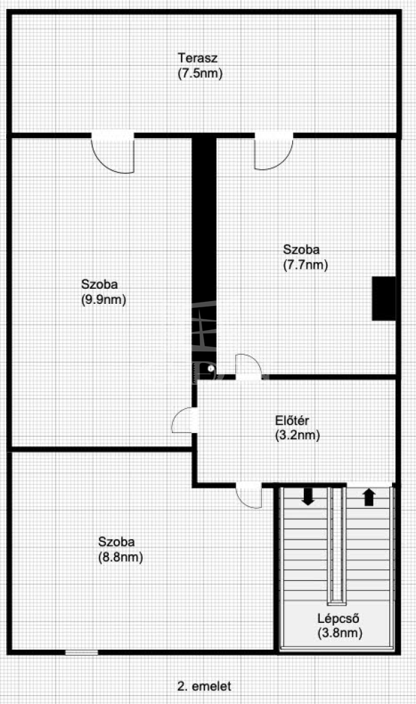
Felső szinten egy közlekedő, 3 szoba és terasz nyílik a dunai panorámára.
Szobák falai nem tartó falak, a helyiségek egymásba nyithatók, helyi építési szabályzatnak megfelelően akár a terasz is lakótérhez csatolható, és az alatta lévő terasz méretével egyező terasz hozható létre ezen a szinten is.
Belső terek jelenleg az emeleten 34nm, de az említett átalakítással 41nm-re bővíthető, az új terasz 10-15nm méretekig bővíthető.

Középső emeleten 45nm lakórész és 15nm terasz található. Kandallónak kiépített helye van a falon és a kéményben, különálló és beépített tűzteret is lehetséges ide telepíteni. Az emeleten található egy kényelmes pezsgőfürdős kádas fürdő. A fő szoba ideális tér lehet nappalinak. Jelenleg konyha is található a szoba egyik szegletében. A szoba tereiből kilátás nyílik a Dunára.

Földszinten található egy második fürdő zuhanyzóval, ezen a szinten a belső terek összesen 50nm-t tesznek ki. A fő szoba ideális lehet egy amerikai konyhás nappalinak és étkezőnek. Ezen kívül egy gépészeti szoba, tároló helyiség, és egy mini szauna is helyet kapott ezen az emeleten.

Ingatlan az utca legmagasabb pontján van, a legmélyebb ponthoz képest 8-10 méterrel magasabban van, így árvizektől sem kell tartani. Horányi komp 4 perc sétatávra, és Dunakeszi ingyenes tömegközlekedése is 5 perc sétára található.

Besorolása szerint lakóövezeti!

KIVÉTELES LEHETŐSÉG, NE MARADJON LE RÓLA!
Lukács Péter

Lukács Péter

Hívjon bizalommal

+36-30-694-Mutasd!

További hirdetéseim

Ingatlaniroda
GDN Ingatlanhálózat - Belváros
+36 1 783 2515

Küldjön üzenetet

Visszahívást kérek

Hasonló ingatlanok