Eladó Ikerház Monor - Monor Manófalva Bölcsőde közelében

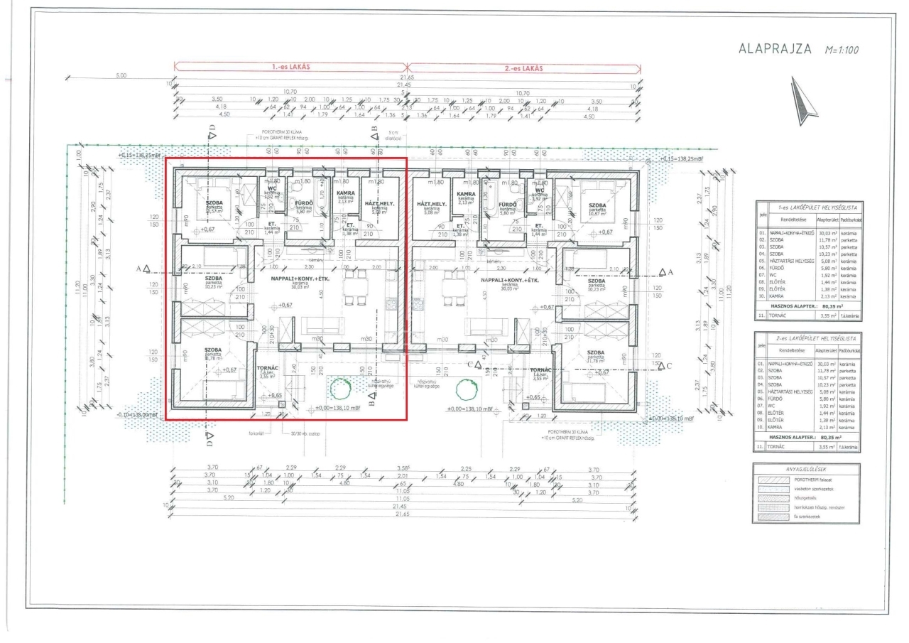
80 m2Alapterület 4 Szoba
89 900 000 Ft Ár
384622Azonosító
További adatok

300 m2 Telek

Kertre néző Kilátás

Új Állapot

Tégla Szerkezet

4 m2 Erkély/terasz

Hőszivattyú Fűtés

Összkomfort Komfort

Saját beálló Parkolás

Közepes Tömegközlekedés

Amerikai konyhás

Van Kertkapcsolat

2025 Építés éve

Nyugati Tájolás

Hitelkalkuláció – a részletekért kattintson valamelyik bank logójára!

MONOR KERTVÁROSI RÉSZÉN ÚJ ÉPÍTÉSŰ IKERHÁZ FÉL ELADÓ!!!

Monor csendes, kertvárosias részén, cca. 300 nm-es telek területtel, Új építésű, 80 nm-es, 4 szobás (nappali + 3 hálószoba), egy szintes, hőszivattyús fűtéssel, Nyugati fekvésű, műanyag (3 rétegű) nyílászárós, szigetelt, fafödémes, új építésű ikerház fél eladó.

Az ingatlan 30 cm-es Porotherm X-therm okos téglából épül, 10 cm-es grafitos szigeteléssel, fa födémmel, beton cserép fedéssel.


Az ingatlan kulcsrakész állapotban kerül átadásra, riasztó előkészítéssel, szaniterekkel, burkolatokkal, rendezett kerttel, új kerítéssel, tér burkolt járdával. A belső ajtókat, szanitereket és a burkolatokat a belső műszaki tartalomban megjelölt összegig a vevő a saját igénye szerint választhatja.
A nyílászárók hőszigetelt 3 rétegű üvegezésűek, igény esetén elektromos rejtett redőnnyel, zsalúziával, rovarhálóval.

300 nm-es telek terület és a földszinti tornác lehetőséget nyújt a pihenésre, kikapcsolódásra.


Iskola, óvoda, bölcsöde, posta, orvosi rendelő, bevásárlási lehetőség, patika séta távolságra, az M4-es, M0-ás, személy gépkocsival viszonylag gyorsan elérhető.


CSOK PLUSSZ, 5%-OS ÁFA IGÉNYELHETŐ!!!

Átadás: 1 éven belül, 2026. február végén.

Építés éve: 2025
Méret: 80 nm
Falazat: Porotherm 30 cm X-therm okos tégla
Szigetelés: 10 cm grafitos
Nyílászárók: Műanyag 3 rétegű üvegezéssel, redőny, zsalúzia előkészítéssel (igény esetén elektromos redőnnyel, zsalúziával és szúnyoghálóval)
Födém: fafödém
Fűtés: hőszivattyús fűtéssel
Állapot: új építésű
Parkolás: saját felszíni beálló, elektromos kapu előkészítés.

Érdemes megnézni, bővebb információért hívjon bizalommal akár hétvégén is!
L.D

INGYENES hitel tanácsadás, CSOK Plusz, OTTHON START ügyintézés!
BANKFÜGGETLEN hitelcentrumunk az összes elérhető bank és hitelintézet ajánlatát versenyezteti az Ön kedvéért, ráadásul DÍJMENTESEN.

- Egyedi, bankfiókban nem elérhető kamat- és díjkedvezmények
- Hitelképesség vizsgálat
- Idő, energia és pénz megtakarítás
- Teljes hivatali ügyintézés
Lukács Péter

Lukács Péter

Hívjon bizalommal

+36-30-694-Mutasd!

További hirdetéseim

Ingatlaniroda
GDN Ingatlanhálózat - Belváros
+36 1 783 2515

Küldjön üzenetet

Visszahívást kérek

Hasonló ingatlanok