Eladó Lakás (téglaépítésű) Szeged - Szeged

48 m2Alapterület 2 Szoba
67 378 500 Ft Ár
388691Azonosító
További adatok

Utcai Kilátás

Új Állapot

Tégla Szerkezet

Megújuló energia Fűtés

Összkomfort Komfort

Garázs/beálló vásárolható Parkolás

Emelet 1

Nincs Lift

Tömegközlekedés

Amerikai konyhás

Nincs Kertkapcsolat

2025 Építés éve

Hitelkalkuláció – a részletekért kattintson valamelyik bank logójára!

Eladásra kínálunk újépítésű lakásokat Szeged Rókus városrész belvárosához közeli csendes utcájában.

Társasházban változatos alapterületű lakások köthetőek le 22 m2-től -78 m2-ig, amelyek 31,6 -108,7 M. forintos áron vásárolhatóak meg.

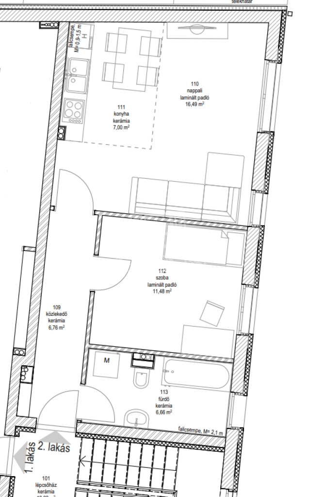
A társasház első emeltén található 48 m2-es lakás elrendezése:

• Amerikai konyhás nappali 23,49 m2
• Hálószoba 11,48 m2
• Fürdőszoba 6,6 m2
• Közlekedő 6,67 m2

Parkolás az utcán vagy a társasházban megvásárolható beálló vagy süllyesztett parkolóliftes beállási helyeken oldható meg.

• Süllyesztett parkolólift ár 4,5 M. forint / db
• Kocsibeálló ára 4,65 M. forint / db

Társasház magas színvonalú kivitelezéssel és minőségi alapanyagok felhasználásával, valamint korszerű energiatakarékos műszaki tartalommal kerül megépítésre.

A generálkivitelező cég évek óta minőségi kivitelezéssel épít ingatlanokat.

A kulcsrakész átadás tervezett időpontja 2026 első félévében.

Kedvezményes hiteligénylés, CSOK, BABAVÁRÓ támogatás esetén, kezdeményezheti a kapcsolatfelvételt díjmentesen bankfüggetlen hitelszakértő munkatársunkkal.

Az ingatlan megtekintése előre egyeztetett időpontban lehetséges, akár hétvégén is.

Amennyiben felkeltette az érdeklődését, további kérdéseivel kapcsolatban várom a jelentkezését.
Lukács Péter

Lukács Péter

Hívjon bizalommal

+36-30-694-Mutasd!

További hirdetéseim

Ingatlaniroda
GDN Ingatlanhálózat - Belváros
+36 1 783 2515

Küldjön üzenetet

Visszahívást kérek

Hasonló ingatlanok