Eladó Ikerház Bag - Bag frekventált részén

76 m2Alapterület 3 Szoba
92 990 000 Ft Ár
392917Azonosító
További adatok

286 m2 Telek

Udvari Kilátás

Új Állapot

Tégla Szerkezet

15 m2 Erkély/terasz

Elektromos Fűtés

Összkomfort Komfort

Saját beálló Parkolás

Kiváló Tömegközlekedés

Amerikai konyhás

Van Kertkapcsolat

2025 Építés éve

Délkeleti Tájolás

Hitelkalkuláció – a részletekért kattintson valamelyik bank logójára!

SZERETNÉL EGY MODERN, ENERGIAHATÉKONY, ÚJ ÉPÍTÉSŰ OTTHONT CSENDES, MÉGIS KIVÁLÓ ELHELYEZKEDÉSSEL?

BAGON MOST ELÉRHETŐ EGY NAPFÉNYES, DÉLI FEKVÉSŰ, AMERIKAI KONYHÁS NAPPALIS IKERHÁZFÉL, PRÉMIUM MŰSZAKI TARTALOMMAL, KERTKAPCSOLATTAL ÉS REMEK KÖZLEKEDÉSI ADOTTSÁGOKKAL

IDE CSAK KÖLTÖZNI KELL!

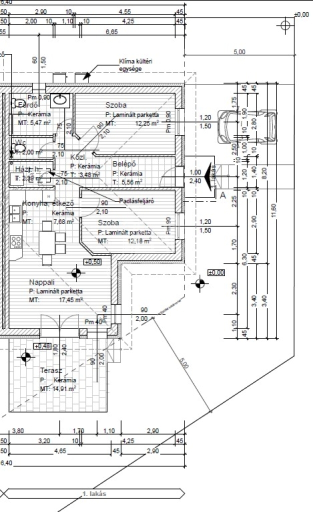
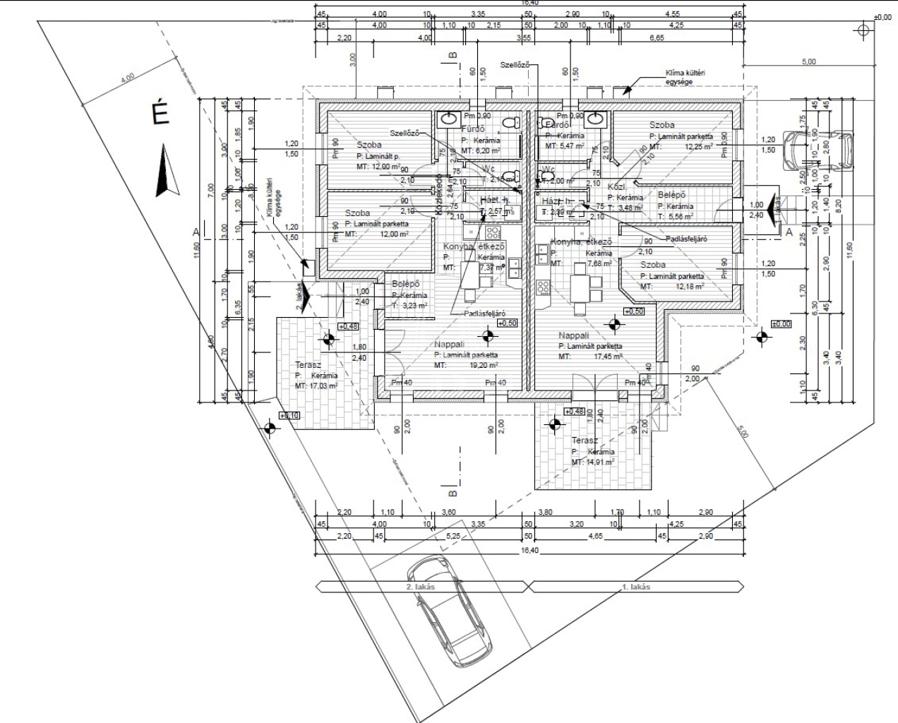
Megvételre kínálok Pest vármegyei Bag település, csendes de mégis frekventált részén, 286 nm-es telek részen, déli fekvésű, nettó 76 nm-es, bruttó 83 nm-es, 2 szobás + amerikai konyhás nappalival rendelkező, új építésű, rendkívül világos ikerház felet.

Az épület H-tarifás mérővel és 5 kw napelemmel rendelkezik (bővíthető és akkumulátorral ellátható) , mely minimálissá teszi a rezsiköltséget.

​Műszaki leírás:
​Szerkezetek (Anyagok, színek ismertetése):

​Alapok:
Az épülő alapok 50, illetve 60 cm széles, (C20/25) felső síkjában vasalással összekötve.

Vb. aljzatlemez:
A sávalapok közötti földfeltöltés 20 cm-es rétegenként géppel tömörítve van, majd 15 cm vtg. tömörített kavics ágy van lehelyezve. A vasalt lemez aljzat vastagsága 15 cm.

Víz szigetelés:
A vízszintes falszigetelés, illetve a padlószigetelés anyaga 1 réteg Icopal E-G 4 F/K bitumenes vastaglemez.

Felmenő falak:
A lábazati falak 30 cm vtg. kibetonozott, vasalt beton zsalukő falak. Az épület külső határoló falai 30 cm vastag Porotherm 30 N+F falazó blokkból állnak. A külső körítő falak külső oldalai 15 cm grafit EPS Dryvit hőszigetelő vakolatot kaptak.

Lakáselválasztó fal:
2 réteg Porotherm 20 N+F falazó blokk fal, közöttük 10 cm Rockwool Airrock HD hangszigetelő lemez.

Födémek, koszorúk, áthidalók:
A homlokzati nyílászárók feletti áthidalások monolit vb. ill. Porotherm áthidalók. A földszint feletti födém tartószerkezete 5/15 cm szelvényű szeglemezes tartó tetőszerkezet alsó öve, melyek között, illetve alatt 30 cm Isover üveggyapot hőszigetelés van. Alsó borítása 12,5 mm RB Rigips gipszkarton.

Tetőszerkezet:
Kissé összetett sátortető 30°-os dőlésszöggel. Fa szeglemezes tartó rendszerű tetőszerkezet.

Héjalás, bádogozás:
Vörös színű, nagy hullámú Terrán betoncserép fedés, alatta Medifol 150 PE fólia.

Válaszfalak:
10 N+F Porotherm válaszfal lapokból falazott 10 cm vtg. falszerkezet.

Nyílászáró szerkezetek:
Dekorfóliás belső ajtók. A homlokzati fehér műanyag nyílászárók 3 rétegű hőszigetelő üvegezésűek (U=1,0 W/m²K).

Hőszigetelés:
Padlóba 15 cm vtg. Austrotherm N150. Padlás födémbe 30 cm Isover üveggyapot. Homlokzaton 15 cm Drvit grafit ESP. Lábazatra 12 cm XPS hőszigetelés.

​Belső felületképzések:
Vakolt, glettelt, diszperziós festés. Vizes helyiségekben 2,1 m magasságig csempeburkolat.

Kémények:
Az épületben nincs kémény tervezve.

Közművek:
Az ingatlan előtti utcában elektromos vezeték, vízvezeték és csatorna, valamint gáz közmű található.

​Külső ablakok:
​Anyag megnevezése: műanyag ablak, víztiszta 3 rtg-ű hőszigetelő üvegezéssel
​Hőátbocsátási tényezője: U = 1,0 \text{ W/m}^2\text{k}
​Hangszigetelés: 28 dB

​Külső teraszajtó:
​Anyag megnevezése: műanyag-alu teraszajtó, víztiszta, 3 rtg hőszigetelő üvegezéssel, felnyíló
​Hőátbocsátási tényező: U = 1,40 \text{ W/m}^2\text{k}

A címen található ingatlan Bag központi részéhez közel helyezkedik el, így a település infrastruktúrájának jelentős része sétatávolságon belül vagy néhány perces autóúttal elérhető.

​A környék infrastrukturális jellemzői az alábbiak szerint összegezhetők:

​Közlekedés:

​Közúti megközelítés: A település kiváló közlekedési adottságokkal rendelkezik az M3-as autópálya közvetlen közelsége révén, amely gyors összeköttetést biztosít Budapest és Gödöllő irányába.

​Tömegközlekedés: A településen áthalad a Budapest–Hatvan vasútvonal, így a vasútállomásról rendszeres járatok indulnak a fővárosba. Emellett a helyközi autóbuszjáratok megállói is elérhetőek, amelyek a környező városokkal biztosítják a kapcsolatot.

​Ellátottság és Szolgáltatások:

​Oktatás és nevelés: A településen működik óvoda és általános iskola, így a gyermekneveléshez szükséges alapvető intézmények helyben adottak.

​Egészségügy: Háziorvosi rendelő, védőnői szolgálat és gyógyszertár is rendelkezésre áll a lakók számára.

​Vásárlás: A napi szükségletek kielégítésére élelmiszerboltok, pékség és kisebb szaküzletek találhatók a közelben. Nagyobb bevásárlóközpontok Gödöllőn vagy Aszódon érhetőek el rövid idő alatt.

​Közművek és Környezet
​Hálózat: A terület teljes körű közművesítéssel rendelkezik, beleértve a villamos energiát, a vezetékes vizet, a gázt és a csatornahálózatot. Az utcák aszfaltozottak, a távközlési szolgáltatások (internet, kábeltelevízió) kiépítettek.
​Környezet: Kertvárosias, családias övezet, ahol a természet közelsége és a nyugodt lakókörnyezet dominál, miközben az agglomerációs előnyök is érvényesülnek.

INGYENES hitel tanácsadás! CSOK Ügy intézés!
BANKFÜGGETLEN hitelcentrumunk minden elérhető bank és hitelintézet ajánlatát versenyezteti az Ön kedvéért, ráadásul DÍJMENTESEN.
Önnek nincs más dolga, mint elbeszélgetni munkatársunkkal, aki a hallott információk alapján versenyre hívja a bankokat, hogy Ön hosszú távon is a legjobb konstrukciót kaphassa. A legjobb ajánlatokból végül Ön választhatja ki a nyertest.
Munkatársaink sokéves szakmai tapasztalattal várják Önt, előre egyeztetve akár a normál munkaidő után is.

Amennyiben hirdetésem felkeltette érdeklődését, várom hívását, akár hétvégén is! V.I.
Lukács Péter

Lukács Péter

Hívjon bizalommal

+36-30-694-Mutasd!

További hirdetéseim

Ingatlaniroda
GDN Ingatlanhálózat - Belváros
+36 1 783 2515

Küldjön üzenetet

Visszahívást kérek

Hasonló ingatlanok