Eladó Lakás (téglaépítésű) Budapest XVII. kerület - Helikopter lakóparkban

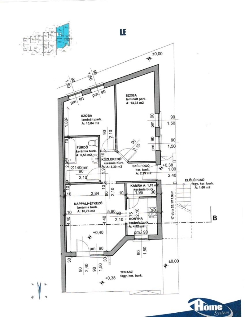
60 m2Alapterület 3 Szoba
105 000 000 Ft Ár
392579Azonosító
További adatok

Kertre néző Kilátás

Felújított Állapot

Tégla Szerkezet

22 m2 Erkély/terasz

Gáz (cirkó) Fűtés

Összkomfort Komfort

Saját beálló Parkolás

Emelet Földszint

Nincs Lift

Tömegközlekedés

Amerikai konyhás

Van Kertkapcsolat

2010 Építés éve

Délkeleti Tájolás

Hitelkalkuláció – a részletekért kattintson valamelyik bank logójára!

XVII. Ker Helikopter lakóparkban, Rákoshegyen eladó egy DK-ifekvésű 60 m²-es, 3 szobás,klímás, cirkófűtéses kertkapcsolatos lakás,teraasszal,kertkapcsolattal, kocsibeallóval.
Csendes, barátságos, kis lakóközösségű társasházban kínálunk megvételre egy földszinti, téglaépítésű, napfényes otthont, amely valódi kertes ház hangulatát nyújtja.
A lakáshoz tartozik egy kb. 22 m²-es, részben fedett terasz, valamint egy kb. 35 m²-es, kizárólagos használatú hátsókert, így ideális választás családoknak, kertkedvelőknek vagy nyugodt környezetre vágyóknak.
Főbb jellemzők: • amerikai konyhás nappali + 2 külön nyíló szoba
• sarokkádas fürdőszoba
• hűtő–fűtő klíma
• kombi cirkó fűtés, termosztátos vezérlés
• redőnyös, szúnyoghálós, korszerű nyílászárók
• beépített modern konyhabútor gépekkel és gardrób a vételár részét képezi
• udvari gépkocsibeálló az árban
A környék kiváló ellátottságú: óvoda, boltok, játszótér, szolgáltatások, valamint erdő és kirándulóhelyek néhány perc sétára elérhetők.
Tömegközlekedés gyorsan megközelíthető.
Lukács Péter

Lukács Péter

Hívjon bizalommal

+36-30-694-Mutasd!

További hirdetéseim

Ingatlaniroda
GDN Ingatlanhálózat - Belváros
+36 1 783 2515

Küldjön üzenetet

Visszahívást kérek

Hasonló ingatlanok