Eladó Családi ház Gödöllő - Palást utca

165 m2Alapterület 5 Szoba
169 000 000 Ft Ár
394647Azonosító
További adatok

744 m2 Telek

Kertre néző Kilátás

Felújított Állapot

Tégla Szerkezet

25 m2 Erkély/terasz

Gáz (cirkó) Fűtés

Dupla komfort Komfort

Saját garázs Parkolás

Tömegközlekedés

Nem Amerikai konyhás

Van Kertkapcsolat

1981 Építés éve

Délkeleti Tájolás

Hitelkalkuláció – a részletekért kattintson valamelyik bank logójára!

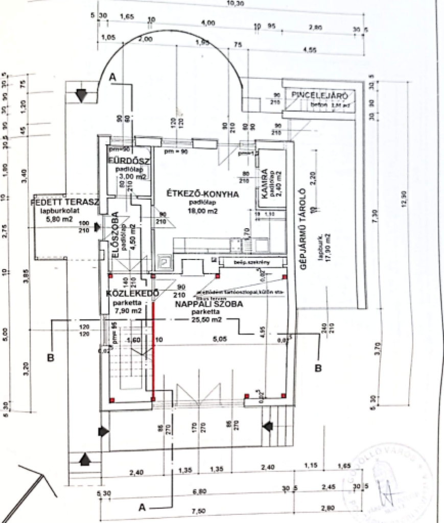
Gödöllő legkedveltebb kertvárosi részén, igényes környezetben eladó egy kiváló állapotú, 150 m²-es, tetőtér-beépítéses, 5 szobás, duplakomfortos (2 fürdőszobás) családi ház, 744 m²-es, gyönyörűen rendezett sarok telken.

A ház ideális családoknak: nappali + 4 külön nyíló hálószoba, praktikus elrendezéssel.
A földszinten napfényes, teraszkapcsolatos konyha-étkező fedett terasszal, kamra, nappali, és fürdőszoba található, míg az emeleten 4 hálószoba, fürdőszoba és dolgozósarok kapott helyet.

Fűtése kondenzációs gázkazán padlófűtés + radiátoros hőleadással, ezen kívül +2 db hűtő-fűtő klíma és kandalló biztosítja a megfelelő hőmérsékletet télen-nyáron.
Az alacsony rezsit 5 kW-os napelemes rendszer segíti, amely még 2031-ig szaldó elszámolású.

A ház szigetelt, a tető újszerű állapotú.

Garázs, fedett kocsibeálló, pince tartozik az ingatlanhoz.

A szépen gondozott kert automata öntöző rendszerrel ellátott.
Egy kerti szerszámos faház és kültéri kemence található a 744 nm-es udvaron.

A telket impozáns tégla - kovácsoltvas kerítés veszi körbe.

Csendes, barátságos környezet, kiváló közlekedés, a belváros könnyen elérhető,

Ajánlom 2-3 gyermekes családoknak, vagy azt tervezőknek, biztos nem fognak csalódni ebben a barátságos és praktikus otthonban.

Pénzügyi támogató csapatunk segít megtalálni a hiányzó forrásokat, amennyiben erre szüksége van.

Várom megtisztelő hívását.

ID:394647
Lukács Péter

Lukács Péter

Hívjon bizalommal

+36-30-694-Mutasd!

További hirdetéseim

Ingatlaniroda
GDN Ingatlanhálózat - Belváros
+36 1 783 2515

Küldjön üzenetet

Visszahívást kérek

Hasonló ingatlanok