Eladó Családi ház Kiskunlacháza - Kiskunlacháza

91 m2Alapterület 4 Szoba
77 350 000 Ft Ár
393048Azonosító
További adatok

506 m2 Telek

Kertre néző Kilátás

Új Állapot

Tégla Szerkezet

15 m2 Erkély/terasz

Hőszivattyú Fűtés

Összkomfort Komfort

Saját beálló Parkolás

Tömegközlekedés

Amerikai konyhás

Van Kertkapcsolat

2026 Építés éve

Hitelkalkuláció – a részletekért kattintson valamelyik bank logójára!

Eladó önálló családi házak Kiskunlacházán!

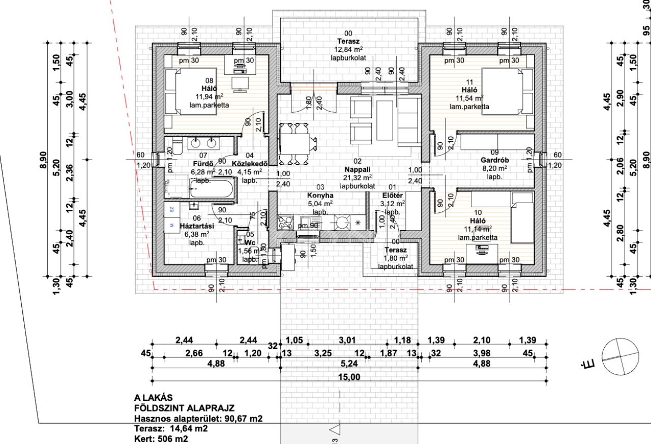
Nyugodt, csendes környezetben kínálunk megvételre nettó 90,67 nm-es önálló családi házat 506 nm-es telken.


A ház paraméterei:
alapterülete: nettó 90,67 nm.
beosztása:
- előtér 3,12 nm,
- nappali 21,32 nm,
- konyha 5,04 nm,
- fürdőszoba 6,28 nm,
- WC 1,56 nm,
- háztart.h 6,38 nm,
- közlekedő 4,15 nm,
- szoba 11,94 nm,
- szoba 11,54 nm,
- szoba 11,14 nm,
- gardrób 8,2 nm,
- terasz 12,8 nm,
- terasz 1,8 nm.


Műszaki paraméterek:

- 30-as Leier falazó blokk,
- 10-es Leier válaszfal tégla,
- 15 cm-es vtg Hungarocell szigetelés,
- műanyag fehér nyílászárók 3 rétegű üvegezés,
- Leier betoncserép,
- műanyag hőszigetelt bejárati ajtó ( fehér) 85.000.-Ft értékben,
- hősszivattyús fűtés, padlófűtéssel,
- hideg- meleg burkolatok 5000 Ft/nm anyag értékben,
- utcafronton beton panel kerítés,
- ház körül betonjárda,
- egyéb kerítések fém oszlop drótfonattal,
- 1x 32 Amper 1 fázis, H tarifás óra,


Várható átadás: 2026 évvége.
A kivitelező referencia munkái megtekinthetőek.

Amivel segítjük az Ön ingatlan vásárlását:
- ingyenes hitelügyintézés (CSOK és Babaváró és egyéb hitel
ügyintézése is)
- jogi háttér,
- földhivatali ügyintézés,
- energetikai tanúsítvány ügyintézése,
- a vevő számára ingyenes az ingatlanközvetítés.
Irodánk 30 éves tapasztalattal áll ügyfelei rendelkezésére!

Várom szíves megkeresését!
Lukács Péter

Lukács Péter

Hívjon bizalommal

+36-30-694-Mutasd!

További hirdetéseim

Ingatlaniroda
GDN Ingatlanhálózat - Belváros
+36 1 783 2515

Küldjön üzenetet

Visszahívást kérek

Hasonló ingatlanok